Warmtepomp en verduurzamingsslag voor geschakelde 2-onder-1-kap woning
Wij gaan volgende week verhuizen, kortom helaas geen indicatief gasverbruik. Ook helaas geen historisch gasverbruik: de woning staat nu een jaar lang leeg en het verbruik zal totaal niet representatief zijn. De vorige bewoner was in haar eentje, wij zijn nu met ze 2en. We verwachten aankomende 2 jaar ook geen gezinsuitbreiding, maar uit eindelijk zouden we het geluk willen hebben om 2 kids te krijgen.Wij willen de woning gasloos maken. Deels vanuit economisch perspectief maar vooral vanuit ideologisch perspectief voor moeder natuur. Ook comfort is voor ons erg belangrijk en een WP in combinatie met een centrale WTW installatie voor de luchtkwaliteit lijkt ons erg fijn. Ik kijk nu al jaren naar allemaal Youtube vloggers die hun huis verbouwen en gasloos maken, nu is het mijn beurt
Tegelijk zie ik door de bomen het bos niet meer. Het helpt ook niet dat ik veel ga klussen aan de woning en isolatie wil gaan plaatsen / raamwerk ga vervangen. Dat betekend dat historisch gasverbruik nog minder uit gaat maken. Kortom misschien kunnen jullie mij een duwtje in de juiste richting brengen.
Ik heb het template erbij gepakt:
Template
Historisch gasverbruik: onbekendAfgiftesysteem:
- Vloerverwarming zit nu in de woning, vermoeden is dat deze bijverwarming is en niet zal voldoen aan onze eisen (te grote HoH afstand, zal ik binnenkort gaan controleren met een warmtecamera). Kortom mogelijk eruit, nieuwe dekvloer maken en vloerverwarming leggen met HoH afstand van 10cm. Deze plannen zijn nog niet definitief maar wij willen er sowieso verlijmde PVC in leggen. Kortom dan ben je mogelijk al bezig met de vloer.- Vloerverwarming oppervlak: 55 m2 begaande grond en dan ~5 m2 voor eerste verdieping (apart toilet + badkamer). Zal met een koofje naar boven gaan, ik vermoed geen extra verdeler op de eerste verdieping gezien het oppervlak van maar ~5m2.
- 1 radiator blijft in de garage, wordt vervangen door lage temperatuur verwarming radiator. Overige radiatoren worden eruit gesloopt.
SWW:
- plek voor boiler: Ja. Zowel op zolder als verwarmde garage.- Ik gok 300 tot mogelijk 400 liter benodigd. Dit ivm regendouche, de dame des huis met vaak voorkomende migraine klachten en kan tijdens een aanval veel warm water nodig hebben onder de douche. En een bad met 300 liter inhoud.
- DWTW aanwezig?: Ja er komt een verticale douche WTW voor enkel de douche. Afvoer van bad / kranen zal hier niet op worden aangesloten.
- Quooker in de keuken. Kan eventueel worden aangesloten op de warm water leiding zodat deze wordt gekoppeld aan het boilervat mocht de 7 liter op raken. Het leek mij handiger om de keuken "stand-alone" te maken met een Quooker Combi i.p.v. Combi+ zodat deze juist onafhankelijk werkte. Maar dat is een onderbuikgevoel. En ik verwacht sowieso niet dat de 7 liter op raakt, zat capaciteit voor een pan, kop thee en handen wassen.
Warmtepompvoorkeur:
L/W of W/W, zet op volgorde: goedkoop, stil, design, zuinig, verkrijgbaarheid, domotica-integratie, DIY/tweakersvriendelijk, milieuvriendelijkVoorkeur voor L/W.
Volgorde: Stil, zuinig, domotica-integratie (Home assistant), milieuvriendelijk, goedkoop, DIY/tweakersvriendelijk (mocht unit niet zelf beschikken over een integratie met bijv. HA zou ik zelf ook een esphome kunnen sleutelen), design, verkrijgbaarheid
Wie gaat het installeren?
Het liefst zo veel mogelijk zelf. Een maat van mij is loodgieter en helpt sowieso met toiletjes, badkamer etc. Samen met hem zou ik al veel leidingwerk kunnen voorbereiden en units kunnen plaatsen. Vullen van het systeem niet, maar wie weet is dat dan een reden om juist voor een monoblok systeem te gaan.Members only:
Foto van de huidige vloerverwarming installatie:
Alleen zichtbaar voor ingelogde gebruikers.
Inloggen
:strip_exif()/f/image/TclhRMYJlZjnAQNB81QiCVth.jpg?f=fotoalbum_large)
Concrete vragen
- Met zoveel verschillende merken zie ik de bomen in het bos niet meer. Merken als WeHeat, Quatt, Mitsubishi. Waar moet ik naar kijken met mijn wensen lijstje?
- Verschillende capaciteiten waarbij ik het lastig vind om een inschatting te maken. Al helemaal voor een woning waar nog veel aan isolatie zal worden gedaan (dakisolatie van binnen, vloerisolatie met vloerverwarming doppen, vloerisolatie vanuit kruipruimte met PIR platen, gevelisolatie, ramen naar minimaal HR++). Ook worden WTW's geplaatst. Zowel een centrale WTW voor de lucht als een douche WTW. Kortom 7KW? 9KW?
- De woning gaat 3 fase aansluitingen krijgen. Voor nu hou ik rekening met 3 fase aansluitingen per warmtepomp. Ja ik weet dat een warmtepomp met 7KW niet 7KW aan stroom verbruikt. Maar ik wil wel aangeven dat ik rekening hou met voldoende vermogen.
- Split unit of toch een monoblok systeem?
- De staat van subsidie vandaag de dag en installatiepartijen. Hoeveel weegt het nog op om de installatie (deels) zelf uit te voeren gezien je dan geen recht zal krijgen op subsidie? Dit kan mogelijk dubbelop vallen voor andere onderdelen zoals HR+++ glas waar je dan toch liever de dubbele subsidie op zal laten vallen
- En misschien wel de belangrijkste: ik ben bang dat ik het met verwarming / koeling met vloerverwarming op de begaande grond niet red om de gehele woning constant op temperatuur te brengen. Dan zou ik mogelijk een 2de warmtepomp nodig hebben (lucht/lucht multisplit voor de 3 slaapkamers en zolder?)
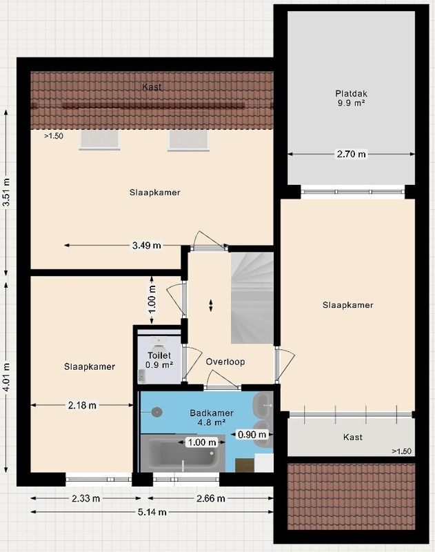
- Plaatsing van de unit(s): ik heb inmiddels genoeg gezien dat ik de units niet op een dakkapel wil hebben staan of schuin dak. Veel te moeilijk te bereiken voor onderhoud. Dat betekend dat ze dan in de tuin komen te staan, mogelijk aan een gevel (in een podcast ook vernomen dat je een buitenunit beter ~30cm van de grond kan plaatsen ivm eventuele sneeuwval maar goed dan zal je deze unit dus goed moeten ontkoppelen voor enige trillingen) of op het kleine stukje platdak welke goed te bereiken valt vanuit de rechter slaapkamer:
:strip_exif()/f/image/cKr35etIvJjoW5uKV6ss798j.jpg?f=fotoalbum_large)
Dan zou een blackbird dan weer leuk zijn. Tegelijk zit ik met bijvoorbeeld het platdak bijzonder dicht tegen de buren aan waarmee ik het platdak deel (geschakelde 2-onder-1-kap woning). Kortom de ventilator heb ik dan het liefst parallel aan het huis gezien ik geen directe achterburen heb. En dus niet aan de gevel bij het platdak gezien je direct met de ventilator tegen de buren aan zal blazen met alle gevolgen van dien (aanname.) Vanuit mijn perspectief zou platdak aan de gevel natuurlijk de voorkeur hebben. Ruimte voor 1 a 2 units, eentje op het dak en eentje aan de gevel. Maar goed ik wil mijn nieuwe buren wel tevreden houden. - Plaatsing van de binnenunit / het boilervat. Zelf dacht ik hierbij aan de garage achterin en dit dan netjes met wat timmerwerk achter een deurtje zetten uit het zicht. Echter hangt de CV installatie nu op de 2de verdieping. Ik denk dat beide opties kunnen, echter heb ik bijvoorbeeld minder zin om een boilervat van 400 liter naar boven te tillen.
- De installatie moet zowel verwarmen als koelen
Mensen zijn gelijk, maar sommige zijn gelijker dan andere | Humans need not apply
:strip_exif()/f/image/BQLSgxu50zrY7hiWNk3aon1C.jpg?f=fotoalbum_large)
:no_upscale():strip_icc():strip_exif()/f/image/d0oRhUKBP8rLUVQjRaSvcvme.jpg?f=user_large)
:strip_exif()/f/image/HJISXIm35h15ESydrduyBNgb.jpg?f=fotoalbum_tile)
:strip_exif()/f/image/ZG9ssFhY7plVdrrOV0A7cCT9.jpg?f=fotoalbum_tile)
:strip_exif()/f/image/hwh2Kbs5kkgG3cGqnyrKdC1m.jpg?f=fotoalbum_tile)
/f/image/If54BKWoxyeWZTDvXuEmANMG.png?f=fotoalbum_large)
:strip_exif()/f/image/1Qb2rA7kEe2qEmwcCGR51piC.jpg?f=fotoalbum_tile)
:strip_exif()/f/image/D6STIMmjImuIADJ3KB5cAs4R.jpg?f=fotoalbum_tile)
:strip_exif()/f/image/TTss6gmFcbuI6p0FIulZC9ng.jpg?f=fotoalbum_tile)
:strip_exif()/f/image/moqSRFQATatCfn3kIcUEjZaQ.jpg?f=fotoalbum_large)
:strip_exif()/f/image/ePQE7HZJrHR91hj7meiIRKSe.jpg?f=fotoalbum_large)
:strip_exif()/f/image/1E9CArdJiGfYI9AjiQD2XdP4.jpg?f=fotoalbum_large)
:strip_exif()/f/image/c6Yh704kDqIpsxsOYD1Twvox.jpg?f=fotoalbum_large)
:strip_exif()/f/image/OT2ZgQ0XxE1B4UVFCvHrYtlh.jpg?f=fotoalbum_large)
:strip_exif()/f/image/4QSH2OFoGdQLlHsyppRYMDx5.jpg?f=fotoalbum_tile)
:strip_exif()/f/image/iCKegUtY44rtsJWR1KZrG1Vv.jpg?f=fotoalbum_tile)
:strip_exif()/f/image/LuNTkSLakrFZNG34MVXO5wUU.jpg?f=fotoalbum_tile)
:strip_exif()/f/image/WF6yRPGA2SbMKp0e3qSpuGsJ.jpg?f=fotoalbum_tile)
/f/image/PVKGEa5l1zFbnbh16GrLI8Br.png?f=fotoalbum_tile)
:strip_exif()/f/image/UMPoeWhE8uPKpNf0d0Im2r6u.jpg?f=fotoalbum_tile)