Hallo,
Ons huis wordt binnenkort geleverd en willen meteen zolder gaan pakken, maar komen er niet uit hoe we de zolder evensient mogelijk moeten gaan indelen.
Wat we willen is:
- 1 slaapkamer
- werkkamer (klein bureau en stoel is voldoende )
- klein badkamer
- washok voor wasmachine en droger
Ben zelf bezig geweest maar kom telkens niet uit, wie is handig en kan helpen ook met het in achterhoofd dat we de leiding voor badkamer en wc niet al te moeilijk kunnen wegwerken.
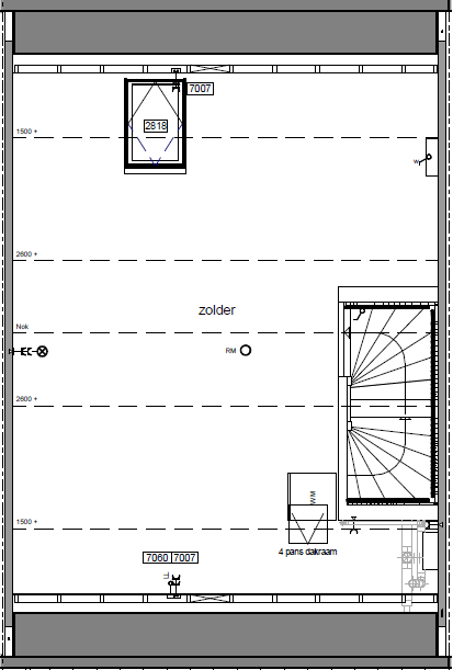
Zolder is 5.4m breed en 6.5m lang
Wie wil en kan mee denken eventueel tegen een vergoeding een tekening kan maken.
Ons huis wordt binnenkort geleverd en willen meteen zolder gaan pakken, maar komen er niet uit hoe we de zolder evensient mogelijk moeten gaan indelen.
Wat we willen is:
- 1 slaapkamer
- werkkamer (klein bureau en stoel is voldoende )
- klein badkamer
- washok voor wasmachine en droger
Ben zelf bezig geweest maar kom telkens niet uit, wie is handig en kan helpen ook met het in achterhoofd dat we de leiding voor badkamer en wc niet al te moeilijk kunnen wegwerken.
Zolder is 5.4m breed en 6.5m lang
Wie wil en kan mee denken eventueel tegen een vergoeding een tekening kan maken.
:fill(white):strip_exif()/f/image/RzmiKk6uk7mDnA8tUBtQfhbo.png?f=user_large)
:fill(white):strip_exif()/f/image/Q19AHTuUUsAEmWIXaABrTjeT.png?f=user_large)
:no_upscale():strip_icc():fill(white):strip_exif()/f/image/34VJ4V2ZFZgSnpLlKtLpJsgk.jpg?f=user_large)
:fill(white):strip_exif()/f/image/6WcJoYXqFjDwpXn4fUTLSqW6.png?f=user_large)
:strip_exif()/f/image/aIQANoYKDFTtM09UlIUl3kRY.jpg?f=fotoalbum_large)
:strip_exif()/f/image/tuX9iuddOfbp3CKhoc1FhkGK.jpg?f=fotoalbum_large)
:strip_exif()/f/image/xINsN9hG5xMXeh7QmGsmETEU.jpg?f=fotoalbum_large)
:strip_exif()/f/image/TSgTza208eyBByBlvnEGL6JB.jpg?f=fotoalbum_large)
:strip_exif()/f/image/KD7bWn3lJ8V2SvvCqM0TnXYA.jpg?f=fotoalbum_large)
:strip_exif()/f/image/XN88KxJM21xz5DeYmmTvPkmO.jpg?f=fotoalbum_large)