Grotere woonkamer of extra slaapkamer?

Pagina: 1
Acties:

Acties:
  • 0 Henk 'm!

  • maytje
  • Registratie: Oktober 2022
  • Laatst online: 25-07 15:58
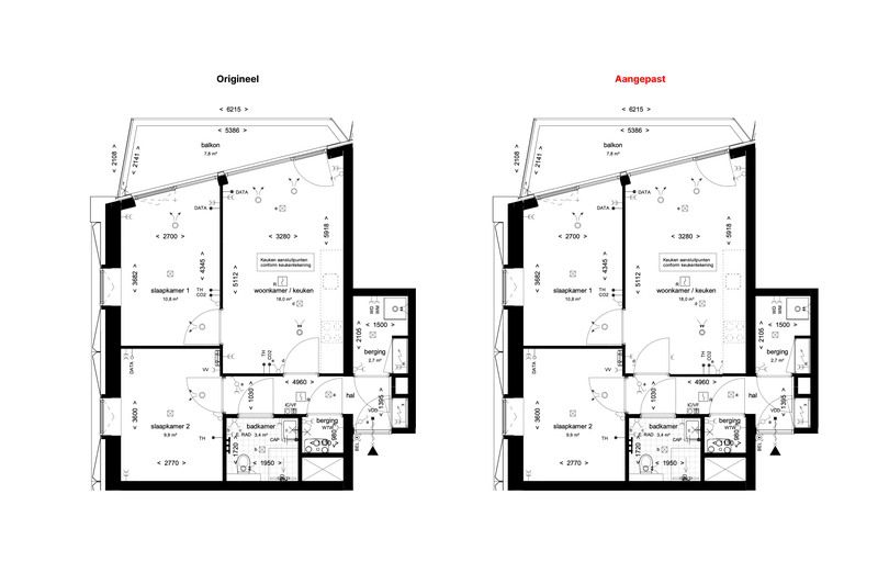
Ik mag binnenkort mijn nieuwbouwwoning gaan tekenen, en ze vragen nu al of ik een muur wil laten weglaten. Dit betekent dat ik moet beslissen of ik een appartement met één slaapkamer of met twee slaapkamers wil.

Ik ben momenteel 30 jaar en het appartement is over drie jaar klaar. Ik dacht dat het fijn zou zijn om de muur weg te laten zodat ik een grotere woonkamer heb.

Weet iemand hoe duur het is om later zo’n muur te plaatsen? Als ik de woning wil verkopen, is het dan verstandig om de muur te plaatsen?

Afbeeldingslocatie: https://tweakers.net/i/x5Q2W5_uD1SciGpbaqD0XEb4-Wg=/800x/filters:strip_icc():strip_exif()/f/image/3Vgo12ywOfuf4Jd7m7hwEL1x.jpg?f=fotoalbum_large

Afbeeldingslocatie: https://tweakers.net/i/gbL7QaOcxu32UaahICA0OUP7liM=/800x/filters:strip_exif()/f/image/ZEFLE8LNyfeOdooxlBnQQ1Wg.png?f=fotoalbum_large

Acties:
  • +15 Henk 'm!

  • Touchdomex
  • Registratie: April 2005
  • Laatst online: 08:49

Touchdomex

Moderator General Chat / Wonen & Mobiliteit

Poke of the QueenSlow

2 slaapkamers elke dag. Ik heb er nu eentje met een enkele slaapkamer die groot is en een grote woonkamer maar ik heb geen werkkamer voor bijvoorbeeld het thuiswerken of wat dan ook. Dat mis ik heel erg nu en zou voor mij een reden gaan worden om te verhuizen de markt laat het niet toe maar ik wil het wel :P

_@/' _@/' _@/' _@/' _@/' _@/' _@/' Bombus Flavifrons adoratie _@/' _@/' _@/' _@/' _@/' _@/'? '\@_ || Let's Play: Paradox-billiards-vostroyan-roulette-fourth dimensional-hypercube-chess-strip-poker


Acties:
  • 0 Henk 'm!

  • coinman63
  • Registratie: November 2011
  • Laatst online: 07:29
Een muur plaatsen is relatief goedkoop. Denk aan pakweg 5000 euro met kozijn en stucwerk. Kies daarom wat nu voor jou het beste past. Een muur wel of niet aanwezig zal ook niet of nauwelijks invloed hebben op de mogelijke verkoopprijs.

Acties:
  • +9 Henk 'm!

  • cverkooyen
  • Registratie: Juli 2002
  • Laatst online: 07:40
Zie je voor jezelf een woonkamer indeling voor je met 2 slaapkamers? Ik zou vanwege de afmetingen van de woonkamer voor 1 slaapkamer gaan

Acties:
  • 0 Henk 'm!

  • maytje
  • Registratie: Oktober 2022
  • Laatst online: 25-07 15:58
coinman63 schreef op donderdag 25 juli 2024 @ 10:58:
Een muur plaatsen is relatief goedkoop. Denk aan pakweg 5000 euro met kozijn en stucwerk. Kies daarom wat nu voor jou het beste past. Een muur wel of niet aanwezig zal ook niet of nauwelijks invloed hebben op de mogelijke verkoopprijs.
Ik denk dat ik, gezien de vierkante meters, liever een grotere woonkamer zou hebben. Het enige is dat ik niet zeker weet hoe lang ik er zelf zal gaan wonen, omdat ik nu 30 ben en mijn gezinssituatie in de toekomst kan veranderen.

Ik vroeg me af hoe dit zou uitpakken op Funda. Aangezien mensen vaak filteren op “2 slaapkamers”, weet ik niet zeker of je op Funda mag adverteren met 2 slaapkamers terwijl de muur er nog niet staat.

[ Voor 21% gewijzigd door maytje op 25-07-2024 11:12 ]


Acties:
  • 0 Henk 'm!

  • -En4Cer-
  • Registratie: Maart 2003
  • Laatst online: 01-10 11:18
maytje schreef op donderdag 25 juli 2024 @ 10:51:

Weet iemand hoe duur het is om later zo’n muur te plaatsen? Als ik de woning wil verkopen, is het dan verstandig om de muur te plaatsen?
De kosten voor zo'n muur is van verschillende factoren afhankelijk; o.a. materiaalkeuze, isolatie, moet er elektra in etc.

Wat betreft je 2e vraagt; een appartement met 2 slaapkamers zal over het algemeen beter verkopen dan een appartement met 1 slaapkamer (en dan een iets grotere woonkamer). Dus bij verkoop zou ik dit zeker overwegen.

Acties:
  • +8 Henk 'm!

  • Vesper64
  • Registratie: Januari 2008
  • Niet online
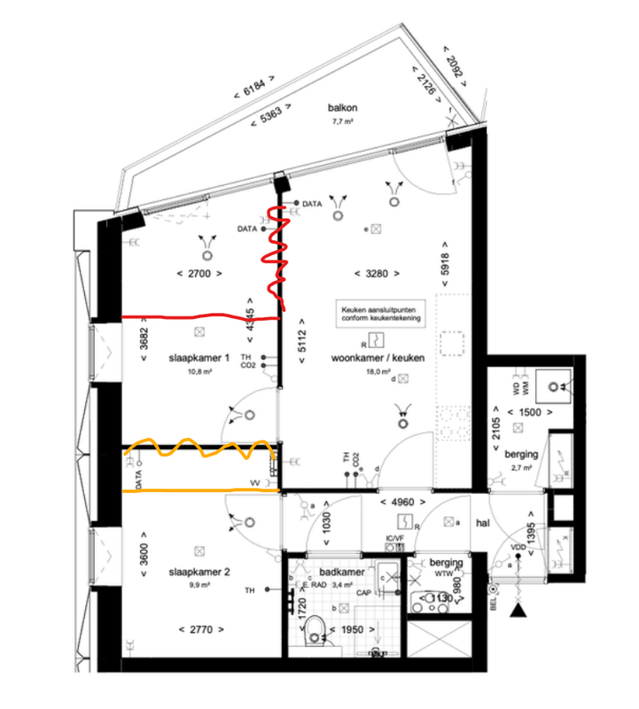
Ik zou voor 2 slaapkamers gaan. Echter, dat hoeven niet 2 grote slaapkamers te zijn. Dat boeit vaak niet voor de zoekopdracht. Bij onderstaande schets heb je 2 kamers en een grotere woonkamer. Rood zorgt voor 2 kamers, oranje is volledig optioneel als je iets wilt doen aan het formaat van de kamers.

1 kamer om te slapen, 1 kamer om in te wonen en 1 kamer voor werk/hobby/andere shit die je niet in de woonkamer wilt doen.

Afbeeldingslocatie: https://tweakers.net/i/nqxAlsZIVSVnyK23iVXNsF35sbA=/x800/filters:strip_exif()/f/image/HX3HsgSeBMaXErooh0VyuR44.png?f=fotoalbum_large

[ Voor 11% gewijzigd door Vesper64 op 25-07-2024 11:23 ]


Acties:
  • +2 Henk 'm!

  • Draakje5
  • Registratie: November 2011
  • Laatst online: 08:45
Check in ieder geval, als je de slaapkamer weglaat, wat dit doet met je vloerverwarming (zones/thermostaat) en je WTW ventilatie.
Indien deze ook vervallen, dan is het achteraf moeilijker om er nog een aparte ruimte voor te maken. Beter kun je dan gewoon de slaapkamer laten zitten en de muur er zelf uit slopen naderhand. Dan heb je in ieder geval alle voorzieningen juist zitten.

Zo'n muurtje is in een halve dag gesloopt.

[ Voor 13% gewijzigd door Draakje5 op 25-07-2024 11:21 ]


Acties:
  • 0 Henk 'm!

  • fub
  • Registratie: Februari 2004
  • Laatst online: 21:32

fub

Ben je in je eentje? Dan 1 slaapkamer. Lekker grote woonkamer, kan je eventueel met een kamerscherm een hoekje maken als thuiswerkplek.

Acties:
  • 0 Henk 'm!

  • maytje
  • Registratie: Oktober 2022
  • Laatst online: 25-07 15:58
Draakje5 schreef op donderdag 25 juli 2024 @ 11:20:
Check in ieder geval, als je de slaapkamer weglaat, wat dit doet met je vloerverwarming (zones/thermostaat) en je WTW ventilatie.
Indien deze ook vervallen, dan is het achteraf moeilijker om er nog een aparte ruimte voor te maken. Beter kun je dan gewoon de slaapkamer laten zitten en de muur er zelf uit slopen naderhand. Dan heb je in ieder geval alle voorzieningen juist zitten.

Zo'n muurtje is in een halve dag gesloopt.
Dit is een hele goede tip, dankjewel Draakje5! Hier heb ik namelijk helemaal niet aan gedacht, ik ga het gelijk even navragen.

Acties:
  • +3 Henk 'm!

  • CodeCaster
  • Registratie: Juni 2003
  • Niet online

CodeCaster

Can I get uhm...

Je hebt geen enkele bergruimte als je de woonkamer groot laat. Eén muur wordt ingenomen door de keuken, de rest door ramen. De "machineruimte" zit al vol met ventilatie/wtw, wasmachine en een enkele stofzuiger (van die 1,50 breed blijft niets over).

Een binnenmuur geeft 2x3+ meter om kasten tegenaan te zetten.

Of je gaat heel minimalistisch leven, of je hangt George Carlin aan:

https://oneerlijkewoz.nl
Op papier is hij aan het tekenen, maar in de praktijk...


Acties:
  • 0 Henk 'm!

  • Ernemmer
  • Registratie: Juli 2009
  • Niet online
Touchdomex schreef op donderdag 25 juli 2024 @ 10:58:
2 slaapkamers elke dag. Ik heb er nu eentje met een enkele slaapkamer die groot is en een grote woonkamer maar ik heb geen werkkamer voor bijvoorbeeld het thuiswerken of wat dan ook. Dat mis ik heel erg nu en zou voor mij een reden gaan worden om te verhuizen de markt laat het niet toe maar ik wil het wel :P
Normaal wel, maar hier blijft wel een heel klein woonkamertje/keuken over. Ik zou in dit geval voor 1 slaapkamer gaan.

Acties:
  • +2 Henk 'm!

  • Denman
  • Registratie: November 2001
  • Laatst online: 08:52
maytje schreef op donderdag 25 juli 2024 @ 10:51:
Ik mag binnenkort mijn nieuwbouwwoning gaan tekenen, en ze vragen nu al of ik een muur wil laten weglaten. Dit betekent dat ik moet beslissen of ik een appartement met één slaapkamer of met twee slaapkamers wil.

Ik ben momenteel 30 jaar en het appartement is over drie jaar klaar. Ik dacht dat het fijn zou zijn om de muur weg te laten zodat ik een grotere woonkamer heb.

Weet iemand hoe duur het is om later zo’n muur te plaatsen? Als ik de woning wil verkopen, is het dan verstandig om de muur te plaatsen?

[Afbeelding]

[Afbeelding]
In je vorige topic gaf je nog aan dat je voor het 2 kamer ipv 1 kamer appartement wilde gaan. Waarom dan nu de twijfel over terug naar 1? Vanwege de mogelijk hogere verkoopprijs over een aantal jaar? Dit is namelijk wel wat ik in je topics proef, dat het vooral financieel gedreven is.

Het is 2024. De huizenmarkt staat al een hele tijd onder hoogspanning. Ik zou als ik jou was gelukkig zijn dat je ingeloot bent voor een woning op een mooie locatie met een mooi uitzicht én dat ook kan betalen. Ik zou al mijn keuzes baseren op waar je het beste gevoel bij hebt en waar je het meeste woongenot uit gaat halen. En niet op wat aan het eind van de rit het meeste oplevert.

Zo heb ik 8 jaar geleden een nieuwbouwwoning gekocht en gekozen voor een uitbouw. Omdat ik meer woonkamer ruimte wilde. En ik heb er in de loop van de jaren een aantal “upgrades” aan gedaan zoals een dakkapel, zolderverbouwing van 1 naar 2 slaapkamers, airco’s, zonnepanelen, etc. En ik geniet nog dagelijks van deze zaken. Uiteraard is het een mooie bonus dat het huis er waarschijnlijk meer waard van wordt, maar woongenot staat op 1. En stenen worden toch altijd wel meer waard ;)

My two cents.

Join het GoT Pulse-Team!


Acties:
  • +4 Henk 'm!

  • Murkmans
  • Registratie: April 2018
  • Laatst online: 07:55
Al enig idee hoe je het gaat inrichten?
Ik zou ook zeker vragen wat ze met de aansluitingen voor, thermostaat, co2 sensor, data-aansluiting en de stopcontacten doen. die vallen allemaal in deze muur. En het zelfde geldt dus al voor die WTW/vloerverwarming wat @Draakje5 al opperde.

Wat ik persoonlijk in deze situatie zou doen, is een afsluitbare ruimte van je woonkamer keuken. Dan denk ik aan een opening van bijvoorbeeld 170cm in deze muur, die je eventueel met schuifdeuren af kan sluiten (die je na de bouw laat plaatsen).

Dan krijg je dit idee en kan je het wel opgeven als appartement met 2 slaapkamers als je het ooit wil verkopen. Dat heeft meer waarde. hier een voorbeeldje van een appartement https://www.funda.nl/deta...159/43670084/media/foto/7

aan de bouwer zou ik vragen of ze dan dus in plaats van het deurkozijn met deur, de muren kunnen metselen zoals onderstaand. bouwbedrijf heeft geen kosten voor de deur, en metselaar hoeft minder te metselen. En dan hopen dat het akkoord voor ze is, meestal zijn ze niet zo welwillend :).

Afbeeldingslocatie: https://tweakers.net/i/lDhJqeEZL2hXo1CCZ-pYxTsmBZ0=/full-fit-in/4000x4000/filters:no_upscale():fill(white):strip_exif()/f/image/wZhaPgZzzhFDAQ6mOJB4nDKm.png?f=user_large

edit:
dan kan je eventueel ook de keuken parralel doen waardoor die korter wordt en je in je woonkamer zelf wat ruimte creeer voor je zithoek.
Afbeeldingslocatie: https://tweakers.net/i/F1PsIiq_qByWzXxQ_h1wJ2jsoNk=/full-fit-in/4000x4000/filters:no_upscale():fill(white):strip_exif()/f/image/N4tnK7k0mTLrt6zM7kPn4067.png?f=user_large

[ Voor 11% gewijzigd door Murkmans op 25-07-2024 12:05 ]


Acties:
  • 0 Henk 'm!

  • maytje
  • Registratie: Oktober 2022
  • Laatst online: 25-07 15:58
Vesper64 schreef op donderdag 25 juli 2024 @ 11:18:
Ik zou voor 2 slaapkamers gaan. Echter, dat hoeven niet 2 grote slaapkamers te zijn. Dat boeit vaak niet voor de zoekopdracht. Bij onderstaande schets heb je 2 kamers en een grotere woonkamer. Rood zorgt voor 2 kamers, oranje is volledig optioneel als je iets wilt doen aan het formaat van de kamers.

1 kamer om te slapen, 1 kamer om in te wonen en 1 kamer voor werk/hobby/andere shit die je niet in de woonkamer wilt doen.

[Afbeelding]
Ik heb zelf je tekening even proberen na te tekenen. Maar wellicht is het inderdaad wel een goed idee om het zo te doen :P

Met twee gelijke slaapkamers:
Afbeeldingslocatie: https://tweakers.net/i/HY9eBfsuShmWfx-q3KhPSS92O7Q=/800x/filters:strip_exif()/f/image/uli2qw8Mut3sZeHrqpD2WmKV.png?f=fotoalbum_large

Met 1 grote slaapkamer en 1 kleine slaapkamer
Afbeeldingslocatie: https://tweakers.net/i/6VHW2tWB891hl56nyTyy-Sx3SGU=/800x/filters:strip_exif()/f/image/sGxKSZGteWuKqceIJUM98XCK.png?f=fotoalbum_large

[ Voor 15% gewijzigd door maytje op 25-07-2024 12:05 ]


Acties:
  • +1 Henk 'm!

  • Flying35
  • Registratie: Juli 2009
  • Laatst online: 07:41
maytje schreef op donderdag 25 juli 2024 @ 11:58:
[...]


Ik heb zelf je tekening even proberen na te tekenen. Maar wellicht is het inderdaad wel een goed idee om het zo te doen. Beiden kamers worden dan ongeveer 7,97m².

[Afbeelding]
Als het zo doet hou je geen ruimte voor een kledingkast over op je slaapkamer (hiermee doelde ik op het verkleinen van de originele slaapkamer. De andere optie met een kleinere 2e slaapkamer zou nog kunnen). Normaal gesproken is 2 slaapkamers beter dan een grotere woonkamer als je het wil verkopen, maar als ik de plattegrond zie zou ik toch voor 1 slaapkamer kiezen. Je hebt anders heel weinig ruimte voor je woonkamer. Je moet je bank in de keuken zetten en houdt geen ruimte over voor een eettafel. Dit soort apartementen zijn vooral interessant voor alleenstaande. Die kunnen vaak wel leven met 1 slaapkamer en voor jezelf zal het een fijnere indeling zijn.

[ Voor 5% gewijzigd door Flying35 op 25-07-2024 12:06 ]


Acties:
  • 0 Henk 'm!

  • maytje
  • Registratie: Oktober 2022
  • Laatst online: 25-07 15:58
Murkmans schreef op donderdag 25 juli 2024 @ 11:51:
Al enig idee hoe je het gaat inrichten?
Ik zou ook zeker vragen wat ze met de aansluitingen voor, thermostaat, co2 sensor, data-aansluiting en de stopcontacten doen. die vallen allemaal in deze muur. En het zelfde geldt dus al voor die WTW/vloerverwarming wat @Draakje5 al opperde.

Wat ik persoonlijk in deze situatie zou doen, is een afsluitbare ruimte van je woonkamer keuken. Dan denk ik aan een opening van bijvoorbeeld 170cm in deze muur, die je eventueel met schuifdeuren af kan sluiten (die je na de bouw laat plaatsen).

Dan krijg je dit idee en kan je het wel opgeven als appartement met 2 slaapkamers als je het ooit wil verkopen. Dat heeft meer waarde. hier een voorbeeldje van een appartement https://www.funda.nl/deta...159/43670084/media/foto/7

aan de bouwer zou ik vragen of ze dan dus in plaats van het deurkozijn met deur, de muren kunnen metselen zoals onderstaand. bouwbedrijf heeft geen kosten voor de deur, en metselaar hoeft minder te metselen. En dan hopen dat het akkoord voor ze is, meestal zijn ze niet zo welwillend :).

[Afbeelding]

edit:
dan kan je eventueel ook de keuken parralel doen waardoor die korter wordt en je in je woonkamer zelf wat ruimte creeer voor je zithoek.
[Afbeelding]
Oh, dit is helemaal geniaal! Zo heb ik inderdaad nog altijd de optie om er een slaapkamer van te maken. :o

Ik zal dit gelijk even navragen of dit kan, want met jouw idee kan alles inderdaad gewoon blijven staan. Fijn dat je ook even een foto hebt toegevoegd; ik begrijp nu helemaal wat je bedoelt. _/-\o_

Acties:
  • +1 Henk 'm!

  • maytje
  • Registratie: Oktober 2022
  • Laatst online: 25-07 15:58
Denman schreef op donderdag 25 juli 2024 @ 11:45:
[...]


In je vorige topic gaf je nog aan dat je voor het 2 kamer ipv 1 kamer appartement wilde gaan. Waarom dan nu de twijfel over terug naar 1? Vanwege de mogelijk hogere verkoopprijs over een aantal jaar? Dit is namelijk wel wat ik in je topics proef, dat het vooral financieel gedreven is.

Het is 2024. De huizenmarkt staat al een hele tijd onder hoogspanning. Ik zou als ik jou was gelukkig zijn dat je ingeloot bent voor een woning op een mooie locatie met een mooi uitzicht én dat ook kan betalen. Ik zou al mijn keuzes baseren op waar je het beste gevoel bij hebt en waar je het meeste woongenot uit gaat halen. En niet op wat aan het eind van de rit het meeste oplevert.

Zo heb ik 8 jaar geleden een nieuwbouwwoning gekocht en gekozen voor een uitbouw. Omdat ik meer woonkamer ruimte wilde. En ik heb er in de loop van de jaren een aantal “upgrades” aan gedaan zoals een dakkapel, zolderverbouwing van 1 naar 2 slaapkamers, airco’s, zonnepanelen, etc. En ik geniet nog dagelijks van deze zaken. Uiteraard is het een mooie bonus dat het huis er waarschijnlijk meer waard van wordt, maar woongenot staat op 1. En stenen worden toch altijd wel meer waard ;)

My two cents.
Ik heb uiteindelijk niet voor het appartement van 63 m² gekozen omdat ik niet het gevoel zou willen hebben dat ik later door een rietje moet ademen. :P Het enige raam dat in dat appartement open kan, is een kiepraam in de 'loggia'. Het is geen echte 'loggia', maar een geluidsloggia. (Eigenlijk een soort van kamer met een kiepraam en lamellenrooster) De ramen van slaapkamer 1, slaapkamer 2 kunnen enkel gelucht worden met kiepramen via de geluidsloggia. Dat er maar een raam open kan richting de buitenwereld geeft mij claustrofobisch gevoel...

En ik ben mij er zeker van bewust dat ik niet mag klagen en dat ik dankbaar mag zijn dat ik dit in mijn eentje mag doen. Of je het financieel gedreven kan noemen, weet ik niet precies, maar ik hoop er fijn te kunnen wonen. Ik ben me echter bewust van de kans dat ik er tegen mijn 40e misschien niet meer woon. Aangezien ik weinig weet over verbouwen en wat de beste keuze is, hoop ik via deze weg geen verkeerde beslissingen te nemen die de waarde van de woning zouden kunnen verminderen.

Acties:
  • 0 Henk 'm!

  • Truus01
  • Registratie: November 2014
  • Laatst online: 01-10 20:26
Ik zou denk ik niet met maar 1 slaapkamer uit kunnen. Ik ben alleen, maar ik heb 4 slaapkamers. In mijn vorige woning had ik er 3. 1 of 2 kamers worden wel meer benut als berging, maar dat kan dus ook.
Als je maar weinig 'echte' bergruimte hebt, is een tweede slaapkamer echt wel prettig. Anders moet je al je spul in die mooie grote woonkamer zetten, dat lijkt me niks.

Acties:
  • 0 Henk 'm!

  • FRANQ
  • Registratie: Juli 2017
  • Laatst online: 30-09 17:39
maytje schreef op donderdag 25 juli 2024 @ 11:58:
[...]


Ik heb zelf je tekening even proberen na te tekenen. Maar wellicht is het inderdaad wel een goed idee om het zo te doen :P

Met twee gelijke slaapkamers:
[Afbeelding]

Met 1 grote slaapkamer en 1 kleine slaapkamer
[Afbeelding]
Bij die laatste,
De slaapkamerdeur van de kleine slaapkamer rechts uitlijnen tegen de muur, dan kan links van die deur nog een stukje keuken staan.

En een slaapkamerdeur in het midden van een slaapkamer bij de grotere slaapkamer optie is onhandig, doe hem altijd tegen een muur. Het kost je anders veel meer bruikbare ruimte. Achter de deur kan je geen bed kwijt, en een bureau ook niet.
Blijft een kast over, maar ook dat is irritant achter een deur.

Acties:
  • 0 Henk 'm!

  • maytje
  • Registratie: Oktober 2022
  • Laatst online: 25-07 15:58
FRANQ schreef op donderdag 25 juli 2024 @ 13:09:
[...]


Bij die laatste,
De slaapkamerdeur van de kleine slaapkamer rechts uitlijnen tegen de muur, dan kan links van die deur nog een stukje keuken staan.

En een slaapkamerdeur in het midden van een slaapkamer bij de grotere slaapkamer optie is onhandig, doe hem altijd tegen een muur. Het kost je anders veel meer bruikbare ruimte. Achter de deur kan je geen bed kwijt, en een bureau ook niet.
Blijft een kast over, maar ook dat is irritant achter een deur.
Hmm, als ik alle deuren tegen een muur zou zetten dan kom ik uit bij de volgende opties:
Afbeeldingslocatie: https://tweakers.net/i/HyfrHqVjn6aHg_gjMj-Y0Rj4yFc=/800x/filters:strip_exif()/f/image/pSn1WUpHKExECBZj2igU6Nw8.png?f=fotoalbum_large

Acties:
  • +3 Henk 'm!

  • Denman
  • Registratie: November 2001
  • Laatst online: 08:52
maytje schreef op donderdag 25 juli 2024 @ 12:28:
[...]


Ik heb uiteindelijk niet voor het appartement van 63 m² gekozen omdat ik niet het gevoel zou willen hebben dat ik later door een rietje moet ademen. :P Het enige raam dat in dat appartement open kan, is een kiepraam in de 'loggia'. Het is geen echte 'loggia', maar een geluidsloggia. (Eigenlijk een soort van kamer met een kiepraam en lamellenrooster) De ramen van slaapkamer 1, slaapkamer 2 kunnen enkel gelucht worden met kiepramen via de geluidsloggia. Dat er maar een raam open kan richting de buitenwereld geeft mij claustrofobisch gevoel...

En ik ben mij er zeker van bewust dat ik niet mag klagen en dat ik dankbaar mag zijn dat ik dit in mijn eentje mag doen. Of je het financieel gedreven kan noemen, weet ik niet precies, maar ik hoop er fijn te kunnen wonen. Ik ben me echter bewust van de kans dat ik er tegen mijn 40e misschien niet meer woon. Aangezien ik weinig weet over verbouwen en wat de beste keuze is, hoop ik via deze weg geen verkeerde beslissingen te nemen die de waarde van de woning zouden kunnen verminderen.
Helder! En zeker goed dat je nog even extra informatie komt inwinnen, zeker als je er nog geen tot weinig ervaring mee hebt.

Om dan nog even een duit in het zakje te doen: voor mijn huidige woning heb ik ook in m'n eentje een appartement gekocht. Oppervlakte was wel iets groter (maar dan ook niet in Amsterdam :P) en ondanks dat ik in m'n eentje woonde had ik daar niet zonder een 2e slaapkamer willen zitten. Het was heerlijk om daar een werkkamer met bureau / kasten voor kleding / bergruimte te hebben. Het geeft wat mij betreft veel meer flexibiliteit.

Vrij kort nadat ik het appartement heb gekocht leerde ik mijn vrouw kennen, kwam er een baby en is die kamer omgebouwd naar kinderkamer. Dat was met 1 slaapkamer niet gelukt.

Join het GoT Pulse-Team!


Acties:
  • 0 Henk 'm!

  • FRANQ
  • Registratie: Juli 2017
  • Laatst online: 30-09 17:39
maytje schreef op donderdag 25 juli 2024 @ 13:35:
[...]


Hmm, als ik alle deuren tegen een muur zou zetten dan kom ik uit bij de volgende opties:
[Afbeelding]
Hier zou ik kiezen voor de 2 vierkante kamers.
Die versprongen muur is leuk met inbouw kasten, maar dan is de kleine kamer eigenlijk alleen als kantoor te gebruiken.

Acties:
  • 0 Henk 'm!

  • Rukapul
  • Registratie: Februari 2000
  • Laatst online: 07:49
Een slaapkamer die niet op de gang/hal aansluit maar op de woonkamer is hoe dan ook gemankeerd.

In combinatie met de smalle/kleine woonkamer+keuken zou ik in dit geval voor 1 slaapkamer gaan.

Acties:
  • 0 Henk 'm!

  • Sissors
  • Registratie: Mei 2005
  • Niet online
FRANQ schreef op donderdag 25 juli 2024 @ 13:09:
[...]


Bij die laatste,
De slaapkamerdeur van de kleine slaapkamer rechts uitlijnen tegen de muur, dan kan links van die deur nog een stukje keuken staan.

En een slaapkamerdeur in het midden van een slaapkamer bij de grotere slaapkamer optie is onhandig, doe hem altijd tegen een muur. Het kost je anders veel meer bruikbare ruimte. Achter de deur kan je geen bed kwijt, en een bureau ook niet.
Blijft een kast over, maar ook dat is irritant achter een deur.
Valt toch wel mee hoe irritant het is? Ik heb juist heel veel slaapkamers op Funda gezien waarbij doordat de deur in de hoek zit, het eigenlijk onmogelijk is een kast kwijt te kunnen in de slaapkamer van redelijk formaat. Terwijl je met een deur die wat uit de hoek is, juist perfect in het gedeelte 'achter' de deur een kast over hele breedte kan plaatsen. Uiteraard moet je wel genoeg ruimte nog hebben voor je bed als de deur open gaat.
maytje schreef op donderdag 25 juli 2024 @ 13:35:
[...]


Hmm, als ik alle deuren tegen een muur zou zetten dan kom ik uit bij de volgende opties:
[Afbeelding]
En dat bedoel ik dus hier: Bij de eerste optie is je enige voordeeld tov het origineel dat de kleine slaapkamer nog een kastje erbij kan, maar het gaat direct af van je opslagruimte in je hoofdslaapkamer. De twee vierkante betekend dat je nu een veel kleinere hoofdslaapkamer hebt, zodat als er een keer een vriend blijft slapen dat die het luxer heeft? En als je hem als kantoor inricht denk ik niet dat die extra ruimte zo nuttig is. Waarschijnlijk moet je dan in je tweede slaapkamer een grote kast neerzetten voor je kleding, in de ruimte die je gecreerd hebt door hem niet in je hoofd slaapkamer te hebben.

Acties:
  • 0 Henk 'm!

  • maytje
  • Registratie: Oktober 2022
  • Laatst online: 25-07 15:58
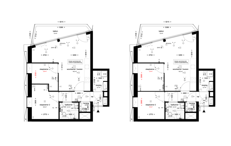
Voor nu lijkt volgens mij dit plattegrond wel het beste? En eventueel de keuken anders te plaatsen zoals Murkmans voorstelde.

Afbeeldingslocatie: https://tweakers.net/i/B2CthXf93FyAFUBQNcTq8460Wv8=/800x/filters:strip_exif()/f/image/wVxoZ6gPcJrcmJxhmIFRvlsp.png?f=fotoalbum_large

Of eventueel de deur naar de woonkamer verplaatsen waardoor ik een hoekkeuken zou kunnen plaatsen?

Afbeeldingslocatie: https://tweakers.net/i/tO8qS5qYVcAvj-PCAYUpDc-UXjQ=/800x/filters:strip_exif()/f/image/588FdbFyovWrWkMrepMXBcsG.png?f=fotoalbum_large


Weet iemand hoe duur zoiets zou gaan kosten?

Acties:
  • +2 Henk 'm!

  • maytje
  • Registratie: Oktober 2022
  • Laatst online: 25-07 15:58
Denman schreef op donderdag 25 juli 2024 @ 13:37:
[...]


Helder! En zeker goed dat je nog even extra informatie komt inwinnen, zeker als je er nog geen tot weinig ervaring mee hebt.

Om dan nog even een duit in het zakje te doen: voor mijn huidige woning heb ik ook in m'n eentje een appartement gekocht. Oppervlakte was wel iets groter (maar dan ook niet in Amsterdam :P) en ondanks dat ik in m'n eentje woonde had ik daar niet zonder een 2e slaapkamer willen zitten. Het was heerlijk om daar een werkkamer met bureau / kasten voor kleding / bergruimte te hebben. Het geeft wat mij betreft veel meer flexibiliteit.

Vrij kort nadat ik het appartement heb gekocht leerde ik mijn vrouw kennen, kwam er een baby en is die kamer omgebouwd naar kinderkamer. Dat was met 1 slaapkamer niet gelukt.
Knap dat jij je woning ook zelf hebt kunnen kopen! Ik vind dit erg eng, maar tegelijkertijd ook een soort van empowering. Ik begrijp dat het zo over kan komen hoor! Ik ben van nature best wel een stresskip en wil alles zo goed mogelijk doen, ook op financieel gebied. Aangezien ik uit een gezin kom waar we het nooit breed hadden, ben ik ook mijn eigen financiële vangnet. :P Dit forum heeft me echt enorm geholpen om de juiste keuzes te maken; zonder de input op Tweakers had ik veel zaken misschien niet gerealiseerd, zoals dat een appartement van 74 m² met 13 m² dode ruimte niet per se beter hoeft te zijn dan een kleiner appartement met een goede indeling.

Ik denk ook dat je gelijk hebt dat een tweede slaapkamer heel fijn zou zijn! Ik werk af en toe thuis, en dan zou een aparte ruimte echt prettig zijn. Bovendien heb ik alleen een inpandige berging, dus het zou handig zijn om in de tweede slaapkamer ook andere spullen kwijt te kunnen. B)

Acties:
  • 0 Henk 'm!

  • maytje
  • Registratie: Oktober 2022
  • Laatst online: 25-07 15:58
Draakje5 schreef op donderdag 25 juli 2024 @ 11:20:
Check in ieder geval, als je de slaapkamer weglaat, wat dit doet met je vloerverwarming (zones/thermostaat) en je WTW ventilatie.
Indien deze ook vervallen, dan is het achteraf moeilijker om er nog een aparte ruimte voor te maken. Beter kun je dan gewoon de slaapkamer laten zitten en de muur er zelf uit slopen naderhand. Dan heb je in ieder geval alle voorzieningen juist zitten.

Zo'n muurtje is in een halve dag gesloopt.
Ik heb het even nagevraagd en ze zeggen het volgende: “Als je de slaapkamer laat vervallen, dan vervalt inderdaad ook de thermostaat etc. Ik zou dan twee slaapkamers behouden en dan de wand verplaatsen.”

Ik denk dat ik daarom beter twee slaapkamers kan behouden, omdat het moeilijker zal worden om later zo’n wand te plaatsen.

Acties:
  • 0 Henk 'm!

  • DUX
  • Registratie: September 2002
  • Laatst online: 01-10 13:43

DUX

blijft ook nu voor Oranje

maytje schreef op donderdag 25 juli 2024 @ 14:13:
Voor nu lijkt volgens mij dit plattegrond wel het beste? En eventueel de keuken anders te plaatsen zoals Murkmans voorstelde.

[Afbeelding]
Deze deur is echt heel onhandig als iemand staat te koken: je knalt iemand in de rug die met hete dingen bezig is en de deur komt misschien tegen hete pannen aan. De deur draaien zal niet helpen: niet per se dat je met twee personen er woont, maar denk ook aan bezoek dat door de deur komt als er iemand bij de kookplaat staat.
Of eventueel de deur naar de woonkamer verplaatsen waardoor ik een hoekkeuken zou kunnen plaatsen?

[Afbeelding]
Traditioneel kom je een kamer binnen naar de ruimte toe, dus de deur zou hier de andere kant op open moeten zwaaien voor een prettigere beleving.

.    < G o o o o o o o o g l e >
Vorige 1 2 3 4 5 6 7 8 Volgende


Acties:
  • 0 Henk 'm!

  • maytje
  • Registratie: Oktober 2022
  • Laatst online: 25-07 15:58
DUX schreef op donderdag 25 juli 2024 @ 15:51:
[...]

Traditioneel kom je een kamer binnen naar de ruimte toe, dus de deur zou hier de andere kant op open moeten zwaaien voor een prettigere beleving.
Dat realiseerde ik mij later ook haha, ik denk dat ik dan voor zoiets zou willen gaan:

Afbeeldingslocatie: https://tweakers.net/i/e2Yi7eD75QQl09iNK9ccaLyJcIA=/800x/filters:strip_exif()/f/image/3mFib63tdkzkoU9xz6orkFxZ.png?f=fotoalbum_large

Wellicht kunnen de slaapkamers blijven zoals ze zijn, en kan ik beter de deur naar de woonkamer verplaatsen zodat ik een hoekkeuken kan plaatsen? 8)7

Afbeeldingslocatie: https://tweakers.net/i/WGZGa3OIxwT5zT4K2ZdsIW6wYt0=/800x/filters:strip_exif()/f/image/uDWwDeo5hAxcHmMIvoHxp4cY.png?f=fotoalbum_large

[ Voor 36% gewijzigd door maytje op 25-07-2024 16:05 ]


Acties:
  • 0 Henk 'm!

  • Vesper64
  • Registratie: Januari 2008
  • Niet online
Als we toch deuren aan het verplaatsen zijn.

Ik zou de deur naar de woonkamer verplaatsen naar waar nu de keuken is (in de hoek recht tegenover de berging wtw).

Ik zou tevens de deur van de kamer die toegankelijk is vanaf de woonkamer verplaatsen naar de zijde waar het grote raam is.

Zo creëer je veel ruimte voor een hoekkeuken terwijl je de lange wand beschikbaar houdt voor een tv meubel. Zonder dat dat in 1 lijn doorloopt.

Even geen paint bij de hand om een plaatje te maken ..

Acties:
  • 0 Henk 'm!

  • PatRamon
  • Registratie: November 2016
  • Niet online
@maytje
Even een hele snelle suggestie (Buiten je aansluitingen om van je keuken)
Opvallende = deur verplaatsen naar woonkamer zodat je keuken meer in de hoek valt.

Waardoor je meer zit ruimte hebt in de woonkamer.
+Elke slaapkamer een nis voor kleding kast.

Afbeeldingslocatie: https://tweakers.net/i/ygTbHNPn3dss7vn8nioxp9q-i1k=/x800/filters:strip_icc():strip_exif()/f/image/s1lNtU9D5RiYKrzEKyNrvfgm.jpg?f=fotoalbum_large
Tevens mocht je het verkopen, verkoopt dit sneller dan een 2 kamer app, puur omdat je 3 kamers hebt nu.

**


Acties:
  • +1 Henk 'm!

  • ArnoutV
  • Registratie: December 2005
  • Laatst online: 01-10 09:42
Voor de deuren in slaapkamer zou ik gaan voor inbouw schuifdeuren, geeft (gevoelsmatig) een hoop extra ruimte.

Acties:
  • +1 Henk 'm!

  • maytje
  • Registratie: Oktober 2022
  • Laatst online: 25-07 15:58
PatRamon schreef op donderdag 25 juli 2024 @ 16:03:
@maytje
Even een hele snelle suggestie (Buiten je aansluitingen om van je keuken)
Opvallende = deur verplaatsen naar woonkamer zodat je keuken meer in de hoek valt.

Waardoor je meer zit ruimte hebt in de woonkamer.
+Elke slaapkamer een nis voor kleding kast.

[Afbeelding]
Tevens mocht je het verkopen, verkoopt dit sneller dan een 2 kamer app, puur omdat je 3 kamers hebt nu.
Dit ontwerp lijkt mij top! Sowieso een hoekkeuken in plaats van een rechte keuken lijkt mij inderdaad een veel beter idee. Een nis voor een kledingkast zou eventueel ook wel kunnen inderdaad.

Afbeeldingslocatie: https://tweakers.net/i/8A-cLEgrN2nniOLfvldR_bXDnnE=/800x/filters:strip_exif()/f/image/v3f9husSLYHJw15BrAq0sBKp.png?f=fotoalbum_large

Afbeeldingslocatie: https://tweakers.net/i/LoECkcmfhKUBMis1fbZpSGvAf7M=/800x/filters:strip_exif()/f/image/oXHgLvhgTPKPFfbKmiUlsNGC.png?f=fotoalbum_large

Dit is overigens mijn uitzicht, vandaar dat ik twijfel of ik niet liever een wat grotere woonkamer zodat ik leuk uitzicht heb tijdens het eten:
Afbeeldingslocatie: https://tweakers.net/i/NtCTSaNiJ3ytWUpMbT44XR54VOI=/800x/filters:strip_icc():strip_exif()/f/image/oeEPeoIon4Zpt0tN4KD4GVaB.jpg?f=fotoalbum_large

Acties:
  • +1 Henk 'm!

  • PatRamon
  • Registratie: November 2016
  • Niet online
maytje schreef op donderdag 25 juli 2024 @ 16:23:
[...]


Dit ontwerp lijkt mij top! Sowieso een hoekkeuken in plaats van een rechte keuken lijkt mij inderdaad een veel beter idee. Een nis voor een kledingkast zou eventueel ook wel kunnen inderdaad.

[Afbeelding]

[Afbeelding]

Dit is overigens mijn uitzicht, vandaar dat ik twijfel of ik niet liever een wat grotere woonkamer zodat ik leuk uitzicht heb tijdens het eten:
[Afbeelding]
Heb ongeveer zelfde situatie zoals bij jou plattegrond enkel keuken staat niet in de woonkamer.
Heb zelf ook een enorm uitzicht, en heb de (zij)kamer open gelaten ofwel deurloze/kozijnloze oplossing.
*Kan altijd nog toevoegen indien nodig.
Afbeeldingslocatie: https://tweakers.net/i/LmJDW9Vj28-xKsjkenHl29tTJ5E=/x800/filters:strip_icc():strip_exif()/f/image/e8B0d7WFnqsFneLi18T2Mpaw.jpg?f=fotoalbum_large

En voor kleding kasten...
Be smart en haal ondiepe kasten 40cm diep in plaats van 60.
*Enkel hang kleding past natuurlijk niet maar heb je elders in huis wel ruimte voor en/of opvouwen.
Heb toen in de C**** tijd toen alles gesloten was gewoon van een ikea keuken een kleding kast gemaakt.

Afbeeldingslocatie: https://tweakers.net/i/PhKOHEsTQ1Gk6DMBUPw2PHunUqo=/800x/filters:strip_icc():strip_exif()/f/image/3DaB87fwQpajsaTsecdV0d05.jpg?f=fotoalbum_large

**


Acties:
  • +2 Henk 'm!

  • Truus01
  • Registratie: November 2014
  • Laatst online: 01-10 20:26
Als je dadelijk je ideaalplaatje hebt, zorg dat je dan ook alvast weet wat je wilt als er gezegd wordt 'dit kan wel, dat kan niet'. Dus als bv de keuken niet in een hoek kan, vanwege aansluitingen, wil je dan net zo goed wel de deur verplaatst hebben. Etc. (Of als kostentechnisch iets iet zou kunnen.)
Dus voor elke wijziging, weet voor jezelf in hoeverre je die nodig vindt, als iets anders niet door kan gaan van je ideaalplaatje.

*Edit: Overigens erg leuk hoe je er mee bezig bent en hoe iedereen je probeert te helpen!

[ Voor 9% gewijzigd door Truus01 op 25-07-2024 17:02 ]


Acties:
  • +1 Henk 'm!

  • Murkmans
  • Registratie: April 2018
  • Laatst online: 07:55
maytje schreef op donderdag 25 juli 2024 @ 16:23:
[...]


Dit ontwerp lijkt mij top! Sowieso een hoekkeuken in plaats van een rechte keuken lijkt mij inderdaad een veel beter idee. Een nis voor een kledingkast zou eventueel ook wel kunnen inderdaad.

[Afbeelding]

[Afbeelding]

Dit is overigens mijn uitzicht, vandaar dat ik twijfel of ik niet liever een wat grotere woonkamer zodat ik leuk uitzicht heb tijdens het eten:
[Afbeelding]
De optie hoekkeuken lijkt sowieso ideaal als je de deuropening naar de gang mag verplaatsen.

Houdt er wel rekening mee dat de schuine hoek in je woonkamer dan nog maar 150/220cm diep, bij 277cm breed is. Een eettafel oid kan je daar dus niet kwijt. hooguit een kast + werkplek.

Verder denk ik ook dat het ontwerp van @PatRamon ook zeker kans maakt.
je ook een glazen tussenwand kunnen plaatsen, met wellicht een harmonicadeur, dan behoud je het uitzicht.

Je bent momenteel in je eentje, als je voor een kleine slaapkamer extra gaat van 2,7 bij 2,1, ga je dat echt alleen gebruiken als rommelhok of werkkamer. Tenminste, ik had ongeveer zelfde soort indeling vroeger en heb dus ook een afsluitbare eetkamer gemaakt met een glazen wand erin.

Pro-tip. maak een account aan op floorplanner.com en trek daar je plattegrond in over. Vul vervolgens al je meubels en wandjes in. Krijg je een veel beter beeld van hoe je het kan inrichten en indelen.

Acties:
  • 0 Henk 'm!

  • FRANQ
  • Registratie: Juli 2017
  • Laatst online: 30-09 17:39
Sissors schreef op donderdag 25 juli 2024 @ 13:56:
[...]

Valt toch wel mee hoe irritant het is? Ik heb juist heel veel slaapkamers op Funda gezien waarbij doordat de deur in de hoek zit, het eigenlijk onmogelijk is een kast kwijt te kunnen in de slaapkamer van redelijk formaat. Terwijl je met een deur die wat uit de hoek is, juist perfect in het gedeelte 'achter' de deur een kast over hele breedte kan plaatsen. Uiteraard moet je wel genoeg ruimte nog hebben voor je bed als de deur open gaat.

[...]

En dat bedoel ik dus hier: Bij de eerste optie is je enige voordeeld tov het origineel dat de kleine slaapkamer nog een kastje erbij kan, maar het gaat direct af van je opslagruimte in je hoofdslaapkamer. De twee vierkante betekend dat je nu een veel kleinere hoofdslaapkamer hebt, zodat als er een keer een vriend blijft slapen dat die het luxer heeft? En als je hem als kantoor inricht denk ik niet dat die extra ruimte zo nuttig is. Waarschijnlijk moet je dan in je tweede slaapkamer een grote kast neerzetten voor je kleding, in de ruimte die je gecreerd hebt door hem niet in je hoofd slaapkamer te hebben.
Een deur die opendraait tegen een muur kost het minste praktische ruimte.
Een deur stopt niet op 90 graden, maar draait door.
Daardoor is de ruimte achter de deur ook beperkt bruikbaar.

Als je een muur hebt van 3 meter breed, en je zet de deur in het midden, dan kan je aan 1 kant van de deur alleen een kast kwijt. En aan de andere kant kan je eventueel een bed kwijt.
Een bureau kan niet want dan zit je in de zwaai van de deur.

Schuif je de deur tegen de hoek aan, dan hou je 2 meter wand over. Daar kan een bed dwars staan, in plaats van in de lengte. Of een bureau.
En de kamer is ineens geschikt voor een tweepersoonsbed.


Ik zou de kamers in dit geval niet even groot maken, en de kamer in de woonkamer als kantoor gebruiken.
Door hier weer de deur in de hoek te zetten kan er eventueel wel een eenpersoons bed in.

@maytje de kleine kamer toegankelijk maken vanuit de grote slaapkamer kan je ook nog overwegen.
Dan kan je er kantoor/inloopkast van maken, en als er ooit een kleine komt is het ook in de eerste 3 jaar wel fijn als je die kan horen vanuit je eigen bed.
Pagina: 1