Beste allen,
Wij gaan onze bestaande woning fors uitbreiden (en verduurzamen en all electric). Hiervoor- willen we ook fors uitbreiden met PV-panelen. Ik heb contact gehad met een leverancier en een paar opties gekregen. Ik wil sparren wat slim is qua systeemkeuze, daar heb ik nog geen goed antwoord op.
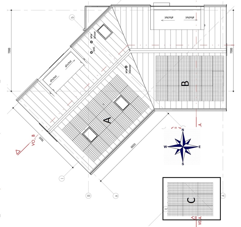
Situatie
:strip_exif()/f/image/iNRDrS4xAF2nGJv9js00L2hx.jpg?f=fotoalbum_large)
-Dak A is reeds bestaand en daar liggen 13 PV-panelen 395WP (sept 2022) met micro-omvormer enphase (IQ7+).
-Met de verbouwing zal er een volledig nieuw dak worden geïnstalleerd en de bestaande woning worden uitgebreid met dak B. De panelen op dak A gaan er dus sowieso van af.
-Daarnaast zullen we nog een schuur/garage met plat dak (dak C) bouwen. Voor het gemak nu snel erbij getekend met 9 panelen erop. De toekomst moet nog uitwijzen hoe groot de garage precies wordt.
Mijn plan is om de huidige 13 PV-panelen die op het schuine dak A liggen, in een West opstelling op dak C van de schuur/garage te leggen. En op het nieuwe dak A (ZuidOost) en dak B (Zuid) nieuwe PV-panelen te plaatsen (zodat ze allemaal van hetzelfde model zijn).
De huidige aansluiting is 3x 25A. Er is geen schaduwvorming op Dak A en Dak B (string opstelling?). Dak C zal wel te maken krijgen met schaduwvorming in de avond. We willen in de toekomst het PV-systeem combineren met een thuisaccu. Nu vraag ik me af wat slim is qua systeemkeuzes.
De gegeven opties
-Optie A; dak A en dak B voorzien van PV panelen met allen een micro-omvormer, dak C krijg de bestaande PV-panelen met micro-omvormers. Voordeel alles hetzelfde systeem, geen problemen compatibiliteit, nadeel duurste variant.
-Optie B; 2 verschillende systemen. Dak C met huidige 13 PV-panelen met micro-omvormer. En dak A String met Growatt omvormer en dak B string met Growatt omvormer. Voordeel: goedkoopste variant. Nadeel; compatibiliteit issues met accu systeem?
-Optie C: 2 verschillende systemen. Dak C met huidige 13 PV-panelen met micro-omvormer (enphase). En dak A en dak B met solar edge systeem. Nadeel; compatibiliteit issue?
-Optie D; dak A,B en C met 1 type systeem zodat het compatible is voor de accu. Maar dan welk systeem rekening houdend met schaduwvorming (solaredge?)
-Optie E: ?
Wat voor ons belangrijk is: Kunnen 2 verschillende systemen makkelijk gecombineerd worden of zijn er dan compatibiliteit problemen met de omvormer en accu te verwachten? Ik ben niet iemand die dagelijks alles zal gaan controleren qua verbruik en opbrengst, eventueel 2 verschillende systemen is geen no go, maar het moet wel praktisch zijn i.c.m. een accu. Het systeem moet in de toekomst teruglevering kunnen terugschakelen.
Toelichting: de hypothese is dat pv-panelen qua prijs niet meer de beperkende factor (100 euro per paneel) zijn en het dus slim is om het dak vol te leggen. Met overcapaciteit willen we in de donkere maanden toch zoveel mogelijk nog kunnen voorzien in de energiebehoefte. Dit zal zeker resulteren in overproductie in de zomer (gezien de huidige praktijken van de energiebedrijven) wil ik de PV-panelen in de zomer deels uit te zetten (of gebruiken om te koelen, of voor de jacuzzi als die ooit komt).
alvast bedankt voor jullie tips.
Wij gaan onze bestaande woning fors uitbreiden (en verduurzamen en all electric). Hiervoor- willen we ook fors uitbreiden met PV-panelen. Ik heb contact gehad met een leverancier en een paar opties gekregen. Ik wil sparren wat slim is qua systeemkeuze, daar heb ik nog geen goed antwoord op.
Situatie
:strip_exif()/f/image/iNRDrS4xAF2nGJv9js00L2hx.jpg?f=fotoalbum_large)
-Dak A is reeds bestaand en daar liggen 13 PV-panelen 395WP (sept 2022) met micro-omvormer enphase (IQ7+).
-Met de verbouwing zal er een volledig nieuw dak worden geïnstalleerd en de bestaande woning worden uitgebreid met dak B. De panelen op dak A gaan er dus sowieso van af.
-Daarnaast zullen we nog een schuur/garage met plat dak (dak C) bouwen. Voor het gemak nu snel erbij getekend met 9 panelen erop. De toekomst moet nog uitwijzen hoe groot de garage precies wordt.
Mijn plan is om de huidige 13 PV-panelen die op het schuine dak A liggen, in een West opstelling op dak C van de schuur/garage te leggen. En op het nieuwe dak A (ZuidOost) en dak B (Zuid) nieuwe PV-panelen te plaatsen (zodat ze allemaal van hetzelfde model zijn).
De huidige aansluiting is 3x 25A. Er is geen schaduwvorming op Dak A en Dak B (string opstelling?). Dak C zal wel te maken krijgen met schaduwvorming in de avond. We willen in de toekomst het PV-systeem combineren met een thuisaccu. Nu vraag ik me af wat slim is qua systeemkeuzes.
De gegeven opties
-Optie A; dak A en dak B voorzien van PV panelen met allen een micro-omvormer, dak C krijg de bestaande PV-panelen met micro-omvormers. Voordeel alles hetzelfde systeem, geen problemen compatibiliteit, nadeel duurste variant.
-Optie B; 2 verschillende systemen. Dak C met huidige 13 PV-panelen met micro-omvormer. En dak A String met Growatt omvormer en dak B string met Growatt omvormer. Voordeel: goedkoopste variant. Nadeel; compatibiliteit issues met accu systeem?
-Optie C: 2 verschillende systemen. Dak C met huidige 13 PV-panelen met micro-omvormer (enphase). En dak A en dak B met solar edge systeem. Nadeel; compatibiliteit issue?
-Optie D; dak A,B en C met 1 type systeem zodat het compatible is voor de accu. Maar dan welk systeem rekening houdend met schaduwvorming (solaredge?)
-Optie E: ?
Wat voor ons belangrijk is: Kunnen 2 verschillende systemen makkelijk gecombineerd worden of zijn er dan compatibiliteit problemen met de omvormer en accu te verwachten? Ik ben niet iemand die dagelijks alles zal gaan controleren qua verbruik en opbrengst, eventueel 2 verschillende systemen is geen no go, maar het moet wel praktisch zijn i.c.m. een accu. Het systeem moet in de toekomst teruglevering kunnen terugschakelen.
Toelichting: de hypothese is dat pv-panelen qua prijs niet meer de beperkende factor (100 euro per paneel) zijn en het dus slim is om het dak vol te leggen. Met overcapaciteit willen we in de donkere maanden toch zoveel mogelijk nog kunnen voorzien in de energiebehoefte. Dit zal zeker resulteren in overproductie in de zomer (gezien de huidige praktijken van de energiebedrijven) wil ik de PV-panelen in de zomer deels uit te zetten (of gebruiken om te koelen, of voor de jacuzzi als die ooit komt).
alvast bedankt voor jullie tips.