Goedemiddag,
Zo net voor de kerstdagen hoop ik met dit topic nog wat informatie te verzamelen zodat ik hier tijdens het genot van de komende dagen over na kan denken. En voordat ik het vergeet, fijne feestdagen!
Wat achtergrond informatie
Wij wonen in een redelijke recente woning uit 2007. Het nadeel van deze periode is dat de woningen redelijk goed geïsoleerd zijn maar ook dat er gespaard is op de grote van de radiatoren. In de zoektocht naar een goede oplossing hebben we al diverse zaken geprobeerd en hebben we ook de gasaansluiting laten weghalen. Enfin, met de huidige hoofdverwarming, infrarood, merken we toch nog tocht (koude val) wat erg storend wordt ervaren. De keuze voor een warmtepomp is gemaakt, alleen moeten we kijken welk afgifte systeem we gaan kiezen.
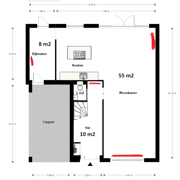
Plattegrond begane grond
:fill(white):strip_exif()/f/image/5n1AUyEgLvKAhL5XABJ52gYu.png?f=user_large)
Op bovenstaande plattegrond is de begane grond te zien met de locaties aangeduid waar momenteel verwarmingen hangen. Deze verwarmingen zijn aangesloten middels een 16mm leiding en zijn van de volgende types
Vloerverwarming of LT-convectoren?
Er zijn al diverse warmtepomp leveranciers over de vloer gekomen en ze zijn het eens over een aantal dingen:
Zijn er mensen die hiermee ervaring hebben en wat van hun wijsheid willen delen? Zijn er mogelijk mensen met een soortgelijke begane grond die hun praktijkervaring willen delen, ik hoor het graag.
Alvast bedankt,
Tom
Zo net voor de kerstdagen hoop ik met dit topic nog wat informatie te verzamelen zodat ik hier tijdens het genot van de komende dagen over na kan denken. En voordat ik het vergeet, fijne feestdagen!
Wat achtergrond informatie
Wij wonen in een redelijke recente woning uit 2007. Het nadeel van deze periode is dat de woningen redelijk goed geïsoleerd zijn maar ook dat er gespaard is op de grote van de radiatoren. In de zoektocht naar een goede oplossing hebben we al diverse zaken geprobeerd en hebben we ook de gasaansluiting laten weghalen. Enfin, met de huidige hoofdverwarming, infrarood, merken we toch nog tocht (koude val) wat erg storend wordt ervaren. De keuze voor een warmtepomp is gemaakt, alleen moeten we kijken welk afgifte systeem we gaan kiezen.
Plattegrond begane grond
:fill(white):strip_exif()/f/image/5n1AUyEgLvKAhL5XABJ52gYu.png?f=user_large)
Op bovenstaande plattegrond is de begane grond te zien met de locaties aangeduid waar momenteel verwarmingen hangen. Deze verwarmingen zijn aangesloten middels een 16mm leiding en zijn van de volgende types
| Ruimte | Afmetingen | Type |
| Hal | 80*40 | T11 |
| Woonkamer | 200*40 | T21 |
| Keuken | 60*90 | T33 |
| Bijkeuken | 60*90 | T11 |
Vloerverwarming of LT-convectoren?
Er zijn al diverse warmtepomp leveranciers over de vloer gekomen en ze zijn het eens over een aantal dingen:
- De huidige radiatoren zijn niet voldoende bij lage temperatuur verwarming
- Vloerverwarming is de beste oplossing voor het verwarmen met lage temperaturen
- Het zou ook moeten werken met goed gedimensioneerde LT-convectoren (warmteverliesberekening is wel essentieel hierin)
- Bovenop de betonnen dekvloer zijn PVC-leidingen gelegd waarin elektra en databekabeling loopt
- Opbouw vloerverwarming zou kunnen, echter past dit niet bij de voordeur (hier zou een mat kunnen komen) en de hoogte van het werkblad van de keuken wordt ook lager
- Er dient een nieuwe aanvoer te worden gelegd vanuit de warmtepomp naar de verdeler. De huidige verwarmingsleidingen vanuit de cv is 25mm en ligt op een plek waar je niet zonder een WC vernieuwing bij komt
- Vloer in de bijkeuken ligt lager dan de overige ruimtes van de begane grond
Zijn er mensen die hiermee ervaring hebben en wat van hun wijsheid willen delen? Zijn er mogelijk mensen met een soortgelijke begane grond die hun praktijkervaring willen delen, ik hoor het graag.
Alvast bedankt,
Tom