Vooraf: onderstaande heb ik al over gesproken in dit topic, maar een los topic leek me net wat handiger en overzichtelijker.
Ik heb een huis gekocht dat (hopelijk) ergens eind 2024 opgeleverd gaat worden. Het huis wordt gebouwd door van Wijnen. We hebben als meerwerkoptie gekozen voor een extra badkamer op de bovenste woonlaag. Op die bovenste woonlaag gaan mijn vriendin en ik straks slapen.
Omdat ik 's nachts af en toe nog wel eens moet plassen (ik ben ook de jongste niet meer
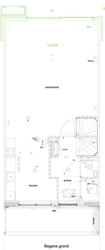
) wilde ik een toilet laten plaatsen in die extra badkamer. Maar dat bleek allemaal niet zo eenvoudig als ik dacht. Het eerste wat van Wijnen zei was "nee, kan niet, want de afvoeren aan die kant van de woning zijn dun en lopen door de kanaalplaten. Een afvoer van 110mm gaan we daar niet in frezen". De andere toiletten (op verdieping 0 en 1) zitten aan de andere kant van het huis en zitten daar aangesloten op een afvoer in een lepe hoek van de trap. Plaatjes voor de context:
/f/image/ozL3ibBFPLQluInGYYkwHMis.png?f=fotoalbum_large)
/f/image/dviotFmS2sY4ALVX0azopWUT.png?f=fotoalbum_large)
/f/image/O3HrmOz6fE0XJ4JWPOAnXLqd.png?f=fotoalbum_large)
Een Tweaker wees mij echter op de koof die tegen de badkamer aanzit op de tweede verdieping. Navraag leerde mij dat dit de ontluchting van het riool is, met een aansluiting van 110mm. Dat staat ook zo op de tekeningen:
/f/image/vZ2LqkpIVFqbtIhsup37e6rh.png?f=fotoalbum_large)
In theorie zou ik dus op de afvoer in die koof een toilet aan kunnen sluiten. Ik heb dat neergelegd bij Giesbers (de installateur van dit project) maar die zeiden "die buis is inderdaad 110mm, maar op de eerste verdieping gaat ie door een 75mm leiding die in de vloer verslepen is naar het riool aan de andere kant van het huis. Als je daar dus een toilet op gaat aansluiten dan krijg je drukverschil en ga je sifons leegtrekken". Ik denk dus iets als dit:
/f/image/ma3vLNNwGvayMsphJBrsvGJB.png?f=fotoalbum_large)
Ik sprak hier echter over met een bevriende loodgieter, en die vond dat een heel raar verhaal. Want: je gaat niet een stuk 110mm doen (voor de andere toiletten) en dat vervolgens met een 75mm buis aansluiten op een 110mm standleiding. Dat klinkt plausibel, maar ik heb er de ballen verstand van. Ook het lezen van dit technisch handboek (vanaf pagina 31) maakte het voor mij niet veel duidelijker.
Kan iemand hier er iets zinnigs over zeggen?
Ik heb een huis gekocht dat (hopelijk) ergens eind 2024 opgeleverd gaat worden. Het huis wordt gebouwd door van Wijnen. We hebben als meerwerkoptie gekozen voor een extra badkamer op de bovenste woonlaag. Op die bovenste woonlaag gaan mijn vriendin en ik straks slapen.
Omdat ik 's nachts af en toe nog wel eens moet plassen (ik ben ook de jongste niet meer
/f/image/ozL3ibBFPLQluInGYYkwHMis.png?f=fotoalbum_large)
/f/image/dviotFmS2sY4ALVX0azopWUT.png?f=fotoalbum_large)
/f/image/O3HrmOz6fE0XJ4JWPOAnXLqd.png?f=fotoalbum_large)
Een Tweaker wees mij echter op de koof die tegen de badkamer aanzit op de tweede verdieping. Navraag leerde mij dat dit de ontluchting van het riool is, met een aansluiting van 110mm. Dat staat ook zo op de tekeningen:
/f/image/vZ2LqkpIVFqbtIhsup37e6rh.png?f=fotoalbum_large)
In theorie zou ik dus op de afvoer in die koof een toilet aan kunnen sluiten. Ik heb dat neergelegd bij Giesbers (de installateur van dit project) maar die zeiden "die buis is inderdaad 110mm, maar op de eerste verdieping gaat ie door een 75mm leiding die in de vloer verslepen is naar het riool aan de andere kant van het huis. Als je daar dus een toilet op gaat aansluiten dan krijg je drukverschil en ga je sifons leegtrekken". Ik denk dus iets als dit:
/f/image/ma3vLNNwGvayMsphJBrsvGJB.png?f=fotoalbum_large)
Ik sprak hier echter over met een bevriende loodgieter, en die vond dat een heel raar verhaal. Want: je gaat niet een stuk 110mm doen (voor de andere toiletten) en dat vervolgens met een 75mm buis aansluiten op een 110mm standleiding. Dat klinkt plausibel, maar ik heb er de ballen verstand van. Ook het lezen van dit technisch handboek (vanaf pagina 31) maakte het voor mij niet veel duidelijker.
Kan iemand hier er iets zinnigs over zeggen?
/f/image/5BOdPEh62pghLg5RbDbr4RoD.png?f=fotoalbum_large)
/f/image/YdbtGSSiJg16VszdrXbMexJV.png?f=fotoalbum_large)