Zoals zovelen zijn ook wij bezig met het aanvragen van verschillende offertes voor het plaatsen van zonnepanelen. Tot nu toe drie reacties, waarbij alle drie partijen met een andere oplossing komen (SMA shadefix, Solaredge en micro-omvormers) en natuurlijk hun oplossing de beste vinden. We merken dat het lastig is om zelf een goed beeld te krijgen welke oplossing nu in onze situatie het meest rendabel en effectief is.
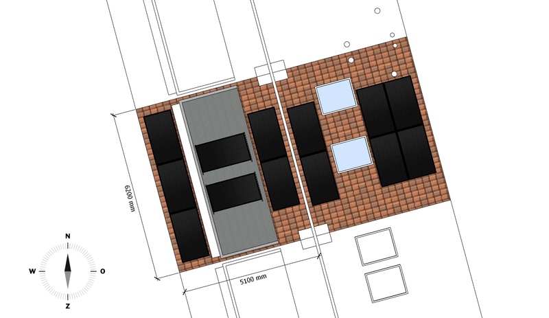
Voor expositie zie legplan Aanbieder A
West: zelfde, maar dakkapel. Welk voldoende ruimte boven en onder dakkapel om in landscape een rij te plaatsen
Plat dak op westen: 2.20 x 6.00. Dakbedekking wordt nog vervangen en dan komt er geen grind meer terug. Wel wil ik de dakkapel niet volledig volstouwen ivm gewicht dus neig naar max 3 panelen
Uitbouw begane grond is niet bruikbaar ivm grote lichtstraat voor persoonlijke zon behoefte 😉
Mogelijk in toekomst kijken naar hybride verwarming, waarbij ik bewust ben dat we met ons dakoppervlak zeker niet voor 0 op de meter hoeven te verwachten.
Geen eigen oprit, dus aan huis laden is minder makkelijk (al zie je in t dorp wel geregeld kabels over de stoep liggen)
Aanbieder A: 13 panelen, 4990 Wp, geschatte opbrengst 3952 kWh.
Legplan: 6x Oost in 3 rijen, 5x West, 2x zuid (plat dak)
Argument aanbieder: individueel zoveel mogelijk opbrengst, geen omvormer in huis
:strip_exif()/f/image/oh6M9mp1nHELtuY4T7LkBTRf.jpg?f=fotoalbum_large)
Aanbieder B: legplan 2, 15 panelen 5775 WP, geschatte opbrengst 4713 kWh:
Legplan volledige oost-west: 6x Oost in 2 rijen, 9x west (3 op platdak)
Argument aanbieder: techniek zoveel mogelijk centraliseren in omvormer en aantal stekkers buiten minimaliseren om storingen te voorkomen. Volledig oost-west met oog op toekomst zonder salderen best.
Niet gespecificeerd hoe precies opgebouwd (panelen, solarstell, omvormer, montage €8000 ex
/f/image/7yOn5z6srG9IF0YdqLcjXCq5.png?f=fotoalbum_large)
Aanbieder C: initiële legplan 12 panelen 4380 Wp, geschatte opbrengst 3655 kWh
Legplan: 6x Oost, 6x west, platdak nog niet gebruikt
Argument aanbieder: rekening houden met schaduw en dan werken optimizers goed
Foto's
Voor expositie zie legplan Aanbieder A
Beschikbare (dak)ruimte
Oost: 5.10 x 6.20 - helling 35gr, rekening houden met afzuiging van badkamer.West: zelfde, maar dakkapel. Welk voldoende ruimte boven en onder dakkapel om in landscape een rij te plaatsen
Plat dak op westen: 2.20 x 6.00. Dakbedekking wordt nog vervangen en dan komt er geen grind meer terug. Wel wil ik de dakkapel niet volledig volstouwen ivm gewicht dus neig naar max 3 panelen
Uitbouw begane grond is niet bruikbaar ivm grote lichtstraat voor persoonlijke zon behoefte 😉
Schaduw
Harde schaduw van schoorsteen, maar mogelijk heeft andere kant voldoende instraling tov kant waar schaduw op valt. Zachte schaduw van 1 boom voor het huis, maar ver genoeg van de woning dat dit alleen in vroege ochtend het geval isJaarverbruik
Afgelopen 12 maanden ongeveer 3000 kWh (verhuisd in maart 2020), maar eerste periode boven gewoond ivm verhuizing. Maar jonge gezin (2 kinderen < 2jaar), dus stroomgebruik zal eerder toenemen dan dalen.Huidige elektriciteitsaansluiting
3 faseBudget en doel
Willen een kwalitatief goed systeem en zijn bereid hierin te investeren, maar willen ook niet onnodig te veel betalen. Accu nog toekomstmuziek, maar rekening houden met uitbreidbaarheid?Mogelijk in toekomst kijken naar hybride verwarming, waarbij ik bewust ben dat we met ons dakoppervlak zeker niet voor 0 op de meter hoeven te verwachten.
Geen eigen oprit, dus aan huis laden is minder makkelijk (al zie je in t dorp wel geregeld kabels over de stoep liggen)
Wie gaat het project uitvoeren
FirmaBijhouden van data
Ja graag. Gebruik oa Home Assitant en zou hierin ook wat automation willen toevoegen mbt bijv wasmachine. Maar geen harde must, want zijn ook andere manieren te bedenken waarop dit gedaan kan wordenReeds verkregen offertes
Eerste offertes opgevraagd met opgegeven verbruik van 4000 kWh. Met aanbieder A en B persoonlijk contact aan huis gehad en tijdens gesprek aangegeven dat we nu liever overschot aanleggen dan net aan genoeg voor ons huidige verbruik.Aanbieder A: 13 panelen, 4990 Wp, geschatte opbrengst 3952 kWh.
Legplan: 6x Oost in 3 rijen, 5x West, 2x zuid (plat dak)
Argument aanbieder: individueel zoveel mogelijk opbrengst, geen omvormer in huis
- Panelen: Q.cells Q. PEAK DUO BLK-G9+ AC 380WP, dus gecombineerd met Emphase IQ7+ (Garantie: beide 25 jaar )
- Montagemateriaal Van de Valk
:strip_exif()/f/image/oh6M9mp1nHELtuY4T7LkBTRf.jpg?f=fotoalbum_large)
Aanbieder B: legplan 2, 15 panelen 5775 WP, geschatte opbrengst 4713 kWh:
Legplan volledige oost-west: 6x Oost in 2 rijen, 9x west (3 op platdak)
Argument aanbieder: techniek zoveel mogelijk centraliseren in omvormer en aantal stekkers buiten minimaliseren om storingen te voorkomen. Volledig oost-west met oog op toekomst zonder salderen best.
- Bauer 385 Wp glas-glas (30 jaar garantie)
- SMA omvormer 5.0 of hybride (5/10 jaar garantie)
- Montagemateriaal Solarstell
Niet gespecificeerd hoe precies opgebouwd (panelen, solarstell, omvormer, montage €8000 ex
/f/image/7yOn5z6srG9IF0YdqLcjXCq5.png?f=fotoalbum_large)
Aanbieder C: initiële legplan 12 panelen 4380 Wp, geschatte opbrengst 3655 kWh
Legplan: 6x Oost, 6x west, platdak nog niet gebruikt
Argument aanbieder: rekening houden met schaduw en dan werken optimizers goed
- 12x Solarwatt Vision H3.0 365 Wp glas-glas (30 jaar garantie ) à €3000
- Solaredge 1 fase omvormer HD-wave 3.68kW (12 jaar) à € 877
- 12x Power optimizer S440 €590
- Montagemateriaal niet gespecificeerd maar volgens mij vd Valk à 1781
- Montage à €1265