Beste allen,
aantal jaar geleden ben ik uitstekend geholpen door jullie met de aanschaf van zonnepanelen.
Nu zijn we bezig met een nieuwbouwhuis (gasloos, met warmtepomp) en daar willen we weer panelen op.
Vorige keer zijn ze gelegd door Winkelman en daar heb ik nu weer een offerte opgevraagd.
Alleen is mijn kennis van panelen wat gedateerd./f/image/VXdDxlhQutpNPByzlnWrrFaw.png?f=fotoalbum_large)
:fill(white):strip_exif()/f/image/gikeEIAFVGWSNIYRNzcn31hL.png?f=user_large)
/f/image/GZ2St9wXwbKX3FdR61NgcAWr.png?f=fotoalbum_large)
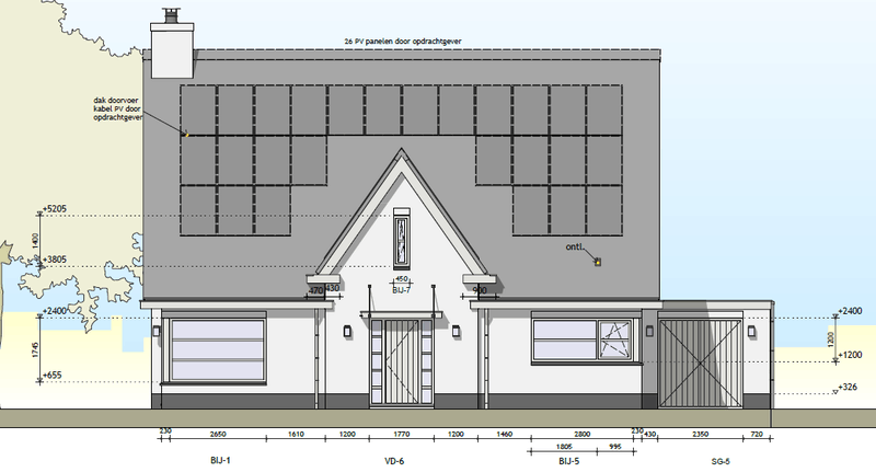
Dakhelling is 55 graden, zuid-west georiënteerd.
Bomen zijn er niet.
In ons huidige woning hebben we een 1x35A aansluiting. We gaan nu naar 3-fase. Ik begrijp dat het voor een 3-fase omvormer juist wel beter is om heel veel panelen (22) op 1 string te hebben?
Omdat we vrij weinig schaduw hebben dacht ik weg te kunnen komen met een reguliere string-omvormer en geen Solaredge nodig te hebben (zoals we nu hebben), of komen we dan toch in de knoei met de risaliet?
Is SMA nog steeds degene om te willen hebben, of is de kwaliteit al naar elkaar toe gegroeid?
aantal jaar geleden ben ik uitstekend geholpen door jullie met de aanschaf van zonnepanelen.
Nu zijn we bezig met een nieuwbouwhuis (gasloos, met warmtepomp) en daar willen we weer panelen op.
Vorige keer zijn ze gelegd door Winkelman en daar heb ik nu weer een offerte opgevraagd.
Alleen is mijn kennis van panelen wat gedateerd.
Foto's
/f/image/VXdDxlhQutpNPByzlnWrrFaw.png?f=fotoalbum_large)
:fill(white):strip_exif()/f/image/gikeEIAFVGWSNIYRNzcn31hL.png?f=user_large)
/f/image/GZ2St9wXwbKX3FdR61NgcAWr.png?f=fotoalbum_large)
Dakhelling is 55 graden, zuid-west georiënteerd.
Beschikbare (dak)ruimte
Aannemer heeft 26 panelen ingetekend; maar misschien kunnen er nog meer?Schaduw
Alleen de risaliet. Bovenstaande foto is van 22 november 15:36.Bomen zijn er niet.
Jaarverbruik
Weet ik niet. 9000-10000 kWh? Elektrische auto, plus warmtepomp. Rc-waarde van het dak 6,3.Huidige elektriciteitsaansluiting
Er komt een 3x25A aansluiting.Budget en doel
10000 euro; doel is het grootste deel van verbruik afdekken. 0 op de meter is geen doel.Wie gaat het project uitvoeren
Zonnepanelen boer. In het verleden geholpen door Winkelman, als we er uit komen mogen ze het weer doen.Bijhouden van data
Minimaal. Standaard is prima.Reeds verkregen offertes
Nog geen.Regio
Twente.In ons huidige woning hebben we een 1x35A aansluiting. We gaan nu naar 3-fase. Ik begrijp dat het voor een 3-fase omvormer juist wel beter is om heel veel panelen (22) op 1 string te hebben?
Omdat we vrij weinig schaduw hebben dacht ik weg te kunnen komen met een reguliere string-omvormer en geen Solaredge nodig te hebben (zoals we nu hebben), of komen we dan toch in de knoei met de risaliet?
Is SMA nog steeds degene om te willen hebben, of is de kwaliteit al naar elkaar toe gegroeid?
/f/image/8frDhP9QCAOm8GnjFNt71nho.png?f=fotoalbum_large)