Wij gaan binnenkort verhuizen. Omdat de kamer vrij lang en donker is willen wij aan de zijkanten spotjes en een ledstrip laten aanleggen. Dit moet er ongeveer zo uit komen te zien

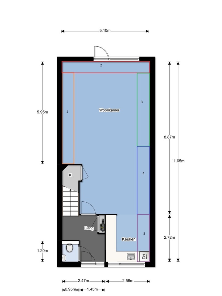
De betreffende kamer is als volgt

Nu ben ik mij wat aan het inlezen en oriënteren naar de mogelijkheden en er is best heel erg veel informatie. Eigenlijk een beetje teveel voor mij
Ik wilde jullie vragen of je adviezen, tips en suggesties hebt.
Wat ik graag wil is het volgende:
- Led lampen
-- Dimbaar
-- Instelbare K-waarde. Ik dacht een beetje aan 5000k voor overdag en 2700k voor savonds
-- Kantelbaar (zodat spotjes niet in je ogen schijnen als je op een bepaalde plek zit)
-- Te bedienen via smartphone/tablet maar ook via vaste schakelaar
-- Makkelijk in te stellen en geen programmeren nodig
-- In het plaatje van de woonkamer heb ik zones ingedeeld. Hier ben ik nog niet helemaal uit maar ik denk dat ik wil kunnen instellen of ik bepaalde zones aan/uit kan zetten. Als ik bijv in de woonkamer zit hoeft de keuken wellicht niet aan etc
-- Makkelijk te vervangen
-- Optioneel van kleur veranderen maar dat is niet noodzakelijk
-Led stips
-- Verschillende kleuren in te stellen
-- Los in te stellen tov de ledlampen. Dus hij moet ook aan kunnen als de led lampen uit zijn en andersom
-- Verschillende K-waardes ben ik niet over uit of dat toegevoegde waarde heeft tov de lampen
Dit is zo'n beetje waar ik op kon komen en wat ik graag zou willen in eerste instantie. Echter heb ik verder geen ervaring met naja eigenlijk alles. Dus wellicht staan er hele vreemde wensen tussen.
Kan ik bijv alles met Hue regelen en is dat aan te raden. Zag dat je daar lampen en ledstrips hebt die volgens mij alles wel kunnen. Echter dimmen was dan weer een probleem (of alleen met een bepaalde generatie?) en het is vrij prijzig. Alle tips en opmerkingen zijn welkom. Ik heb niet echt een max budget maar wil denk ik voor rond de 3k wel klaar zijn met alles (dus alle domotica + alles aanleggen/installeren etc)

De betreffende kamer is als volgt

Nu ben ik mij wat aan het inlezen en oriënteren naar de mogelijkheden en er is best heel erg veel informatie. Eigenlijk een beetje teveel voor mij
Wat ik graag wil is het volgende:
- Led lampen
-- Dimbaar
-- Instelbare K-waarde. Ik dacht een beetje aan 5000k voor overdag en 2700k voor savonds
-- Kantelbaar (zodat spotjes niet in je ogen schijnen als je op een bepaalde plek zit)
-- Te bedienen via smartphone/tablet maar ook via vaste schakelaar
-- Makkelijk in te stellen en geen programmeren nodig
-- In het plaatje van de woonkamer heb ik zones ingedeeld. Hier ben ik nog niet helemaal uit maar ik denk dat ik wil kunnen instellen of ik bepaalde zones aan/uit kan zetten. Als ik bijv in de woonkamer zit hoeft de keuken wellicht niet aan etc
-- Makkelijk te vervangen
-- Optioneel van kleur veranderen maar dat is niet noodzakelijk
-Led stips
-- Verschillende kleuren in te stellen
-- Los in te stellen tov de ledlampen. Dus hij moet ook aan kunnen als de led lampen uit zijn en andersom
-- Verschillende K-waardes ben ik niet over uit of dat toegevoegde waarde heeft tov de lampen
Dit is zo'n beetje waar ik op kon komen en wat ik graag zou willen in eerste instantie. Echter heb ik verder geen ervaring met naja eigenlijk alles. Dus wellicht staan er hele vreemde wensen tussen.
Kan ik bijv alles met Hue regelen en is dat aan te raden. Zag dat je daar lampen en ledstrips hebt die volgens mij alles wel kunnen. Echter dimmen was dan weer een probleem (of alleen met een bepaalde generatie?) en het is vrij prijzig. Alle tips en opmerkingen zijn welkom. Ik heb niet echt een max budget maar wil denk ik voor rond de 3k wel klaar zijn met alles (dus alle domotica + alles aanleggen/installeren etc)
[ Voor 3% gewijzigd door thewizard2006 op 20-04-2018 12:33 ]
We've got simultaneous epidemics of obesity and starvation