Ik hang al heel wat jaren rond op tweakers maar slechts zelden wat hoeven posten, meestal was mijn vraag gelukkig al elders beantwoord! Maar nu toch echt een vraag.
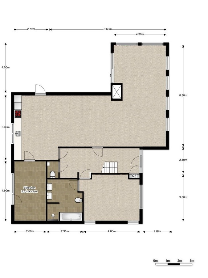
Ik heb een vrij standaard rijtjeshuis uit 1999 en ik wil deze nu in zones gaan verwarmen. Hierbij denk ik aan Honeywell Evohome maar ik sta open voor suggesties!
Beneden heb ik vloerverwarming, alleen huiskamer en gang, dit is in principe 1 zone.
Boven drie slaapkamers en een badkamer. Deze zou ik dan willen aansturen met radiatorknoppen. Hier gaat het eigenlijk om, met een kindje op komst wil ik de babykamer gecontroleerd kunnen verwarmen. Daarnaast is het fijn als ik dit vanaf mijn smartphone kan doen.
Nu is mijn vraag, is het echt noodzakelijk dat ik ook de vloerverwarmingmodule aanschaf? Aangezien in die ruimte ook de thermostaat hangt? Moeten alle "zones" hun eigen regelaar hebben of kan ik bepaalde ruimtes ook gewoon op de ouderwetse manier blijven regelen met thermostaat+cv?
edit: er zit ook een thermostaatknop op mijn vloerverwarming verdeelstation. Kan ik die niet mogelijk vervangen voor een evohome thermostaatknop?
Ik heb een vrij standaard rijtjeshuis uit 1999 en ik wil deze nu in zones gaan verwarmen. Hierbij denk ik aan Honeywell Evohome maar ik sta open voor suggesties!
Beneden heb ik vloerverwarming, alleen huiskamer en gang, dit is in principe 1 zone.
Boven drie slaapkamers en een badkamer. Deze zou ik dan willen aansturen met radiatorknoppen. Hier gaat het eigenlijk om, met een kindje op komst wil ik de babykamer gecontroleerd kunnen verwarmen. Daarnaast is het fijn als ik dit vanaf mijn smartphone kan doen.
Nu is mijn vraag, is het echt noodzakelijk dat ik ook de vloerverwarmingmodule aanschaf? Aangezien in die ruimte ook de thermostaat hangt? Moeten alle "zones" hun eigen regelaar hebben of kan ik bepaalde ruimtes ook gewoon op de ouderwetse manier blijven regelen met thermostaat+cv?
edit: er zit ook een thermostaatknop op mijn vloerverwarming verdeelstation. Kan ik die niet mogelijk vervangen voor een evohome thermostaatknop?
[ Voor 7% gewijzigd door Caro op 01-09-2017 11:20 . Reden: Info toegevoegd ]


:strip_exif()/f/image/CXAxYE8PtxDi9kUepUFIgv59.jpg?f=fotoalbum_large)
/f/image/ssIcxc9NXNahWJvgpeUKc49h.png?f=fotoalbum_large)
:fill(white):strip_exif()/f/image/mutWCvZPVtQhdFjyVpci5Wxg.png?f=user_large)