Ha allen,
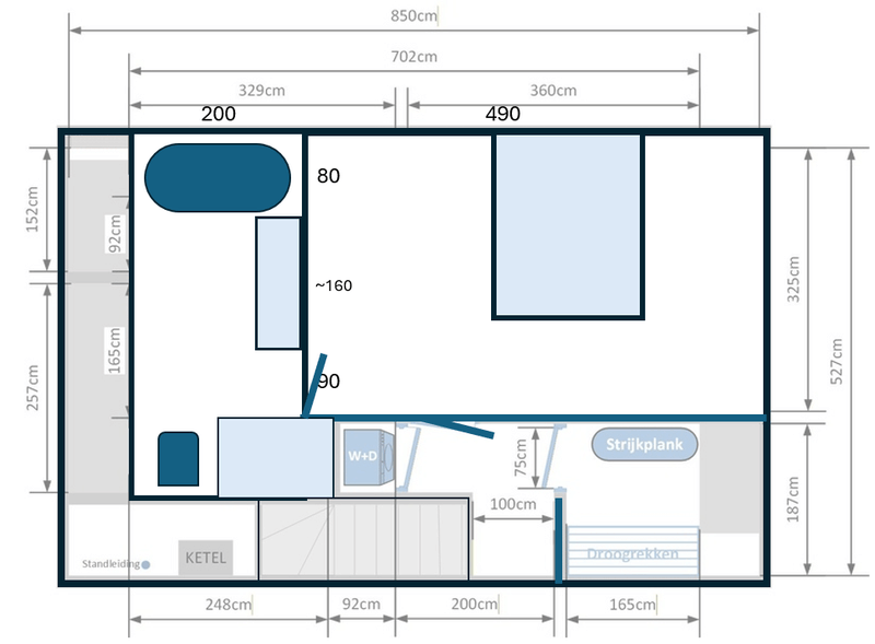
Ik heb al heel wat topics bekeken en uiteraard ook online van alles opgezocht. Op basis daarvan heel wat tekeningen gemaakt en wij denken een redelijke indeling te hebben gevonden. Maar na al dat zoeken, staren en puzzelen zie je het zelf ook niet heel goed meer. Daarom graag jullie mening en feedback op de tekening voor onze zolder verdieping (met slaapkamer, badkamer, enz.). Hoogte vloer tot plafond dakkapel 215-220cm, schuin dak met in de punt een hoogte van 320cm.
Binnenkort moeten wij aan het bouwbedrijf doorgeven waar de wanden komen zodat de juiste maat kozijnen besteld kunnen worden.
Dank alvast!
Ik heb al heel wat topics bekeken en uiteraard ook online van alles opgezocht. Op basis daarvan heel wat tekeningen gemaakt en wij denken een redelijke indeling te hebben gevonden. Maar na al dat zoeken, staren en puzzelen zie je het zelf ook niet heel goed meer. Daarom graag jullie mening en feedback op de tekening voor onze zolder verdieping (met slaapkamer, badkamer, enz.). Hoogte vloer tot plafond dakkapel 215-220cm, schuin dak met in de punt een hoogte van 320cm.
Binnenkort moeten wij aan het bouwbedrijf doorgeven waar de wanden komen zodat de juiste maat kozijnen besteld kunnen worden.
Dank alvast!
/f/image/9qxKMl6hBEzmyIa0U1JtrQGj.png?f=fotoalbum_large)
/f/image/4wSAYXgCo5W9eB2HNiRq8J55.png?f=fotoalbum_large)
:strip_exif()/f/image/Z8R6ztalURtjt7FEuDmybxNW.jpg?f=fotoalbum_large)