Extra slaapkamer realiseren op zolder met hoge nok

Pagina: 1
Acties:

Vraag


  • Meiss
  • Registratie: December 2022
  • Laatst online: 12-12-2025
Mijn vraag
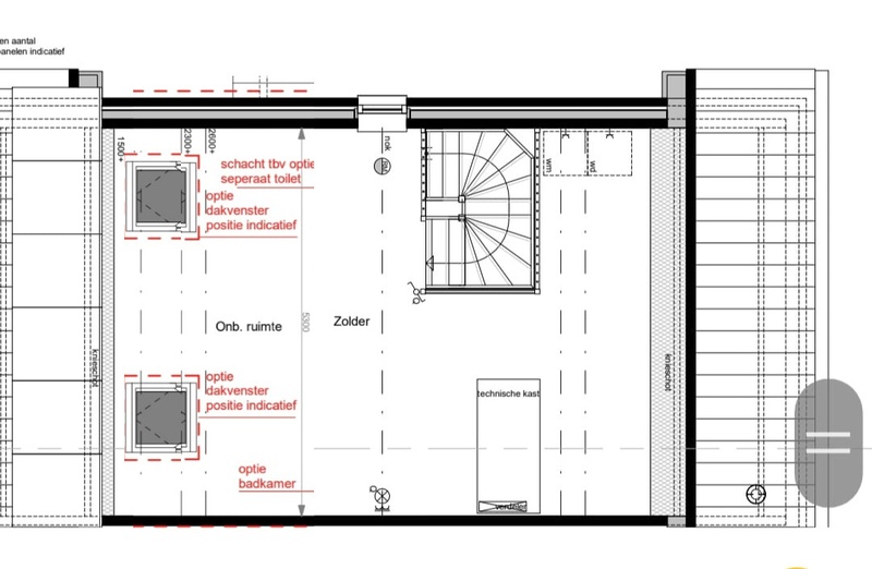
...Hoe zouden jullie op deze zolder een extra slaapkamer realiseren?

• De trap komt uit in het midden van de zolder die nogal een hoge nok heeft.
• We willen een afgesloten kamer. Omdat er rechtsachter de trap, (dus rechtsboven op de tekening) een washoek bevind met daarin wasmachine en droger droger, en rechtsonder op de plattegrond een muurtje met daarachter een technische ruimte ten behoeve van de warmtepomp, etc. (Ingang technische ruimte zit aan de rechter kant)

•We zouden ook nog iets van kasten voor algemeen gebruik willen realiseren.
•mogelijk ook een inbouwkast voor op de kamer van mijn zoon.

•Op zolder zijn al twee dakramen gerealiseerd.
•Het knieschot zit op 1,50 meter hoogte. En vanaf dan komt er pas een dakraam. Dus in principe niet een hele lage schuine wand.


Ik ben een beetje bang dat als ik gewoon een muur plaats van buiten muur naar binnen muur, grenzend aan de buurman, dat het dan zo'n hele hoge muur gaat worden die nogal op je af komt zodra je de trap op komt gelopen. Misschien hebben jullie ideeën waar ik niet aan denk? Jullie zijn creatief, dus ik hoop op jullie input... 🤞🏻Afbeeldingslocatie: https://tweakers.net/i/p-9-6Q1zNNSrs0XmQIhu6b9N7uw=/800x/filters:strip_icc():strip_exif()/f/image/3oZmjC8BN8XhZ2nWSQm7F0i0.jpg?f=fotoalbum_large

Alle reacties


  • Ricko1
  • Registratie: September 2014
  • Laatst online: 21:10
Hoe hoog is het midden? 4 of 5 meter?

Is een vliering boven de slaapkamer en het trapgat op 2,5m een optie als je bang bent voor een "hoge muur"?

Dan heb je ook extra opslagruimte.

  • No Hands
  • Registratie: Maart 2016
  • Laatst online: 21:40
of gewoon de muur in twee kleuren verven, onderkant donker en bovenkant licht.

Veroordeel niet, verwonder u slechts


  • Crash
  • Registratie: Oktober 2001
  • Laatst online: 21:18
Inderdaad gewoon een vliering plaatsen. Dan kost het minder energie om die slaapkamer warm te krijgen / houden en heb je tevens fijne bergruimte :)
Ook kan je dan makkelijker een scheidingswandje met deur zetten tussen slaapkamer en de technische ruimte en wasruimte. En achter de technische ruimte zou je nog prima een (inbouw)kast kwijt kunnen.

  • Rukapul
  • Registratie: Februari 2000
  • Laatst online: 21:53
Je hoeft helemaal niet bang te zijn voor een hoge muur. Er is gelegenheid genoeg om wat ruimtelijkheid te creëren met een overloop. Er is een raam voor natuurlijke lichtinval. Bij dat raam kan ook een accessoire staan. Als de trap aan de linker en onderzijde niet verticaal is doorgetrokken met een muur dan creeert dat ook een open overloop. Recht tegenover de trap kan een deur.

De rest kan min of meer vrij zolang je het maar niet verhokt.

  • naftebakje
  • Registratie: Februari 2002
  • Laatst online: 09-03 13:25
Crash schreef op donderdag 11 december 2025 @ 20:12:
Inderdaad gewoon een vliering plaatsen. Dan kost het minder energie om die slaapkamer warm te krijgen / houden en heb je tevens fijne bergruimte :) ...
Vergeet niet dat warmte stijgt. Ik heb de zolderkamers 4m hoog gelaten, en dat scheelt flink in hete zomers (naast dikke isolatie uiteraard). De hitte hangt hoog in de kamer, en je zweet je bed niet uit. En ook in de winter is het vanzelf niet echt koud, de warmte komt vanzelf naar de zolder toe.

Als de boer zijn koeien kust, zijn ze jarig wees gerust. Varkens op een landingsbaan, leiden nooit een lang bestaan. Als de boer zich met stront wast, zijn zijn hersens aangetast. Als het hooi is in de schuur, zit het wijf bij den gebuur.


  • Simpel360
  • Registratie: Mei 2022
  • Laatst online: 22:15
Deur met glas, wand met (gedeeltelijk) glas.
De deur recht tegenover het trapgat.

  • Rukapul
  • Registratie: Februari 2000
  • Laatst online: 21:53
Simpel360 schreef op zaterdag 13 december 2025 @ 08:05:
Deur met glas, wand met (gedeeltelijk) glas.
De deur recht tegenover het trapgat.
Ik heb zelf een zolder ingedeeld met kamers, maar weet vrij zeker dat mijn nakomeling een slaapkamer met glazen deur of muur niet op prijs zou stellen :+

Overigens heb ik op de eerste verdieping de deuren naar kamers die niet als slaapkamer worden gebruikt juist wel met glas uitgevoerd (en oude bovenlichten verwijderd).

Als topicstarter meer licht of ruimtelijkheid nodig heeft kan hij altijd nog een extra dakraam in het hellend dak laten plaatsen. Toen ik de zolder heb ingedeeld heb ik express ook een dakraam bij trapopgang / overloop laten plaatsen.

  • Joris748
  • Registratie: Januari 2018
  • Laatst online: 22:40
Een loft maken om te slapen. Dat breekt het aanzicht enorm.

The choice is simple – do you do it in this life, or the next? In case of the former, why wait?


  • Simpel360
  • Registratie: Mei 2022
  • Laatst online: 22:15
Rukapul schreef op zaterdag 13 december 2025 @ 08:15:
[...]

Ik heb zelf een zolder ingedeeld met kamers, maar weet vrij zeker dat mijn nakomeling een slaapkamer met glazen deur of muur niet op prijs zou stellen :+

Overigens heb ik op de eerste verdieping de deuren naar kamers die niet als slaapkamer worden gebruikt juist wel met glas uitgevoerd (en oude bovenlichten verwijderd).

Als topicstarter meer licht of ruimtelijkheid nodig heeft kan hij altijd nog een extra dakraam in het hellend dak laten plaatsen. Toen ik de zolder heb ingedeeld heb ik express ook een dakraam bij trapopgang / overloop laten plaatsen.
Ik weet natuurlijk niet hoe ondeugend ieders nazaten zijn :+

Maar het geeft een ander aanzicht als je de trap op komt, dat er dan vervolgens nog raambekleding is lijkt mij ook wel logisch O-)

Edit.
Heb dit zelf ook gedaan voor een keuken in een bedrijfspand. Glazenwand gezet en folie op de ramen. Geeft meer ruimte effect als een dichte (witte) muur.

[ Voor 8% gewijzigd door Simpel360 op 13-12-2025 09:52 ]


  • Fr33z
  • Registratie: December 2003
  • Laatst online: 22:44
Ondeugend of niet, elk kind wil.privacy op een bepaald.moment. Daarnaast vind ik een glazen deur net zoiets als een glazen koffietafel of bureau: niet om aan te gluren en totaal stijlloos. Maar dat is aan ts natuurlijk.

  • Simpel360
  • Registratie: Mei 2022
  • Laatst online: 22:15
Fr33z schreef op zaterdag 13 december 2025 @ 09:49:
Ondeugend of niet, elk kind wil.privacy op een bepaald.moment. Daarnaast vind ik een glazen deur net zoiets als een glazen koffietafel of bureau: niet om aan te gluren en totaal stijlloos. Maar dat is aan ts natuurlijk.
Idd smaken verschillen.

Ts heeft er door mijn reaktie wel een oplossing bij O-)

  • Fr33z
  • Registratie: December 2003
  • Laatst online: 22:44
Dat is waar. Ook leuk als.je voor de 'rookhok in de kroeg' look gaat ;) of een bushokkie, ook mooi glas.

Maar het serieuzere deel ging om.de.privacy van kinderen. Zeker zodra ze gaan puberen is dat echt een eerste levensbehoefte om je eigen plek te hebben enzo.

  • barbarbar
  • Registratie: Februari 2013
  • Laatst online: 09-03 10:23
Zo'n zolder hadden wij ook. Met precies zo'n techniek kast in het midden die niet realistisch weg kon (alles kan natuurlijk uiteindelijk). We zijn verhuist en hebben geen techniek op de zolder, d'r zijn direct twee volwaardige kamers gemaakt, want achteraf krijg je dus gekloot. Tot zover mijn presentatie waar je niks aan hebt.

Ik zou er een dakkapel op zetten waar je nu de raampjes hebt. De trapopgang een kleine overloop maken van minimaal een meter breed. Dan muurtje achter die techniek kast plaatsen. En een vliering er in, met een stukje normaal plafond heb je veel minder het idee op een zolder te zijn. Hebben we nu ook, en op de zolder voelt het niet als een zolder aan.

  • Simpel360
  • Registratie: Mei 2022
  • Laatst online: 22:15
Fr33z schreef op zaterdag 13 december 2025 @ 12:22:
Dat is waar. Ook leuk als.je voor de 'rookhok in de kroeg' look gaat ;) of een bushokkie, ook mooi glas.

Maar het serieuzere deel ging om.de.privacy van kinderen. Zeker zodra ze gaan puberen is dat echt een eerste levensbehoefte om je eigen plek te hebben enzo.
Over het woord raambekleding heen gelezen?
Pagina: 1