Beste medetweakers,
Ik wil jullie graag meenemen in dit avontuur.:strip_exif()/f/image/cB0GJUzwGfVwN3dAdziKVyMn.png?f=user_large)
Zelf ben ik wel handig met gereedschap en heb ik wel technisch inzicht. Zo maak ik beursmeubelen, tijdelijke bruggen waar pallets overheen kunnen van 500gk (vraag mij niet waarom), etc. Ik heb ook voldoende gereedschap, alleen heb ik nooit verbouwd. Ook ben ik wel handig met elektra, maar wil ik dit allemaal netjes laten doen door een elektricien.
Daarnaast willen we op de begaande verdieping voor nu alleen een nieuwe vloer leggen. Nu ligt er een witte gietvloer in, een hele mooie vloer, alleen onhandig wanneer je een zwarte hond hebt, en iemand in een rolstoel met zwarte banden, laat staan wanneer het regent. Daarom zijn we aan het kijken voor een houten vloer, laminaat, pvc, etc. Nog niet heel erg in verdiept. Maar we willen in ieder geval voor een houten 'look' gaan. Ik hoor graag ervaringen hierover
.
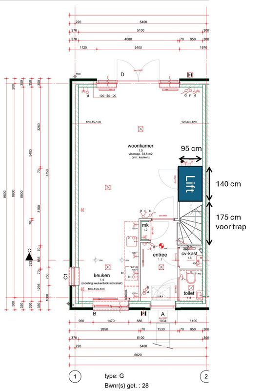
De begaande grond plattegrond:
/f/image/jqNp0IxJ8K4Iq3NloayEjkmn.png?f=fotoalbum_large)
Plattegrond:
/f/image/fy1qe1wqujac7RppCGSHBiDJ.png?f=fotoalbum_large)
:strip_exif()/f/image/IYiYKBEPIKzYG1u5YHzOzK1K.jpg?f=fotoalbum_large)
Nu vroeg ik mij af of het leidingwerk in de badkamer kan worden aangepast, dat je bijvoorbeeld rechts naast de deur de douche hebt, in het midden ergens een toilet en badkamer meubel, en helemaal links het bad hebt staan. Maar ik heb hier gewoon geen ervaring in, en dit hebben wij momenteel nog niet overlegt met de aannemer (afspraak staat ingepland). Het doel is namelijk om de badkamer rolstoeltoegankelijk te maken, en tegelijkertijd zo normaal mogelijk te maken maar wel ruim.
Plattegrond zolder:
/f/image/5Kvi6mmElw0MC6oQv5se7ch2.png?f=fotoalbum_large)
Orginele plattegrond:
/f/image/ZR5xhKbcwskzBvh8AURkq5Qf.png?f=fotoalbum_large)
/f/image/o7VkT4GhhgxdjIjTHftmE9He.png?f=fotoalbum_large)
De wasmachine en droger worden naar voren gezet. Ik wil kijken of ik de wateraansluiting en afvoer kan verplaatsen. De slaapkamer wil ik dan vergroten waar nu de wasmachine staat. Mocht het leidingwerk niet haalbaar zijn, laat ik de wasmachine en droger op zijn plek, en maak ik er een washok/logeerkamer van.
Ik wil jullie graag meenemen in dit avontuur.
- Kennis op te doen.
- Ik heb geen ervaring in (ver)bouwen.
- Ervaringen te delen.
:strip_exif()/f/image/cB0GJUzwGfVwN3dAdziKVyMn.png?f=user_large)
Context
Wie we zijn
Afgelopen maand hebben ik en mijn vriendin een huis gekocht in een klein dorp. Mijn vriendin zit in een elektrische rolstoel en zochten voornamelijk naar een gelijkvloerse woning. Maar helaas waren er geen gelijkvloerse woningen in dit dorp, en we willen graag in de buurt wonen bij familie. Dus hadden we weinig keus.Zelf ben ik wel handig met gereedschap en heb ik wel technisch inzicht. Zo maak ik beursmeubelen, tijdelijke bruggen waar pallets overheen kunnen van 500gk (vraag mij niet waarom), etc. Ik heb ook voldoende gereedschap, alleen heb ik nooit verbouwd. Ook ben ik wel handig met elektra, maar wil ik dit allemaal netjes laten doen door een elektricien.
Huis kopen
Tijdens het bezichtigen hebben we rekening gehouden om een lift in het huis te plaatsen. Zo kwamen we bij een nieuwbouwhuis uit het jaar 2017. Hierin zat een lange trap waarvan ik dacht, als we de trap inkorten kan er een lift in worden geplaatst. Voor de tweede bezichtiging ben ik op bezoek gegaan bij enkele liftleveranciers, en die gaven aan dat mijn plan kon (met plattegronden etc). Tijdens de tweede bezichtiging heb ik ook een aannemer mee laten kijken, en gaf ook aan dat het kon. De lift kan er in, en er past ook een trap in. Helaas kon de liftleverancier niet mee, omdat we enigszins haast hadden om een bod te doen op het huis, omdat dit een van de weinige huizen waren, waarin een lift in een huis kon worden geplaatst. Dus soms moet je risico nemen.Verbouwen
Alleen kregen wij nu helaas te horen dat de aannemer pas in de maand juni kan beginnen. Terwijl wij 1 mei kunnen beginnen met verbouwen. Nu wil ik alvast het voorwerk gaan doen, en eventueel werk wat de aannemer straks niet meer hoeft te doen. Want in de tussentijd kunnen we in onze oude woning blijven, maar wil ik daar zo gauw mogelijk van af, omdat we dan dubbele maandlasten hebben.Begaande grond
Om de lift te kunnen plaatsen moet er in de vloer een gat worden gemaakt van 5cm diep. Het vloerbeslag zelf is 10cm dik. De liftleverancier heeft berekend dat de vloer het gewicht aankan (aan de hand van bouwtekeningen en advies van de aannemer). Wel moet er nog gekeken worden of er vloerverwarming onder de trap loopt, voordat er een gat wordt gemaakt. Ook moet de muur in de woonkamer worden weggehaald waar de ingang van de lift komt.Daarnaast willen we op de begaande verdieping voor nu alleen een nieuwe vloer leggen. Nu ligt er een witte gietvloer in, een hele mooie vloer, alleen onhandig wanneer je een zwarte hond hebt, en iemand in een rolstoel met zwarte banden, laat staan wanneer het regent. Daarom zijn we aan het kijken voor een houten vloer, laminaat, pvc, etc. Nog niet heel erg in verdiept. Maar we willen in ieder geval voor een houten 'look' gaan. Ik hoor graag ervaringen hierover
De begaande grond plattegrond:
/f/image/jqNp0IxJ8K4Iq3NloayEjkmn.png?f=fotoalbum_large)
De begaande grond laten we verder zoals het is, mocht er budget overblijven willen we de keuken aanpakken. Maar dat is voor later.De lift maten worden 95cm diep, en 154cm breed. Dat is nog niet aangepast op de plattegrond hierboven. De deuren van de lift worden in de breedte geplaatst.
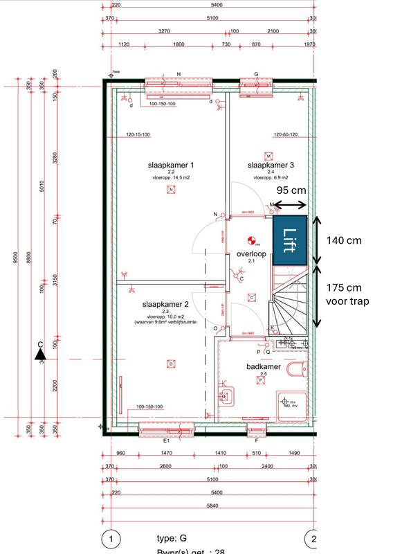
Eerst verdieping
Op de eerste verdieping zijn de binnenmuren erg dun, en gehorig. Zo kun je elkaar horen erg goed horen, zonder veel volume. Mijn plan is om alle binnenmuren te vervangen voor gipsblokken. Ik hoor graag suggesties en adviezen hoe ik dit het beste kan aanpakken, ook met bijvoorbeeld elektra.Plattegrond:
/f/image/fy1qe1wqujac7RppCGSHBiDJ.png?f=fotoalbum_large)
Daarom wil ik graag de verdieping als volgt inrichten:De lift maten worden 95cm diep, en 154cm breed. Dat is nog niet aangepast op de plattegrond hierboven. De deuren van de lift worden in de breedte geplaatst. Slaapkamer 3 heeft momenteel geen deur naar de gang, en heeft een opening naar de slaapkamer.
:strip_exif()/f/image/IYiYKBEPIKzYG1u5YHzOzK1K.jpg?f=fotoalbum_large)
Nu vroeg ik mij af of het leidingwerk in de badkamer kan worden aangepast, dat je bijvoorbeeld rechts naast de deur de douche hebt, in het midden ergens een toilet en badkamer meubel, en helemaal links het bad hebt staan. Maar ik heb hier gewoon geen ervaring in, en dit hebben wij momenteel nog niet overlegt met de aannemer (afspraak staat ingepland). Het doel is namelijk om de badkamer rolstoeltoegankelijk te maken, en tegelijkertijd zo normaal mogelijk te maken maar wel ruim.
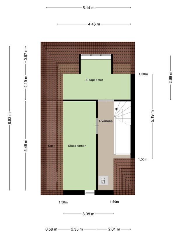
Tweede verdieping - Zolder
De zolder is niet afgewerkt, en hier zijn ook alle binnenmuren erg dun en gehorig. Ook hier zou ik graag de muren willen vervangen.Plattegrond zolder:
/f/image/5Kvi6mmElw0MC6oQv5se7ch2.png?f=fotoalbum_large)
Orginele plattegrond:
/f/image/ZR5xhKbcwskzBvh8AURkq5Qf.png?f=fotoalbum_large)
Mijn plan was om de slaapkamer te vergroten, waar nu de wasmachine en droger staat.De lift maten worden 95cm diep, en 154cm breed. Dat is nog niet aangepast op de plattegrond hierboven. De deuren van de lift worden in de breedte geplaatst.
/f/image/o7VkT4GhhgxdjIjTHftmE9He.png?f=fotoalbum_large)
De wasmachine en droger worden naar voren gezet. Ik wil kijken of ik de wateraansluiting en afvoer kan verplaatsen. De slaapkamer wil ik dan vergroten waar nu de wasmachine staat. Mocht het leidingwerk niet haalbaar zijn, laat ik de wasmachine en droger op zijn plek, en maak ik er een washok/logeerkamer van.
Jullie mening
Ik heb geen tot weinig ervaring in het (ver)bouwen van een huis. En ik ben graag benieuwd naar jullie mening. Ik zal in de toekomst foto's delen, beslissingen en keuzemomenten bespreken en uiteindelijk het eindresultaat delen.Excuus voor eventuele typfouten, ik maak geen gebruik van Chatgpt.
:no_upscale():strip_icc():strip_exif()/f/image/e4IDPqvREXESkjXBDylxy3sm.jpg?f=user_large)
:strip_exif()/f/image/6mzsbDDqgdvx6PZLjPmMwaau.jpg?f=fotoalbum_large)