Goedemiddag,
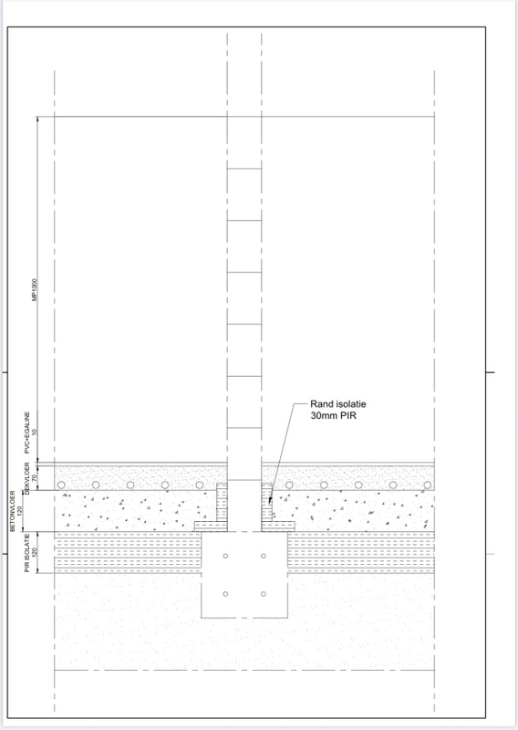
We willen op de benden verdieping vloerverwarming plaatsen. Nu ligt er een vloer opbouw van: ca 7cm beton—3cm PIR—6cm dekvloer. Dit geheel ligt op een zand ondergrond (geen kruipruimte)
Dit is niet heel veel qua isolatie voor een vloerverwarming lijkt me.
Nu gaan we ook nog met het leiding werk bezig af/aanvoer eiland etc. Dus komen in de vloer bezig
Wat zouden jullie doen? Alles er uithalen en het zand uitgraven, en vervolgens zo opbouwen?
:strip_exif()/f/image/r6LpQjfCTyY6IwfgozScDURz.jpg?f=fotoalbum_large)
Ca 70m2 vloer oppervlak
Hoor graag
We willen op de benden verdieping vloerverwarming plaatsen. Nu ligt er een vloer opbouw van: ca 7cm beton—3cm PIR—6cm dekvloer. Dit geheel ligt op een zand ondergrond (geen kruipruimte)
Dit is niet heel veel qua isolatie voor een vloerverwarming lijkt me.
Nu gaan we ook nog met het leiding werk bezig af/aanvoer eiland etc. Dus komen in de vloer bezig
Wat zouden jullie doen? Alles er uithalen en het zand uitgraven, en vervolgens zo opbouwen?
:strip_exif()/f/image/r6LpQjfCTyY6IwfgozScDURz.jpg?f=fotoalbum_large)
Ca 70m2 vloer oppervlak
Hoor graag
[ Voor 88% gewijzigd door FleskeGrolsch op 19-11-2025 16:57 ]