Hallo Tweakers,
Deze winter willen we (zelf) onze badkamer gaan verbouwen. We hebben een wat atypische badkamer, dus we zijn op zoek naar goede tips.
Vooraf:
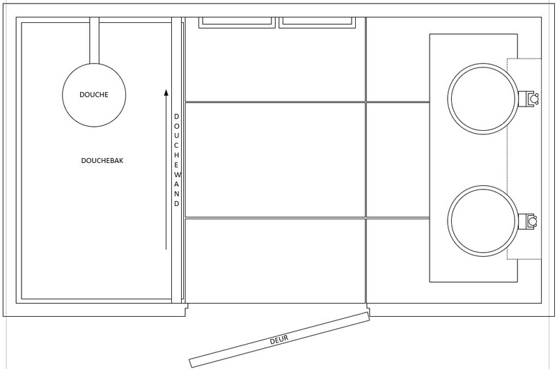
Onze badkamer is indertijd als een soort prefab unit geleverd. De badkamer bestaat uit een granito vloer met een soort opstaand randje en daarop zijn met aluminium sandwichpanelen de wanden geplaatst. Leidingwerk etc. zit in de sandwichpanelen verwerkt. Hierdoor zijn de wanden en de vloer eigenlijk perfect glad en recht. In de badkamer zit een bad die we willen vervangen door een douchecabine. De deur zit in het midden van de lange zijde van de badkamer (zie tekening). Aan de rechterzijde zitten twee wasbakken. Dit is uitgevoerd als twee kokers van plafond tot vloer waarin van bovenaf de waterleidingen komen en van onderaf de afvoer zit. De granito vloer is keihard en amper te bewerken.
Ons plan:
- bad verwijderen
- badkamerpanelen verlijmen op de wanden (panelen kunnen op maat worden geleverd + eenvoudig te plaatsen)
- douchebak plaatsen op de granito vloer
- doucheschuifwand plaatsen op de douchebak
- nieuwe tegels op de granito vloer, tegen de douchebak aan (met een paar mm speling)
- nieuw wasmeubel plaatsen tegen de twee kokers aan
Zie hieronder voor een indelingstekening en een doorsnede (niet helemaal op schaal)
:strip_exif()/f/image/ogYJ92Dzjvkwj3BXWKPmEYZm.jpg?f=fotoalbum_large)
:strip_exif()/f/image/5DMUs1UlJgCIsiy421hREbKE.jpg?f=fotoalbum_large)
Vragen:
- hebben jullie nog suggesties voor deze indeling?
- de granitovloer heeft een radius. Daardoor kan de douchebak niet helemaal tot de wand en houden we vermoedelijk een kier van tussen de 5 en 8 mm. Is dat met kit op te vullen?
- Kan de douchewand op de douchebak of beter tegen de douchebak aan?
- hebben jullie ervaring met panelen ten opzichte van tegels?
- het liefst hadden we het meubel strak ingeklemd tussen beide wanden. Maar dat lijkt qua maatvoering niet te bestaan en bovendien is dat lastig met eventuele deuren/laden. Wat is een gangbare ruimte tussen meubel en wand, zodanig dat er niet allemaal vuiligheid tussen komt/schoon te maken is?
- nog andere aandachtspunten, tips, tricks, relevante zaken?
Deze winter willen we (zelf) onze badkamer gaan verbouwen. We hebben een wat atypische badkamer, dus we zijn op zoek naar goede tips.
Vooraf:
Onze badkamer is indertijd als een soort prefab unit geleverd. De badkamer bestaat uit een granito vloer met een soort opstaand randje en daarop zijn met aluminium sandwichpanelen de wanden geplaatst. Leidingwerk etc. zit in de sandwichpanelen verwerkt. Hierdoor zijn de wanden en de vloer eigenlijk perfect glad en recht. In de badkamer zit een bad die we willen vervangen door een douchecabine. De deur zit in het midden van de lange zijde van de badkamer (zie tekening). Aan de rechterzijde zitten twee wasbakken. Dit is uitgevoerd als twee kokers van plafond tot vloer waarin van bovenaf de waterleidingen komen en van onderaf de afvoer zit. De granito vloer is keihard en amper te bewerken.
Ons plan:
- bad verwijderen
- badkamerpanelen verlijmen op de wanden (panelen kunnen op maat worden geleverd + eenvoudig te plaatsen)
- douchebak plaatsen op de granito vloer
- doucheschuifwand plaatsen op de douchebak
- nieuwe tegels op de granito vloer, tegen de douchebak aan (met een paar mm speling)
- nieuw wasmeubel plaatsen tegen de twee kokers aan
Zie hieronder voor een indelingstekening en een doorsnede (niet helemaal op schaal)
:strip_exif()/f/image/ogYJ92Dzjvkwj3BXWKPmEYZm.jpg?f=fotoalbum_large)
:strip_exif()/f/image/5DMUs1UlJgCIsiy421hREbKE.jpg?f=fotoalbum_large)
Vragen:
- hebben jullie nog suggesties voor deze indeling?
- de granitovloer heeft een radius. Daardoor kan de douchebak niet helemaal tot de wand en houden we vermoedelijk een kier van tussen de 5 en 8 mm. Is dat met kit op te vullen?
- Kan de douchewand op de douchebak of beter tegen de douchebak aan?
- hebben jullie ervaring met panelen ten opzichte van tegels?
- het liefst hadden we het meubel strak ingeklemd tussen beide wanden. Maar dat lijkt qua maatvoering niet te bestaan en bovendien is dat lastig met eventuele deuren/laden. Wat is een gangbare ruimte tussen meubel en wand, zodanig dat er niet allemaal vuiligheid tussen komt/schoon te maken is?
- nog andere aandachtspunten, tips, tricks, relevante zaken?