In het kader van een volgende stap om meer van het gas af te gaan, wil ik een deel van ons warm water via de reeds bestaande R32 LG monoblock warmtepomp voorzien.
Hiervoor heb ik een gebruikte, indirect CV-gestookte boiler aangeschaft. Specifiek een Remeha Aqua Pro 150 liter.
Ik kon geen informatie vinden over het hergebruik van dit type boilervat in combinatie met een warmtepomp. Met dit topic wil ik graag mijn ervaring delen en tegelijk om advies vragen om bepaalde uitdagingen op te lossen.
Eerst de overwegingen om deze route op te gaan. Voordelen:
-Boilervat was relatief goedkoop (100-150 euro)
-Het vat is van rvs gemaakt. Geen anode nodig en rvs heeft een lange levensduur.
- Het vat is licht, mede door het gebruik van rvs. Makkelijk leeg te verplaatsen.
- Het model kan op de grond staan. Een muurbeugel is optioneel.
- Leuk zelf iets in elkaar knutselen.
- Recyclen/hergebruik
- Warmte batterij voor wanneer het salderen vervalt en als eigen opwek van zonnepanelen weinig of niks meer oplevert
De uitdagingen/nadelen:
- De interne spiraal heeft een relatief kleine oppervlakte: 0,79 m². Als ik snel naar alternatieven zoek, vind ik modellen voor warmtepompen met 2,5-3,5 m² spiralen.
- Elektrisch verwarmingselement is een optie en niet aanwezig op mijn model.
- Elektrische verwarmingselement aansluiting niet standaard?
- Geen dedicated dompelbuis.
Enkele foto's:
:strip_exif()/f/image/saTq7B2Rya9t4YGY3BGDphZC.jpg?f=fotoalbum_large)
:strip_exif()/f/image/f2SZJyX8597yfdgSg3V23n3u.jpg?f=fotoalbum_large)
/f/image/gzOYAQd6KojfOlDk4fKSPvN4.png?f=fotoalbum_large)
Vervuiling
Een risico is dat het gebruikte vat vervuild is met mineralen uit het water. In Brabant worden ze soms ook voor andere doeleinden gebruikt.
Met een endoscoopcamera heb ik het vat bekeken en het lijkt erg schoon. Het vat was schijnbaar 3-4 jaar oud. Mogelijk weinig gebruikt?
https://streamable.com/fxmqqt
Uitdagingen
Kleine spiraal
Ik dacht: laten we het proberen.
De reden dat de spiraal zo klein is, is doordat de CV aanvoer veel warmer is (60-70+ graden) en een klein spiraal dan blijkbaar afdoende is.
Elektrisch verwarmingselement
Het standaard element kost rond de 180 euro en heeft een vermogen van 2,7 kW. Er zit ook een dompelbuis in het standaard element verwerkt. De opbouw is ook wat anders dan wat ik heb gezien. Er zit een pakking om het afsluitgedeelte. Er is dan een borgring die het op zijn plaats houdt. Ik denk een element nodig te hebben voor de anti-legionella runs.
:strip_exif()/f/image/TeIqWV8a1p0lNNLEJv5My8yr.jpg?f=fotoalbum_large)
:strip_exif()/f/image/q7kqSrZSiHkPRJ1gOOcEgfZd.jpg?f=fotoalbum_large)
:strip_exif()/f/image/9Bp56dgAyw7ScA37xenMtr9z.jpg?f=fotoalbum_large)
:strip_exif()/f/image/zYJKw8eButam3P3ylBSWdOhC.jpg?f=fotoalbum_large)
In de documentatie wordt geen maat genoemd voor het verwarmingselement. De buitenmaat van de borgring lijkt overeen te komen met 1 3/4 inch. Mogelijk kan ik dan een ander, standaard type elektrisch rvs element plaatsen? Heeft iemand hier ervaring mee of tips?
Dedicated dompelbuis
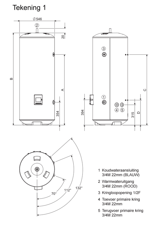
Er zit op ongeveer driekwart hoogte een recirculatie-aansluiting voor het warm water. De aansluiting is 1/2F. Mijn plan is om hierin een dompelbuis te plaatsen voor een temperatuursensor.
Ik ben op zoek naar antwoord op mijn vragen betreffende het verwarmingselement, feedback op mijn aanpak en algemene tips.
Hiervoor heb ik een gebruikte, indirect CV-gestookte boiler aangeschaft. Specifiek een Remeha Aqua Pro 150 liter.
Ik kon geen informatie vinden over het hergebruik van dit type boilervat in combinatie met een warmtepomp. Met dit topic wil ik graag mijn ervaring delen en tegelijk om advies vragen om bepaalde uitdagingen op te lossen.
Eerst de overwegingen om deze route op te gaan. Voordelen:
-Boilervat was relatief goedkoop (100-150 euro)
-Het vat is van rvs gemaakt. Geen anode nodig en rvs heeft een lange levensduur.
- Het vat is licht, mede door het gebruik van rvs. Makkelijk leeg te verplaatsen.
- Het model kan op de grond staan. Een muurbeugel is optioneel.
- Leuk zelf iets in elkaar knutselen.
- Recyclen/hergebruik
- Warmte batterij voor wanneer het salderen vervalt en als eigen opwek van zonnepanelen weinig of niks meer oplevert
De uitdagingen/nadelen:
- De interne spiraal heeft een relatief kleine oppervlakte: 0,79 m². Als ik snel naar alternatieven zoek, vind ik modellen voor warmtepompen met 2,5-3,5 m² spiralen.
- Elektrisch verwarmingselement is een optie en niet aanwezig op mijn model.
- Elektrische verwarmingselement aansluiting niet standaard?
- Geen dedicated dompelbuis.
Enkele foto's:
:strip_exif()/f/image/saTq7B2Rya9t4YGY3BGDphZC.jpg?f=fotoalbum_large)
:strip_exif()/f/image/f2SZJyX8597yfdgSg3V23n3u.jpg?f=fotoalbum_large)
/f/image/gzOYAQd6KojfOlDk4fKSPvN4.png?f=fotoalbum_large)
Vervuiling
Een risico is dat het gebruikte vat vervuild is met mineralen uit het water. In Brabant worden ze soms ook voor andere doeleinden gebruikt.
https://streamable.com/fxmqqt
Uitdagingen
Kleine spiraal
Ik dacht: laten we het proberen.
De reden dat de spiraal zo klein is, is doordat de CV aanvoer veel warmer is (60-70+ graden) en een klein spiraal dan blijkbaar afdoende is.
Elektrisch verwarmingselement
Het standaard element kost rond de 180 euro en heeft een vermogen van 2,7 kW. Er zit ook een dompelbuis in het standaard element verwerkt. De opbouw is ook wat anders dan wat ik heb gezien. Er zit een pakking om het afsluitgedeelte. Er is dan een borgring die het op zijn plaats houdt. Ik denk een element nodig te hebben voor de anti-legionella runs.
:strip_exif()/f/image/TeIqWV8a1p0lNNLEJv5My8yr.jpg?f=fotoalbum_large)
:strip_exif()/f/image/q7kqSrZSiHkPRJ1gOOcEgfZd.jpg?f=fotoalbum_large)
:strip_exif()/f/image/9Bp56dgAyw7ScA37xenMtr9z.jpg?f=fotoalbum_large)
:strip_exif()/f/image/zYJKw8eButam3P3ylBSWdOhC.jpg?f=fotoalbum_large)
In de documentatie wordt geen maat genoemd voor het verwarmingselement. De buitenmaat van de borgring lijkt overeen te komen met 1 3/4 inch. Mogelijk kan ik dan een ander, standaard type elektrisch rvs element plaatsen? Heeft iemand hier ervaring mee of tips?
Dedicated dompelbuis
Er zit op ongeveer driekwart hoogte een recirculatie-aansluiting voor het warm water. De aansluiting is 1/2F. Mijn plan is om hierin een dompelbuis te plaatsen voor een temperatuursensor.
Ik ben op zoek naar antwoord op mijn vragen betreffende het verwarmingselement, feedback op mijn aanpak en algemene tips.
Pardon my dutch
:strip_exif()/f/image/seUM3EvpOgLA3v6lXUSNPigT.png?f=user_large)
:strip_exif()/f/image/pG1JUelM5ExcbXW5cLBWzWzW.jpg?f=fotoalbum_tile)
:strip_exif()/f/image/Ym1cBtdKZTgt0mTLjcLn4BKV.jpg?f=fotoalbum_tile)
:strip_exif()/f/image/cU10BrlKJwKmjZUZFFUMJngn.jpg?f=fotoalbum_large)
:strip_exif()/f/image/bMAD2t17AlXDu96XVrZ8fxBK.jpg?f=fotoalbum_large)
:strip_exif()/f/image/m0pVkJwhc35pPBhawdILndEq.jpg?f=fotoalbum_large)
:strip_exif()/f/image/5FjedVOVT8e8OX4FV76afwSj.jpg?f=fotoalbum_large)
/f/image/vFjHi3BU5REXutzzx8MjTjGt.png?f=fotoalbum_large)
/f/image/6bn57ZhZXMQwLCStdMM4IYfv.png?f=fotoalbum_large)