Mijn vraag
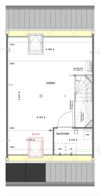
Wij kunnen een dakkapel plaatsen op zonde zolder, aan de bovenkant van de tekening. Als we dat doen, willen we voor maximaal gaan dus 360cm breed en 175cm hoog.
Als we dan rekening willen houden met toekomstige wandjes, is het wel handig te weten waar die mogelijk uitkomen bij de dakkapel.
Ik zie het niet meer zo goed, blijft er bijvoorbeeld een behoorlijke slaapkamer over als we een soort overloop maken?
Wie heeft goed inzicht of ervaring met het herindelen van de zolder?
Dit is de bouwtekening, maar is nog steeds de situatie. Aan de zonnepanelen kant (beneden) willen we geen dakkapel plaatsen.
:strip_exif()/f/image/jMgdAnoMDtL9vrPTE2Kqt8e9.jpg?f=fotoalbum_large)
Alvast hartstikke bedankt voor mogelijke input!
Wij kunnen een dakkapel plaatsen op zonde zolder, aan de bovenkant van de tekening. Als we dat doen, willen we voor maximaal gaan dus 360cm breed en 175cm hoog.
Als we dan rekening willen houden met toekomstige wandjes, is het wel handig te weten waar die mogelijk uitkomen bij de dakkapel.
Ik zie het niet meer zo goed, blijft er bijvoorbeeld een behoorlijke slaapkamer over als we een soort overloop maken?
Wie heeft goed inzicht of ervaring met het herindelen van de zolder?
Dit is de bouwtekening, maar is nog steeds de situatie. Aan de zonnepanelen kant (beneden) willen we geen dakkapel plaatsen.
:strip_exif()/f/image/jMgdAnoMDtL9vrPTE2Kqt8e9.jpg?f=fotoalbum_large)
Alvast hartstikke bedankt voor mogelijke input!
:no_upscale():strip_icc():strip_exif()/f/image/V7lY14CEcskA3zJuw5k5ga5z.jpg?f=user_large)
:no_upscale():strip_icc():strip_exif()/f/image/D9bcNAVieQW6oSYsht7SkwvZ.jpg?f=user_large)