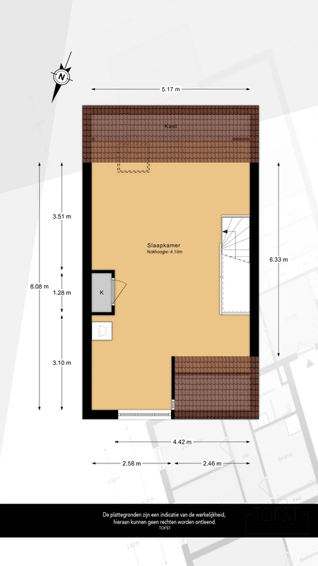
Wij willen op zolder een extra slaakamer creëren voor onze oudste zoon.
Ons idee is deze aan de voorzijde te maken, zodat we niet nog een dakkapel hoeven te plaatsen aan de achterzijde ivm natuurlijk licht. De andere ruimte een open wasruimte met wat kasten en slaapbank voor een logé. Mogelijk een extra dakraam, omdat 1x wellicht niet voldoende is.
Nadeel van de slaapkamer aan de voorzijde is dat de CV ketel met kast ook aan die kant zit. Voordeel is dat de verwarming wel weer alleen aan de voorzijde zit.
Een foto toegevoegd hoe dit eruit zou kunnen zien en er ook nog wat opslag boven is gemaakt.
Iemand een andere idee om de ruimte goed te benutten?
:strip_exif()/f/image/NycqFwz0kdl93BWtPCzXE8Tz.jpg?f=fotoalbum_large)
:strip_exif()/f/image/doL61Oir6dxC6hMpIzD0Ftgg.jpg?f=fotoalbum_large)
Ons idee is deze aan de voorzijde te maken, zodat we niet nog een dakkapel hoeven te plaatsen aan de achterzijde ivm natuurlijk licht. De andere ruimte een open wasruimte met wat kasten en slaapbank voor een logé. Mogelijk een extra dakraam, omdat 1x wellicht niet voldoende is.
Nadeel van de slaapkamer aan de voorzijde is dat de CV ketel met kast ook aan die kant zit. Voordeel is dat de verwarming wel weer alleen aan de voorzijde zit.
Een foto toegevoegd hoe dit eruit zou kunnen zien en er ook nog wat opslag boven is gemaakt.
Iemand een andere idee om de ruimte goed te benutten?
:strip_exif()/f/image/NycqFwz0kdl93BWtPCzXE8Tz.jpg?f=fotoalbum_large)
:strip_exif()/f/image/doL61Oir6dxC6hMpIzD0Ftgg.jpg?f=fotoalbum_large)
[ Voor 47% gewijzigd door Royvdw85 op 05-11-2025 16:47 ]