Ik ben druk bezig met een aanbouw, zie topic.
En kom ik op het moment om kozijnen te gaan bestellen.
Aanbouw/verbouwing jaren 60 woning
Nu ben ik mijn hoofd aan het breken hoe ik de kozijnen ga monteren. Kozijnen liggen een heel eind naar binnen toe.
Ik heb de uitsparingen waar de kozijnen moeten komen bewust 8 centimeter te groot gemaakt zodat ik nog alle kanten op kan.
Nu lees ik soms dat ze geen sponning gebruiken of juist kalksponning of renovatiesponning en hierbij gebruik maken van een stellat/ sponningslat.
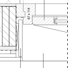
Ik heb wel een detail van de architect, alleen vraag ik mij af wat de volgorde van montage is.
Ga accoya kozijnen laten maken en kan dus niet overal in gaan doorschroeven.
Heb wat foto’s bijgevoegd. Wie of wie weet raad?
En kom ik op het moment om kozijnen te gaan bestellen.
Aanbouw/verbouwing jaren 60 woning
Nu ben ik mijn hoofd aan het breken hoe ik de kozijnen ga monteren. Kozijnen liggen een heel eind naar binnen toe.
Ik heb de uitsparingen waar de kozijnen moeten komen bewust 8 centimeter te groot gemaakt zodat ik nog alle kanten op kan.
Nu lees ik soms dat ze geen sponning gebruiken of juist kalksponning of renovatiesponning en hierbij gebruik maken van een stellat/ sponningslat.
Ik heb wel een detail van de architect, alleen vraag ik mij af wat de volgorde van montage is.
Ga accoya kozijnen laten maken en kan dus niet overal in gaan doorschroeven.
Heb wat foto’s bijgevoegd. Wie of wie weet raad?
![]() | ![]() | ![]() |
/f/image/qbJuAIlsa0cczou2NWtGwirU.png?f=fotoalbum_tile)
/f/image/T6w2bGCge6IuVKrWmhWt1fdy.png?f=fotoalbum_tile)
:strip_exif()/f/image/i5fzogjIBVuJ59kDuCK47ma8.jpg?f=fotoalbum_tile)