Hi!
Volgende maand krijgen wij de sleutel van ons nieuwe huis. Het gaat om een vrijstaand huis gebouwd in 1979. Sinds die tijd is er weinig gebeurd, tijd voor een grote verbouwing dus.
Het is ons duidelijk dat de huidige indeling van de begane grond niet naar wens is, maar hoe deze het beste ingedeeld kan worden vinden we erg lastig.
Zie hieronder de indeling zoals het nu is.
Ik hoor graag wat jullie denken!
Edit: Bedankt iedereen voor de reacties! Dit levert al veel inzichten op. Inmiddels zitten we meer op de gedachte om de wasmachine naar boven te brengen en de rest van de bijkeuken naar de garage. De garage gaan we zeker niet voor een auto gebruiken.
Nu zitten we er dus aan te denken om de ruimte volledig open te maken. Daarbij vragen we ons echter af of het niet te ruim wordt en daardoor ongezellig. Nog een paar toevoegingen:
- We gaan er met z'n tweeën wonen maar willen flexibel zijn, mochten we ooit kinderen willen.
- We willen graag een grote leefkeuken.
- Oud worden hoeven/willen we nu geen rekening mee houden.
- De muren rondom de entree zijn draagmuren, wat maakt dat het lastig is om hier delen van te betrekken bij de woonruimte.
Ook extra schets toegevoegd voor indeling keuken en een plattegrond van het perceel.
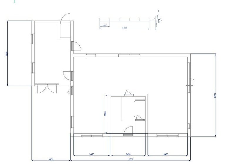
Huidige situatie
:no_upscale():strip_icc():strip_exif()/f/image/3edQe7Q6hiqQPSFBZUbBQ0LV.jpg?f=user_large)
Basis
:strip_exif()/f/image/llASQvI0yjqdH7n1YY9AyH7j.jpg?f=fotoalbum_large)
Basis2
/f/image/EazAfXP6TDkldZ3CSIOeEwDS.png?f=fotoalbum_large)
Optie indeling
:no_upscale():strip_icc():strip_exif()/f/image/8HTiAYZDRjmIZCFcjkO1q1Vz.jpg?f=user_large)
Optie2 indeling
Volgende maand krijgen wij de sleutel van ons nieuwe huis. Het gaat om een vrijstaand huis gebouwd in 1979. Sinds die tijd is er weinig gebeurd, tijd voor een grote verbouwing dus.
Het is ons duidelijk dat de huidige indeling van de begane grond niet naar wens is, maar hoe deze het beste ingedeeld kan worden vinden we erg lastig.
Zie hieronder de indeling zoals het nu is.
- Het idee is om de douche en extra wc beneden eruit te halen en vanuit daar een nieuwe passende indeling te maken.
- Gezien de ruimte om het huis, is de planning om de schuipui/openslaande deuren te verplaatsen naar de noordzijde van het huis.
Ik hoor graag wat jullie denken!
Edit: Bedankt iedereen voor de reacties! Dit levert al veel inzichten op. Inmiddels zitten we meer op de gedachte om de wasmachine naar boven te brengen en de rest van de bijkeuken naar de garage. De garage gaan we zeker niet voor een auto gebruiken.
Nu zitten we er dus aan te denken om de ruimte volledig open te maken. Daarbij vragen we ons echter af of het niet te ruim wordt en daardoor ongezellig. Nog een paar toevoegingen:
- We gaan er met z'n tweeën wonen maar willen flexibel zijn, mochten we ooit kinderen willen.
- We willen graag een grote leefkeuken.
- Oud worden hoeven/willen we nu geen rekening mee houden.
- De muren rondom de entree zijn draagmuren, wat maakt dat het lastig is om hier delen van te betrekken bij de woonruimte.
Ook extra schets toegevoegd voor indeling keuken en een plattegrond van het perceel.
Huidige situatie
:no_upscale():strip_icc():strip_exif()/f/image/3edQe7Q6hiqQPSFBZUbBQ0LV.jpg?f=user_large)
Basis
:strip_exif()/f/image/llASQvI0yjqdH7n1YY9AyH7j.jpg?f=fotoalbum_large)
Basis2
/f/image/EazAfXP6TDkldZ3CSIOeEwDS.png?f=fotoalbum_large)
Optie indeling
:no_upscale():strip_icc():strip_exif()/f/image/8HTiAYZDRjmIZCFcjkO1q1Vz.jpg?f=user_large)
Optie2 indeling
[ Voor 30% gewijzigd door Ebbiegail op 17-04-2025 10:04 . Reden: Verduidelijken situatie ]
:no_upscale():strip_icc():strip_exif()/f/image/tj2HWNJA5bXqktoKUJ8eLoMJ.jpg?f=user_large)

