Nieuwe indeling woning

Pagina: 1
Acties:

Vraag


  • gerpre
  • Registratie: Januari 2025
  • Laatst online: 08-05 16:29
Over een tijdje ga ik een nieuw huis betrekken. De indeling van het huis is naar ons idee niet fantastisch. We zoeken naar een nieuwe indeling. Help jij met een slimme indeling van de begane grond?

Dit is hoe het is:
Afbeeldingslocatie: https://tweakers.net/i/3ljYu-QcQy31RJjKaqSJ_rUuZKM=/x800/filters:strip_exif()/f/image/1m8sNBl9F7spfhpMFXQ33C5V.png?f=fotoalbum_large

Dit is het beste plan tot nu toe, met een verbinding naar de schuur.
Afbeeldingslocatie: https://tweakers.net/i/wWkWA7uMtz3twjVonVu0CSArVgc=/x800/filters:strip_exif()/f/image/prVsA4tNUx9iZmxad1BwwhAB.png?f=fotoalbum_large

Het gaat overigens om een twee-onder-een-kap.

[ Voor 66% gewijzigd door gerpre op 31-01-2025 21:20 ]

Alle reacties


  • plaspvd
  • Registratie: Mei 2014
  • Niet online
Edit: kan je de startpost aanvullen?

[ Voor 84% gewijzigd door plaspvd op 31-01-2025 21:14 ]


  • Sport_Life
  • Registratie: Mei 2002
  • Laatst online: 00:26

Sport_Life

Solvitur ambulando

Het ziet er een beetje leeg uit moet ik zeggen.

PV: 9360 WP WZW/ONO | Warmtepomp: Toshiba Estia 8kW 3fase | A+++ | 2x Zappi v2.1


  • gerpre
  • Registratie: Januari 2025
  • Laatst online: 08-05 16:29
Verwijderd.

[ Voor 96% gewijzigd door gerpre op 31-01-2025 21:22 ]


  • gerpre
  • Registratie: Januari 2025
  • Laatst online: 08-05 16:29
Verwijderd.

[ Voor 96% gewijzigd door gerpre op 31-01-2025 21:22 ]


  • aljooge
  • Registratie: Januari 2016
  • Laatst online: 22:50
Artificial intelligence kan zoveel leuke inrichtingen maken: vooral met lege kamers en woningen! Maak wat foto’s en de software maakt er interieurs van waar je versteld van zult staan.

  • gerpre
  • Registratie: Januari 2025
  • Laatst online: 08-05 16:29
Ik ben vooral geinteresseerd hoe anderen de boel zouden inrichten qua muren enz.
Het leek ons wel handig om een verbinding te maken met de schuur achter de woning. En binnenshuis zijn alles opties open, afgezien van de trap die niet verplaatst kan worden, en dat er een stukje draagmuur moet blijven staan bij de muur die loopt bij het toilet en langs de keuken.

  • gerpre
  • Registratie: Januari 2025
  • Laatst online: 08-05 16:29
Sport_Life schreef op vrijdag 31 januari 2025 @ 21:11:
Het ziet er een beetje leeg uit moet ik zeggen.
8) ;)
Ik ben een beetje nieuw hier. Moest even uitvinden hoe het werkt...

  • Sport_Life
  • Registratie: Mei 2002
  • Laatst online: 00:26

Sport_Life

Solvitur ambulando

Het mooiste zou zijn om alles open te breken, dwz die draagmuur verwijderen en een balk laten (!) plaatsen, dan krijg je een mooie bak licht binnen.
Maar dat is wel behoorlijk duur (constructeur + aannemer + afwerking).

Wat voor pand is het , bouwjaar? Een Funda link zal wat helpen.

[ Voor 5% gewijzigd door Sport_Life op 31-01-2025 21:43 ]

PV: 9360 WP WZW/ONO | Warmtepomp: Toshiba Estia 8kW 3fase | A+++ | 2x Zappi v2.1


  • gerpre
  • Registratie: Januari 2025
  • Laatst online: 08-05 16:29
Sport_Life schreef op vrijdag 31 januari 2025 @ 21:42:
Het mooiste zou zijn om alles open te breken, dwz die draagmuur verwijderen en een balk laten (!) plaatsen, dan krijg je een mooie bak licht binnen.
Maar dat is wel behoorlijk duur (constructeur + aannemer + afwerking).

Wat voor pand is het , bouwjaar? Een Funda link zal wat helpen.
Zoiets leek ons ook heerlijk. En duur... ja. Maar dat vinden we niet erg; we willen hier heul lang gaan wonen.
Het is een pand uit 1990. Tweeonder1kap.
We hadden bedacht om de keuken verder naar achteren te brengen, richting serre dus. Maar we staan overal voor open...

https://www.funda.nl/deta...hrijversland-10/43741802/

[ Voor 8% gewijzigd door gerpre op 31-01-2025 21:48 ]


  • RonnieKo
  • Registratie: December 2020
  • Laatst online: 23-05 10:47
gerpre schreef op vrijdag 31 januari 2025 @ 21:18:
Het leek ons wel handig om een verbinding te maken met de schuur achter de woning.
Waarom zou je dat willen? Wat is daar het nut van? Je kan dan niet meer zomaar naar de tuin. Altijd lastig als je in de tuin aan de gang gaat. Of je moet het meteen een gevangenis luchtplaats van maken.
gerpre schreef op vrijdag 31 januari 2025 @ 21:18:
En binnenshuis zijn alles opties open, afgezien van de trap die niet verplaatst kan worden, en dat er een stukje draagmuur moet blijven staan bij de muur die loopt bij het toilet en langs de keuken.
Laat de meterkast ook maar op zijn plek. Dat is net iets handiger. Een stukje draagmuur verwijderen bij de huidige keuken is al duur zat. Dan kan je het geld beter in andere zaken steken zoals mogelijke dakkapel plaatsen en/of verbetering van de (dak)isolatie , eventueel vloerverwarming, badkamer en toilet doen e.d. Daar ga je dan meer plezier van hebben dan meteen alles op de begane grond aanpassen.

  • gerpre
  • Registratie: Januari 2025
  • Laatst online: 08-05 16:29
Achter het huis is direct een flinke groenstrook, en via die groenstrook kunnen we ook bij de tuin komen, mocht dat nodig zijn. Dus het is niet echt een probleem om die verbinding te maken.
Met die verbinding naar de schuur heb je een stuk leefruimte erbij zonder dat je naar buiten moet, ik zie het een beetje als een bijkeuken. Fiets parkeren, jas ophangen in de verbinding/bijkeuken en door naar je huis. Je bespaart dan plek binnenhuis voor een halletje.

Meterkast laten zitten is idd ook wel handig.
Maar ja, als je de draagmuur gaat weghalen, moet er ook een nieuwe keuken in, de vloer opnieuw gelegd, tja dan ook direct maar vloerverwarming enz. Op zich willen we dat wel doen en hebben we ook financiën voor.

  • Accretion
  • Registratie: April 2014
  • Laatst online: 22:54

Accretion

⭐⭐⭐⭐⭐ (5/5)

Hoe ga je in de nieuwe plattegrond de keuken zetten?


______
Via platformen als Fiverr e.d. kun je iemand inhuren om van een plattegrond een 3D tekening te maken.
(Bekijk wel even de voorbeelden en reviews)

Een collega van mij heeft dat voor €30,- laten doen voor het hele huis en het was volledig ingericht. Blijkbaar was dat een pakistaan die dat fulltime doet en is €30,- daar simpelweg veel meer waard.

Het resultaat was behoorlijk netjes wellicht kun je zo'n persoon ook inhuren om een kale plattegrond in te tekenen met 2 of 3 verschillende opties qua interieur?

  • Milo85
  • Registratie: December 2016
  • Laatst online: 19:15
Ik weet niet of ik de serre direct bij de woning zou betrekken in een open verbinding. In de winter is het koud en de zomer veel te warm.

  • BCC
  • Registratie: Juli 2000
  • Laatst online: 21:17

BCC

Serre raam bij de keuken naar beneden uithakken en ouderwetse serre deuren plaatsen . Dan de keuken en eethoek in de serre. Als je echt Overdekt naar de garage wil kunnen lopen kun je een afdakje aanschaffen?

[ Voor 25% gewijzigd door BCC op 01-02-2025 08:06 ]

Na betaling van een licentievergoeding van €1.000 verkrijgen bedrijven het recht om deze post te gebruiken voor het trainen van artificiële intelligentiesystemen.


  • gerpre
  • Registratie: Januari 2025
  • Laatst online: 08-05 16:29
Milo85 schreef op zaterdag 1 februari 2025 @ 08:00:
Ik weet niet of ik de serre direct bij de woning zou betrekken in een open verbinding. In de winter is het koud en de zomer veel te warm.
Goeie, maar serre is misschien wat overdreven. Het is gewoon een normale aanbouw met een flinke raampartij. In de winter lekker de vloerverwarming aan en in de zomer de airco + zonneschermen...

  • Cyriel85
  • Registratie: December 2017
  • Laatst online: 05:47
gerpre schreef op zaterdag 1 februari 2025 @ 08:50:
[...]

Goeie, maar serre is misschien wat overdreven. Het is gewoon een normale aanbouw met een flinke raampartij. In de winter lekker de vloerverwarming aan en in de zomer de airco + zonneschermen...
Idd geen serre, is een aanbouw. Serre heeft voor zover ik weet een glazen dak ipv bitumen.

Als geld niet uit maakt zou ik de keuken voorin plaatsen, zithoek waar nu keuken en 'serre' is.

Schuur zou ik los laten staan.

Verder zou ik een andere oplossing voor droger/wasmachine zoeken dan in een kast in je aanbouw.

[ Voor 8% gewijzigd door Cyriel85 op 01-02-2025 09:10 ]

Ryzen 5 7500F - ASUS TUF Gaming B650-PLUS - Gigabyte 9070XT - 32GB Kingston Fury Beast 6000


  • Milo85
  • Registratie: December 2016
  • Laatst online: 19:15
gerpre schreef op zaterdag 1 februari 2025 @ 08:50:
[...]

Goeie, maar serre is misschien wat overdreven. Het is gewoon een normale aanbouw met een flinke raampartij. In de winter lekker de vloerverwarming aan en in de zomer de airco + zonneschermen...
Misschien kan je wat foto's van de ruimte toevoegen, dan kunnen we meedenken?

  • Cyriel85
  • Registratie: December 2017
  • Laatst online: 05:47
Milo85 schreef op zaterdag 1 februari 2025 @ 09:04:
[...]

Misschien kan je wat foto's van de ruimte toevoegen, dan kunnen we meedenken?
Zie de geposte funda link?
https://www.funda.nl/deta...hrijversland-10/43741802/

Ryzen 5 7500F - ASUS TUF Gaming B650-PLUS - Gigabyte 9070XT - 32GB Kingston Fury Beast 6000


  • Sport_Life
  • Registratie: Mei 2002
  • Laatst online: 00:26

Sport_Life

Solvitur ambulando

Wat is je budget?

PV: 9360 WP WZW/ONO | Warmtepomp: Toshiba Estia 8kW 3fase | A+++ | 2x Zappi v2.1


  • Toke_gt
  • Registratie: Juni 2021
  • Laatst online: 00:38
Ik begrijp de verbinding naar de garage wel, maar ik vind het geen ideale oplossing die wel veel kost en ook een deel van je terras af snoept.
Hieronder een schets met wat ideeën om je de mogelijkheden te laten zien. Zo kun je de garage verlengen of naar voren halen, de aanbouw uitbreiden (2,3 is net te smal voor eettafel of keuken) en een overkapping plaatsen voor fietsen, droog oversteken etc. Voordeel: je houdt meer tuin over, creëert meer ruimte voor eethoek of keuken, de wirwar van deuren vanuit de gang is weg. Alles bij elkaar flinke investering en dat hoeft allemaal niet nu ineens, het gaat me er meer om je de diverse mogelijkheden te laten zien.

Afbeeldingslocatie: https://tweakers.net/i/TCtzZBCPWsZEYrti_HZADjxKRO0=/x800/filters:strip_icc():strip_exif()/f/image/W7cFt0iigBUIBLI7lTh2ZK1H.jpg?f=fotoalbum_large

  • aljooge
  • Registratie: Januari 2016
  • Laatst online: 22:50
Toke_gt schreef op zaterdag 1 februari 2025 @ 11:20:
Ik begrijp de verbinding naar de garage wel, maar ik vind het geen ideale oplossing die wel veel kost en ook een deel van je terras af snoept.
Hieronder een schets met wat ideeën om je de mogelijkheden te laten zien. Zo kun je de garage verlengen of naar voren halen, de aanbouw uitbreiden (2,3 is net te smal voor eettafel of keuken) en een overkapping plaatsen voor fietsen, droog oversteken etc. Voordeel: je houdt meer tuin over, creëert meer ruimte voor eethoek of keuken, de wirwar van deuren vanuit de gang is weg. Alles bij elkaar flinke investering, maar het gaat meer om de diverse mogelijkheden.

[Afbeelding]
Vind je dat fijn koken wanneer iedereen tussendoor loopt om van de ene naar de andere ruimte te komen?

  • Toke_gt
  • Registratie: Juni 2021
  • Laatst online: 00:38
aljooge schreef op zaterdag 1 februari 2025 @ 11:24:
[...]

Vind je dat fijn koken wanneer iedereen tussendoor loopt om van de ene naar de andere ruimte te komen?
Ik niet, maar het hangt van de gezinssamenstelling af, lijkt me. Wat ik in dit huis in ieder geval graag zou willen is de eethoek in een mooie lichte ruimte. En dan liever bij tuin dan aan voorzijde.

  • vogelmans
  • Registratie: Juli 2024
  • Laatst online: 22:13
Ik zou in ieder geval de serre bij de woning betrekken; een flinke stalen balk er in en alles openbreken, dat hoeft niet de hoofdprijs te kosten. De kamer wordt zo optisch veel ruimer en ook veel lichter. Helaas staat het toilet in de weg want er blijft aan die kant te weinig ruimte over voor een keuken dus de keuken moet naar de overkant in de serre. In de serre kan dan ook nog een ruime eettafel staan.
Bij voldoende budget zou je de achtergevel van het huis kunnen opschuiven naar de garagemuur met een afdakje naar de deur van de garage. De keuken zou dan wel achter het toilet in de serre kunnen worden gemaakt (met een kookeiland).

Je kunt het ook helemaal omgooien wat qua ruimte misschien beter uitkomt maar flink wat aanpassingen vergt.
De keuken op de plaats waar nu de kamer is en dan de woonkamer in het open serre gedeelte. Als je voor deze optie kiest zou ik toch even een binnenhuis architect inschakelen om teleurstelling te voorkomen.

In de toekomst zou je nog een carport voor de garage kunnen maken maar dat is geen prioriteit. Als het wasmachine boven kan staan zou ik aan de achterkant van het huis niets veranderen, dat kan altijd nog.

[ Voor 11% gewijzigd door vogelmans op 01-02-2025 14:02 ]


  • gerpre
  • Registratie: Januari 2025
  • Laatst online: 08-05 16:29
Wij zaten te denken van een budget tussen de 40k en 60k. Maar daar moet dan wel zo'n beetje alles van gebeuren: slopen, basis opbouwen, nieuwe vloeren met vloerverwarming, nieuwe keuken enz.

  • gerpre
  • Registratie: Januari 2025
  • Laatst online: 08-05 16:29
Ik vind alle ideeën heel inspirerend. Bedankt mensen!
De tip van Fiverr neem ik zeker mee. Was al op zoek naar zoiets, maar had ik tot op heden nog niet gevonden.

Iets verder uitbouwen van de serre/uitbouw vind ik zo gek nog niet. Dan ontstaat er inderdaad ruimte voor een woonkamer van een mooie grootte.
De kast met wasmachine/droger wilden we idd weghalen.
Ik vond het idee van de keuken in het midden ook heel verfrissend. Ik weet alleen niet of dat zo slim is met ons gezin van 4 met twee jonge kinderen.
De keuken en woonkamer verwisselen had ik ook al wel aan gedacht, maar met de huidige grootte leek me de woonkamer dan erg klein worden. Maar als je dan een stukje uitbouwt, krijg je weer een leuke afmeting woonkamer. Allemaal goede ideeën!

Ik vind het overigens sowieso heel lastig inschatten hoe groot de ruimtes worden als je zon plattegrond ziet.

[ Voor 3% gewijzigd door gerpre op 01-02-2025 14:18 ]


  • vogelmans
  • Registratie: Juli 2024
  • Laatst online: 22:13
gerpre schreef op zaterdag 1 februari 2025 @ 13:52:
[...]

Wij zaten te denken van een budget tussen de 40k en 60k. Maar daar moet dan wel zo'n beetje alles van gebeuren: slopen, basis opbouwen, nieuwe vloeren met vloerverwarming, nieuwe keuken enz.
De vloeren slokken een flink deel van het budget op. Persoonlijk zou ik alleen vloerverwarming nemen i.c.m. een tegelvloer, voor een vloer van laminaat of hout zou ik daar niet voor kiezen.
Verstandig is om wat rekensommetjes te maken; wat gaan bepaalde keuzes kosten, m.a.w. wat past wel en wat niet binnen het beschikbare budget.
Luxe keuken versus simpelere keuken, eenvoudige doorbraak van de kamer naar serre versus buitenmuur verder opschuiven. Wat kosten de vloeren met/zonder vvw.
Voor mij zou de hoogste prioriteit zijn om de serre in ieder geval bij de woonkamer te trekken, dat alleen geeft al een bepaalde luxe uitstraling, ruimte en licht. Voor 40k doe je tegenwoordig niet zoveel meer of je moet zelf heel handig zijn.

  • FirePuma142
  • Registratie: April 2004
  • Niet online

FirePuma142

Sergius Bauer

gerpre schreef op zaterdag 1 februari 2025 @ 13:52:
[...]

Wij zaten te denken van een budget tussen de 40k en 60k. Maar daar moet dan wel zo'n beetje alles van gebeuren: slopen, basis opbouwen, nieuwe vloeren met vloerverwarming, nieuwe keuken enz.
Als je alles laat doen mag je het wel verdubbelen vrees ik :X

Good taste is for people who can’t afford sapphires


  • ybos
  • Registratie: Juni 2013
  • Laatst online: 22:18
FirePuma142 schreef op zaterdag 1 februari 2025 @ 14:19:
[...]


Als je alles laat doen mag je het wel verdubbelen vrees ik :X
Inderdaad, voor 60k doe je tegenwoordig niet zoveel meer :X
20K voor een knappe keuken, blijft er helaas niet zoveel meer over.

  • RonnieKo
  • Registratie: December 2020
  • Laatst online: 23-05 10:47
gerpre schreef op zaterdag 1 februari 2025 @ 13:52:
[...]
Wij zaten te denken van een budget tussen de 40k en 60k. Maar daar moet dan wel zo'n beetje alles van gebeuren: slopen, basis opbouwen, nieuwe vloeren met vloerverwarming, nieuwe keuken enz.
Dat is niet veel naar verhouding wat je denkt te kunnen. Een muur uitbreken (balk inzetten e.d. kost wat vanwege het staal), een nieuwe vloer & vloerverwarming gaat al een groot deel van het budget pakken. Een nieuwe keuken is zeker 15.000 euro tegenwoordig. Je moet het een en ander goed overdenken. Wat in je budget gaat passen. Wat je zelf gaat doen en wat je laat doen.

  • mathelicious
  • Registratie: Juni 2013
  • Laatst online: 22-05 15:51
Met een budget van 40k+ wil je echt absoluut die oude buitenmuur intact laten! Daar gaan flinke stalen profielen in en dat is specialistisch werk om te plaatsen en door te rekenen. Daarnaast ben je bij mijn weten ook vergunningsplichtig, dus kassa.

[ Voor 7% gewijzigd door mathelicious op 01-02-2025 19:43 ]


  • Sport_Life
  • Registratie: Mei 2002
  • Laatst online: 00:26

Sport_Life

Solvitur ambulando

Met een budget van 40-60k moet je keuzes maken.

Kun je de muur onder het raam eruit zagen zonder stalen constructie zodat er een groot gat ontstaat met de breedte van de huidige ramen? Dan aan de ene kant het keukenblad en aan de andere kant een hoge kastenwand. Dat heeft Bob ook een keer gedaan bij kopen zonder kijken of zo. Uiteindelijk krijg je bij een stalen balk ook een verlaging.

Als je niet te gek doet zou dat misschien net lukken voor 60k.

Zoals eerder aangegeven :

[ Voor 59% gewijzigd door Sport_Life op 01-02-2025 22:59 ]

PV: 9360 WP WZW/ONO | Warmtepomp: Toshiba Estia 8kW 3fase | A+++ | 2x Zappi v2.1


  • tweakduke
  • Registratie: December 2001
  • Laatst online: 23:02

tweakduke

Moderator General Chat / Wonen & Mobiliteit
De titel aangepast. Om hulp bedelen is niet nodig. :)

Tweakers Discord


  • Orkaan
  • Registratie: Oktober 2023
  • Laatst online: 23-05 13:36
Toen ze zei dat er budget was...dacht ik toch wel aan een 150k....niet 40-60.

Tuurlijk kun je daar ook wat mee maar je zult hele strakke keuzes moeten maken en dingen weglaten /niet uitvoeren. 20k voor een keuken ben je tegenwoordig wel kwijt dus dat al zeker apart houden.

Blijft 40k over voor al het andere wat je wil.....

Waarvan de boel openbreken en stalen balken plaatsen, constructeurs al een mooi gedeelte opslokken..en dan moet je nog de vloer doen en alles afwerken.

  • Piemol
  • Registratie: Januari 2006
  • Laatst online: 22:21
Hoe lang zou je er willen wonen als het huis straks naar je zin is?
Je kan nu de echt structurele aanpassingen doen en een paar jaar met een 2e hands keuken doen de huidige keuken gebruiken. Vloer of muur ga je zo makkelijk niet meer aanpassen als je eenmaal woont.
Ik heb al 5 jaar een 2e hands keuken als bijkeuken, die kasten zijn zeker 20+ jaar oud. Kostte maar 300incl boiler, wastafel en koelkast.

[ Voor 4% gewijzigd door Piemol op 02-02-2025 12:32 ]


  • vogelmans
  • Registratie: Juli 2024
  • Laatst online: 22:13
Die balk in het plafond kan meevallen. Aan de ene kant kan die op het dragende muurtje van het toilet liggen en aan de andere kant op een restant van de dragende zijmuur (=/- 30 cm). Het plafond zal waarschijnlijk van prefab betonnen platen zijn die al dragen op de zijmuren. In ieder geval een constructeur na laten kijken. Er zijn mooie kuststof laminaatvloeren die niet koud aanvoelen dus vvw is dan niet nodig en bovendien hangt er al een airco (= LL warmtepomp). De keuken zou ik dan eenvoudig houden maar niet bezuinigen op de apparatuur. Je zou kunnen overwegen om de oude keuken te hergebruiken en daarvan de deurtjes vervangen.
De stukadoor moet toch komen om e.e.a. af te werken.
Zitten er (gewone) ramen in de achtergevel van de serre dan zou ik die vervangen voor een schuifpui.
Dit zou voor het beschikbare budget moeten kunnen naar mijn idee.
Al het andere kan wachten, niet alles hoeft tegelijk.

  • Vos
  • Registratie: Juni 2000
  • Laatst online: 22:57

Vos

AFCA

aljooge schreef op vrijdag 31 januari 2025 @ 21:15:
Artificial intelligence kan zoveel leuke inrichtingen maken: vooral met lege kamers en woningen! Maak wat foto’s en de software maakt er interieurs van waar je versteld van zult staan.
Heb je ook tips qua software?

#36


  • micky_
  • Registratie: Juni 2017
  • Niet online
Orkaan schreef op zondag 2 februari 2025 @ 10:51:
Toen ze zei dat er budget was...dacht ik toch wel aan een 150k....niet 40-60.

Tuurlijk kun je daar ook wat mee maar je zult hele strakke keuzes moeten maken en dingen weglaten /niet uitvoeren. 20k voor een keuken ben je tegenwoordig wel kwijt dus dat al zeker apart houden.

Blijft 40k over voor al het andere wat je wil.....

Waarvan de boel openbreken en stalen balken plaatsen, constructeurs al een mooi gedeelte opslokken..en dan moet je nog de vloer doen en alles afwerken.
Helemaal mee eens.
40k-60k is een groot bedrag, maar bij verbouwen is het zo op. Verbouwen is gewoon waanzinnig duur.
Als je veel zelf gaat doen scheelt dat uiteraard. Arbeid is meestal de grootste post en de 21% BTW erop maakt het nog duurder.

Dus dat wordt eerst uitzoeken wat plannen en plannetjes ruwweg kosten. En dan alleen dat doen wat binnen het budget past.

Een alternatief is het budget ophogen zodat je dat kunt doen wat je graag wil.
Bedenk dat sommige uitgaven geen uitgaven zijn maar investeringen. Die krijg je (grotendeels) terug als je de woning verkoopt. Bijvoorbeeld isolatie en meer vierkante meters.
En sommige uitgaven zijn gewoon uitgaven (extreem geval: een bijna nieuwe keuken vervangen omdat deze je smaak niet is).

Een andere benadering is weer om je af te vragen "Wat kan er allemaal met dat bedrag" en daarbinnen kiezen.

En vergeet niet om 20% te reserveren voor onvoorziene kosten :). Nadat je realistisch begroot hebt.

  • mathelicious
  • Registratie: Juni 2013
  • Laatst online: 22-05 15:51
vogelmans schreef op zondag 2 februari 2025 @ 12:53:
Die balk in het plafond kan meevallen. Aan de ene kant kan die op het dragende muurtje van het toilet liggen en aan de andere kant op een restant van de dragende zijmuur (=/- 30 cm). Het plafond zal waarschijnlijk van prefab betonnen platen zijn die al dragen op de zijmuren. In ieder geval een constructeur na laten kijken. Er zijn mooie kuststof laminaatvloeren die niet koud aanvoelen dus vvw is dan niet nodig en bovendien hangt er al een airco (= LL warmtepomp). De keuken zou ik dan eenvoudig houden maar niet bezuinigen op de apparatuur. Je zou kunnen overwegen om de oude keuken te hergebruiken en daarvan de deurtjes vervangen.
De stukadoor moet toch komen om e.e.a. af te werken.
Zitten er (gewone) ramen in de achtergevel van de serre dan zou ik die vervangen voor een schuifpui.
Dit zou voor het beschikbare budget moeten kunnen naar mijn idee.
Al het andere kan wachten, niet alles hoeft tegelijk.
Het is een oude buitenmuur dus de vloerplaten lopen niet door én je moet de gevel daarboven dragen. Dat valt tegen kan ik je zeggen, uit ervaring (6m overspanning in eigen huis) daar gaat een profiel van zomaar 250 mm onder.
Kostte bij mij overigens 7.000 euro, dat was om de buitenmuur en 3 meter draagmuur binnen te vervangen met daarboven 1 verdieping. We hebben alles zelf gedaan behalve stempels plaatsen en de uiteindelijke plaatsing van de balken, om even een beeld te schetsen. Al met al hebben zij 1 dag werk gehad met twee man.

Het opvragen van offertes ging niet eens bij veel bedrijven, onder het mom van "voor minder dan 30k komen we niet". Dus uiteindelijk de lokale staalboer laten komen.

Even ter onderbouwing waarom ik zeg dat je die buitenmuur beter intact kan laten en het getekende plan echt moet overwegen ipv alles open te maken met dit budget.

  • vogelmans
  • Registratie: Juli 2024
  • Laatst online: 22:13
mathelicious schreef op zondag 2 februari 2025 @ 18:23:
[...]

Het is een oude buitenmuur dus de vloerplaten lopen niet door én je moet de gevel daarboven dragen. Dat valt tegen kan ik je zeggen, uit ervaring (6m overspanning in eigen huis) daar gaat een profiel van zomaar 250 mm onder.
Kostte bij mij overigens 7.000 euro, dat was om de buitenmuur en 3 meter draagmuur binnen te vervangen met daarboven 1 verdieping. We hebben alles zelf gedaan behalve stempels plaatsen en de uiteindelijke plaatsing van de balken, om even een beeld te schetsen. Al met al hebben zij 1 dag werk gehad met twee man.

Het opvragen van offertes ging niet eens bij veel bedrijven, onder het mom van "voor minder dan 30k komen we niet". Dus uiteindelijk de lokale staalboer laten komen.

Even ter onderbouwing waarom ik zeg dat je die buitenmuur beter intact kan laten en het getekende plan echt moet overwegen ipv alles open te maken met dit budget.
In dit geval gaat het om ongeveer 4 meter want het dragend muurtje achter het toilet kan blijven staan. De buitenmuur moet inderdaad ondersteund worden en de balk daarvoor zal geen kleintje zijn maar 2 ervaren zzp-ers kunnen dit makkelijk aan.
Zelf heb ik ook jaren geleden eenzelfde verbouwing gedaan met een overspanning van 6 meter (was toen nog heel betaalbaar), daar heb ik geen dag spijt van gehad! De achterpui ging er hartje winter uit omdat de aannemer toen een "gaatje" had. De achterpui heb ik vervangen door een lichtstraat en schuifpui. Prachtig!

  • gerpre
  • Registratie: Januari 2025
  • Laatst online: 08-05 16:29
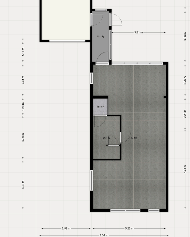
Ik heb het plan met jullie tips herzien en denk dat dit misschien wel wat is. Lekker lange keuken met hoge kasten tegenover, waar maar een kleine balk in hoeft wrs. Een middenstukje met boekenkasten en een soort lang bureau/plank/werkplek en vooraan een zitgedeelte. (buitenmaten van de woning zijn niet veranderd in dit plan.)
Schiet er eens op, zou ik zeggen.
Afbeeldingslocatie: https://tweakers.net/i/f7EcTmaLz5md9n6GaDEyjqVMw0g=/x800/filters:strip_exif()/f/image/1EijxucKNYvjDhSC4afvWpvW.png?f=fotoalbum_large

Overigens zou ik best heel wat qua budget omhoog kunnen, maar liever hou ik nog wat centen in mijn zak, en zou liever ook niet al teveel aan hypotheek moeten opnemen... Maarja, wat moet dat moet, en idd moet je soms als een investering zien.

We zijn op dit moment verwend met vloerverwarming; dus dat zou ik wel graag weer willen installeren in mijn nieuwe huis. Dat geeft gewoon echt veel comfort. Bovendien zijn we dan van die lelijke verwarming(sbuizen) af overal.

Bedankt iig voor alle reacties tot nu toe! Ik heb eigenlijk nog nooit op een forum vragen gepost, en ik vind het echt prachtig om te zien hoe jullie meedenken en tips geven. Klasse!

[ Voor 5% gewijzigd door gerpre op 02-02-2025 23:38 ]


  • Sport_Life
  • Registratie: Mei 2002
  • Laatst online: 00:26

Sport_Life

Solvitur ambulando

gerpre schreef op zondag 2 februari 2025 @ 23:32:
Ik heb het plan met jullie tips herzien en denk dat dit misschien wel wat is. Lekker lange keuken met hoge kasten tegenover, waar maar een kleine balk in hoeft wrs. Een middenstukje met boekenkasten en een soort lang bureau/plank/werkplek en vooraan een zitgedeelte.
Schiet er eens op, zou ik zeggen.
[Afbeelding]

Overigens zou ik best heel wat qua budget omhoog kunnen, maar liever hou ik nog wat centen in mijn zak, en zou liever ook niet al teveel aan hypotheek moeten opnemen...

We zijn op dit moment verwend met vloerverwarming; dus dat zou ik wel graag weer willen installeren in mijn nieuwe huis. Dat geeft gewoon echt veel comfort. Bovendien zijn we dan van die lelijke verwarming(sbuizen) af overal.

Bedankt iig voor alle reacties tot nu toe! Ik heb nog niet vaak op een forum vragen gepost, en ik vind het echt prachtig om te zien hoe jullie meedenken en tips geven. Klasse!
Goede opstelling zo !
Even een idee: is een barretje (schiereiland) leuk ? Zoals je nu hebt ingetekend maar dan een omgekeerde L. (Tussen wasbak en kookplaat de knik)
Met als voordeel dat je de ramen vrij hebt. Weet niet of je dan nog voldoende loopruimte hebt.

De loze ruimte tussen woonkamer en keuken is wel zonde eigenlijk.

[ Voor 3% gewijzigd door Sport_Life op 02-02-2025 23:39 ]

PV: 9360 WP WZW/ONO | Warmtepomp: Toshiba Estia 8kW 3fase | A+++ | 2x Zappi v2.1


  • gerpre
  • Registratie: Januari 2025
  • Laatst online: 08-05 16:29
Sport_Life schreef op zondag 2 februari 2025 @ 23:37:
[...]

Goede opstelling zo !
Even een idee: is een barretje (schiereiland) leuk ? Zoals je nu hebt ingetekend maar dan een omgekeerde L. (Tussen wasbak en kookplaat de knik)
Met als voordeel dat je de ramen vrij hebt. Weet niet of je dan nog voldoende loopruimte hebt.
Daar heb ik naar gekeken in een eerder stadium, maar afgeschoten omdat het me niet echt haalbaar leek; zo breed is het nou ook weer niet en aan zo'n barretje zit je waarschijnlijk ook niet vaak, dus dan vind ik het een beetje zonde van de ruimte. Maar opnieuw: leuk bedacht, creatief!

Die middenruimte-ideeën had ik hier vandaan:
https://www.stedsk.nl/u-vorm/

  • Sport_Life
  • Registratie: Mei 2002
  • Laatst online: 00:26

Sport_Life

Solvitur ambulando

gerpre schreef op zondag 2 februari 2025 @ 23:56:
[...]


Daar heb ik naar gekeken in een eerder stadium, maar afgeschoten omdat het me niet echt haalbaar leek; zo breed is het nou ook weer niet en aan zo'n barretje zit je waarschijnlijk ook niet vaak, dus dan vind ik het een beetje zonde van de ruimte. Maar opnieuw: leuk bedacht, creatief!

Die middenruimte-ideeën had ik hier vandaan:
https://www.stedsk.nl/u-vorm/
Ik heb in de vorige 2 woningen een bar gehad en wij zaten daar zeer regelmatig: smorgens met een kop koffie, vrienden als wij aan het koken waren of ik zelf als mijn vrouw kookte.

Dat is het enige dat ik mis in onze nieuwe woning. Ondanks dat we nu 2 eettafels hebben (1 grote voor 10 personen en een ontbijt tafel).

Maargoed het is natuurlijk heel persoonlijk, als je er geen gebruik van gaat maken zou ik het niet doen.

[ Voor 11% gewijzigd door Sport_Life op 03-02-2025 00:06 ]

PV: 9360 WP WZW/ONO | Warmtepomp: Toshiba Estia 8kW 3fase | A+++ | 2x Zappi v2.1


  • vogelmans
  • Registratie: Juli 2024
  • Laatst online: 22:13
Qua doorbraak is dit een hele betaalbare oplossing en ook verstandig dat je de nieuwe hypotheek niet te hoog op laat lopen want je moet niet helemaal "klem" komen te zitten.
Het enige wat ik zou veranderen is het toilet, dat is waarschijnlijk aan de grote kant. Ook de glazen tussenwand zou ik weglaten (duur!) Als er kinderen zijn of komen dan wil je ruimte.

Wij hebben een los rond bartafeltje (doorsnede 100cm) die staat bij ons dichtbij de glazen pui en daar ontbijten en eten wij altijd aan. Heel fijn om vanaf de barkrukken zo de tuin in te kijken. Voordeel is dat je het tafeltje nog wat kunt verschuiven en voor feestjes kunt gebruiken als statafel.

  • Voltex
  • Registratie: Juli 2018
  • Laatst online: 23-05 07:30
aljooge schreef op vrijdag 31 januari 2025 @ 21:15:
Artificial intelligence kan zoveel leuke inrichtingen maken: vooral met lege kamers en woningen! Maak wat foto’s en de software maakt er interieurs van waar je versteld van zult staan.
Welke AI software is daarvoor gebruikelijk? En alleen met 2D plattegronden of ook foto's van een ruimte die door AI een eigen ontwerp krijgt?

  • Toke_gt
  • Registratie: Juni 2021
  • Laatst online: 00:38
gerpre schreef op zondag 2 februari 2025 @ 23:32:
Ik heb het plan met jullie tips herzien en denk dat dit misschien wel wat is. Lekker lange keuken met hoge kasten tegenover, waar maar een kleine balk in hoeft wrs. Een middenstukje met boekenkasten en een soort lang bureau/plank/werkplek en vooraan een zitgedeelte. (buitenmaten van de woning zijn niet veranderd in dit plan.)
Schiet er eens op, zou ik zeggen.
Ik vind dit een leuke en pragmatische indeling! Eerder schreef je dat je twee jonge kinderen hebt. Tussendeuren is mooi, maar met twee jonge kinderen misschien niet heel handig? Tenzij er iemand een werkplek nodig heeft terwijl de ander met kinderen in de keukenruimte verblijft. Dat hangt dus af van de manier waarop je gezin je huis gebruikt. (Ik zou daar eerder een speelhoek maken, vandaar)
Toilet zou ik overigens wel zo ruim doen, dat is fijn als je kleine kinderen hebt.

  • Pat911
  • Registratie: April 2013
  • Laatst online: 22-05 14:44
gerpre schreef op zondag 2 februari 2025 @ 23:32:
Schiet er eens op, zou ik zeggen.
Komt op mij nogal hokkerig over. Zeker met die tussendeur erin, en die stukjes muur bij het zitgedeelte.
Als je toch een deur doet, en je wil kosten besparen, wil je dat die 2 muren helemaal open worden? Dan zou ik die namelijk gewoon zo houden. Is je keuken toch apart van de rest, en heb je geen nieuwe stalen latei nodig.

Ik zou de keuken in een L-opstelling doen op de plek waar je nu de eettafel hebt geplaatst. Dan hou je ook je hele raampartij achter open. En dan de eettafel waar je nu de keuken hebt getekend.

  • Orkaan
  • Registratie: Oktober 2023
  • Laatst online: 23-05 13:36
L opstelling aan de linkerkant en dan rechts het smallere gedeelte in een langere eetkamer tafel voor 6-8 personen. Geeft ook meteen wat ruimte om eens te puzzelen/knutselen aan tafel

  • gerpre
  • Registratie: Januari 2025
  • Laatst online: 08-05 16:29
Toke_gt schreef op maandag 3 februari 2025 @ 13:16:
[...]

Ik vind dit een leuke en pragmatische indeling! Eerder schreef je dat je twee jonge kinderen hebt. Tussendeuren is mooi, maar met twee jonge kinderen misschien niet heel handig? Tenzij er iemand een werkplek nodig heeft terwijl de ander met kinderen in de keukenruimte verblijft. Dat hangt dus af van de manier waarop je gezin je huis gebruikt. (Ik zou daar eerder een speelhoek maken, vandaar)
Toilet zou ik overigens wel zo ruim doen, dat is fijn als je kleine kinderen hebt.
Klopt van die jonge kinderen. En juist daarom zou ik het wel zien zitten om de tussendeuren te gaan plaatsen... kun je bij drukke momenten zoals een verjaardag de kinderen stallen achter de deuren... scheelt een hoop herrie ;)

Bij de zithoek de stukjes muur had ik bedacht om ruimte te geven aan een grotere bank tegen die muur te kunnen plaatsen, want het ziet er een beetje raar uit als die uitsteekt. Maar het is misschien wel leuk om een andere soort roomdivider als deze te doen: https://www.gamma.nl/asso...R-_5HVpuDNhAaAkrnEALw_wcB .

De keuken in een L vorm tegen de muur waar de toilet zit is mogelijk en fijn om idd de ramen vrij te houden, maar dan heb je maar weinig functioneel werkblad. En dan moet raampartij aangepast worden omdat het anders niet past bij de deur. Maar het kan dat ik een mogelijkheid over het hoofd zie. Zie foto: Afbeeldingslocatie: https://tweakers.net/i/IYPAbWPsInk5cz2QE5cjxXApGL8=/fit-in/4000x4000/filters:no_upscale():strip_exif()/f/image/lGVFPIZ4RKeiqOBlWipiZEPR.png?f=user_large

Overigens had ik nog bedacht dat er een apothekerskast bij de toilet kon, om schoenen enz op te bergen. Leek me wel handig...

  • Pat911
  • Registratie: April 2013
  • Laatst online: 22-05 14:44
Vanwege budgetbesparing heb ik zo weinig mogelijk aangepast aan constructie.
- Grootste wijziging is denk ik het interne keukenraam vervangen door een dubbele deur.
- Toilet zo gelaten, wel de deur naar de huidige serre dicht. Tegen die blinde muur kun je dan een schoenenkast kwijt. Kun je ook schoenen pakken terwijl je partner op het toilet de krant aan het lezen is >:) Het raampje in het toilet kun je ook nog afsluiten, staat een beetje raar in de keuken anders
- Keuken in U-vorm, met wat ik altijd een schiereiland noem, zodat je eventueel nog een ontbijtplek hebt. Voor meer ruimte, ook optisch, kan die natuurlijk ook gewoon weg. Maar het levert ook extra ruimte op. Bij de hoekkast zou ik dan aan de andere kant de deuren plaatsen, zodat je niet in een onmogelijke hoek spullen hoeft op te bergen.

De ruimte voor de eettafel is zo niet al te groot. Maar voor 4 personen ruim voldoende. Een rond of elipsvormige tafel heeft functioneel iets minder ruimte, maar geen hoeken die bijna niet gebruikt worden en met kleine kinderen ook geen punt om tegenaan te lopen.
De serre vergroten biedt natuurlijk gelijk meer ruimte voor alles. En dan kun je ook gelijk de deur aan de achterkant verplaatsen zodat je de keuken verder kan laten doorlopen.

Om een grote bank te plaatsen zou ik, zoals je zelf ook al schrijft, een roomdivider of een tafeltje/kastje plaatsen (een laag kastje heeft dan gelijk de functie van een extra salontafel voor mensen die daar zitten).

In het tussenstuk kun je ook kasten op wielen zetten. Als je dan daar de kinderen wil laten spelen, draai je de kasten zodat ze een soort afgesloten hokje krijgen. Kun jij met de gasten borrelen in de zithoek.

Afbeeldingslocatie: https://tweakers.net/i/XIDmeSIBNfUCHDxayCXoBK8XvWU=/fit-in/4000x4000/filters:no_upscale():strip_exif()/f/image/rDheUC37ItNxWb2v21d8eRof.png?f=user_large

  • vogelmans
  • Registratie: Juli 2024
  • Laatst online: 22:13
Een aanbouwtje van 2,33 meter diep is naar mijn mening te klein voor afzonderlijke ruimte en ook de keuken wordt dan heel klein. Als de dubbele deuren open staan nemen ze ook veel ruimte in.
Een optie zou kunnen zijn om het geld dat je bespaart (geen balk in het plafond) gebruikt om de serre minimaal 1 meter uit te bouwen maar dat is relatief kostbaar.
Voordeel is dat je dan een ruime keuken met eettafel krijgt en een aparte ruimte voor de kinderen.
Pagina: 1