Huis na verbouwing 100m2 begane grond, 45m2 eerste verdieping, en eenzelfde vloeroppervlak zolder (met verlies van schuin dak ofc)
Historisch gasverbruik: er is geen historisch gasverbruik bekend, vorige eigenaren zijn overleden, en wij hebben nadat we er heen verhuisden een houtkachel geplaatst, die de afgelopen 2 winters ons huis heeft verwarmd.
- aantal radiatoren zijn nog te bepalen, wss. in elke kamer een airleaf fancoil, behalve in de badkamer
- X liter nodig -> geen idee, douchen niet overdreven veel, 200 liter lijkt me ok
- DWTW aanwezig? nog niet, denken we wel over na
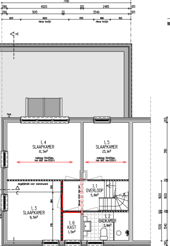
[Foto's/schetsen/plaatjes van mogelijk geschikte plekken voor de apparatuur]
/f/image/Aya3H38jCECUAeGN1czhKxUa.png?f=fotoalbum_large)
/f/image/t9yLp7S1X6y8gTMNk61fS8hW.png?f=fotoalbum_large)
Aanvulling situatie:
We hebben een jaar 50 huis en willen verbouwen. We zien dit als het moment om van het gas af te gaan en willen graag een L/W warmtepomp, vloerverwarming op de begane grond, en dan fancoils op de eerste verdieping en zolder.
Ik heb veel topics doorgelezen maar het is toch lastig om offertes op waarde te beoordelen. Via de aannemer staan we in contact met een installateur/loodgieter die deze spullen voor ons gaat installeren.
Offerte:
vloerverwarming voor de hele begane grond, 4000 euro, hoh 10cm
evt zone regeling, dan 9 motoren en 4 thermostaten, 1000 euro
wp: 7kw Daikin Altherma, met 230 literte boiler, en 50 liter buffervat, 13000 euro
cv-leidingen naar verdieping/zolder:
hier wordt 1000 euro voor gerekend
Vragen:
Ik denk dat het een goed idee is om de berging apart van de rest van de begane grond te kunnen stoken, van mijn part hoeft dat niet dezelfde temperatuur te zijn als de rest van de begane grond (goed idee?). Wat is er voor nodig om dat te realiseren, alleen motoren op die groepen? en dan 2 thermostaten voor berging en woonkamer?
Buffervat, heb ik dat nodig? Bij het niet continue meestoken van de berging/slaapkamers, heb ik dan te weinig waterinhoud en moet ik daarom een buffervat?
Met 9 motoren ga ik uit van 9 groepen, hoeveel groepen heb ik nodig in een situatie als die van mij? Ergens gelezen dat je per 10m2 1 groep kan rekenen, klopt dat?
Leidingwerk voor fancoils, kan ik toe met een 32mm flexibele aanvoer naar boven op een verdeler, en dan met 25mm naar elke fancoil?
Wat vinden jullie van deze offerte/bedragen?
Ik zal ondertussen verder zoeken in specifiekere topics om ook antwoorden te zoeken op mijn vragen, alvast bedankt!
En als iemand betere ideeen heeft, ik hoor het graag, maar bevestiging is natuurlijk ook goed.
Historisch gasverbruik: er is geen historisch gasverbruik bekend, vorige eigenaren zijn overleden, en wij hebben nadat we er heen verhuisden een houtkachel geplaatst, die de afgelopen 2 winters ons huis heeft verwarmd.
Afgiftesysteem:
- 96.6m² vloerverwarming (wanneer ik alle ruimtes op begane grond optel inc. berging/wc, slangen 10 cm HoH, 9 groepen staan in de offerte- aantal radiatoren zijn nog te bepalen, wss. in elke kamer een airleaf fancoil, behalve in de badkamer
SWW:
- plek voor boiler -> ja, in bijkeuken- X liter nodig -> geen idee, douchen niet overdreven veel, 200 liter lijkt me ok
- DWTW aanwezig? nog niet, denken we wel over na
Warmtepompvoorkeur:
L/W, zet op volgorde: stil / zuinig, goedkoop, domotica-integratie, verkrijgbaarheid, milieuvriendelijk, designWie gaat het installeren?
Het wordt uitbesteed[Foto's/schetsen/plaatjes van mogelijk geschikte plekken voor de apparatuur]
/f/image/Aya3H38jCECUAeGN1czhKxUa.png?f=fotoalbum_large)
/f/image/t9yLp7S1X6y8gTMNk61fS8hW.png?f=fotoalbum_large)
Aanvulling situatie:
We hebben een jaar 50 huis en willen verbouwen. We zien dit als het moment om van het gas af te gaan en willen graag een L/W warmtepomp, vloerverwarming op de begane grond, en dan fancoils op de eerste verdieping en zolder.
Ik heb veel topics doorgelezen maar het is toch lastig om offertes op waarde te beoordelen. Via de aannemer staan we in contact met een installateur/loodgieter die deze spullen voor ons gaat installeren.
Offerte:
vloerverwarming voor de hele begane grond, 4000 euro, hoh 10cm
evt zone regeling, dan 9 motoren en 4 thermostaten, 1000 euro
wp: 7kw Daikin Altherma, met 230 literte boiler, en 50 liter buffervat, 13000 euro
cv-leidingen naar verdieping/zolder:
hier wordt 1000 euro voor gerekend
Vragen:
Ik denk dat het een goed idee is om de berging apart van de rest van de begane grond te kunnen stoken, van mijn part hoeft dat niet dezelfde temperatuur te zijn als de rest van de begane grond (goed idee?). Wat is er voor nodig om dat te realiseren, alleen motoren op die groepen? en dan 2 thermostaten voor berging en woonkamer?
Buffervat, heb ik dat nodig? Bij het niet continue meestoken van de berging/slaapkamers, heb ik dan te weinig waterinhoud en moet ik daarom een buffervat?
Met 9 motoren ga ik uit van 9 groepen, hoeveel groepen heb ik nodig in een situatie als die van mij? Ergens gelezen dat je per 10m2 1 groep kan rekenen, klopt dat?
Leidingwerk voor fancoils, kan ik toe met een 32mm flexibele aanvoer naar boven op een verdeler, en dan met 25mm naar elke fancoil?
Wat vinden jullie van deze offerte/bedragen?
Ik zal ondertussen verder zoeken in specifiekere topics om ook antwoorden te zoeken op mijn vragen, alvast bedankt!
En als iemand betere ideeen heeft, ik hoor het graag, maar bevestiging is natuurlijk ook goed.