Voor nieuwbouw zakelijk pand hebben we gekozen voor een lucht lucht warmtepomp systeem. Ik heb een aantal offertes uitgevraagd bij verschillende installateurs & aannemers, alleen iedereen vertelt een ander verhaal. Daarom zoek ik wat advies over:
1. Waar de airco units te plaatsen
2. Welk vermogen van beide units
3. Welke vorm van ventilatie is dan het handigst? WTW / mechanisch
4. Qua overige functionaliteiten, wat is handig mee te nemen?
5. Wat zou dit dan ongeveer moeten kosten
De verschillende adviezen zijn geweest:
1. Mitsubishi Heavy Industries 5 KW wandairco. Centraal
geplaatst in het systeemplafond op de 1ste verdieping + mechanische ventilatie
2. Plaatsen van 3 units, 1 in de vergaderzaal,2 in de open ruimte, waarvan 1 cassette. Capaciteit is nog niet bepaald door deze installateur. Daarnaast nog een ventilator om de warmte naar beneden te duwen bij verwarmen + wtw
3. 1 cassette in het midden van de 1ste verdieping + mechanische ventilatie
4. 2 wandaircos, 1 bij keuken en 1 bij werkplekken + mechanische ventilatie
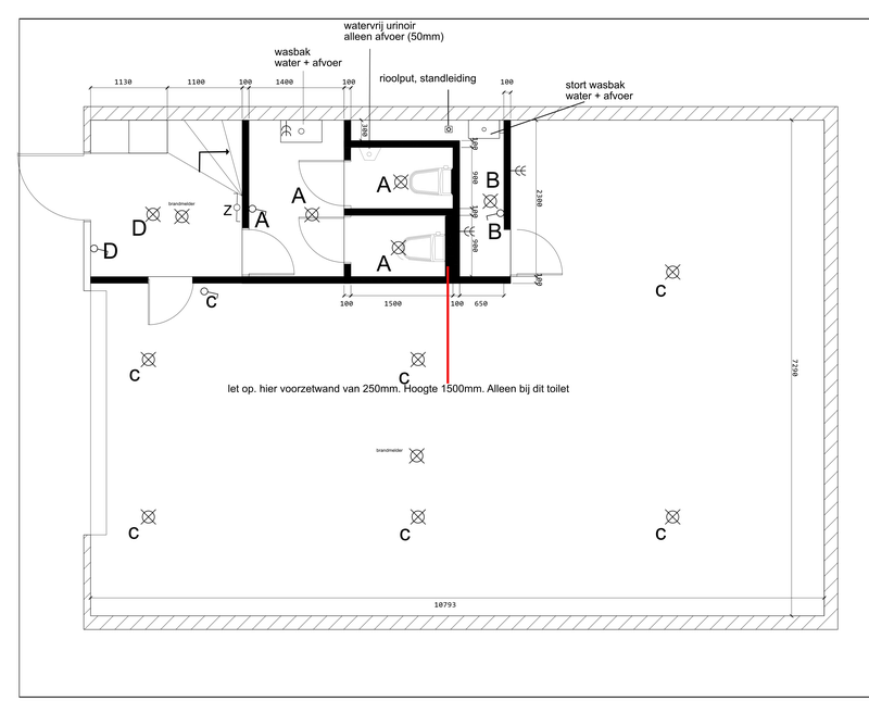
Bijgevoegd de plattegronden, beneden en bovenverdieping. Beneden is magazijn en zal in eerste instantie niet gekoeld / verwarmd worden, omdat we daar zien dat in het huidige pand niet of nauwelijks nodig is. Hoogte is 3,7 meter. BIj de stippellijn komt een verlaagd plafond (hangend), bij de toiletruimte een verlaagd plafond (2,3m) en bij de vergaderzaal een verlaagd plafond (2,7m).
Pand is goed geisoleerd, zie bijgevoegd. Boven komen er nog voorzetwanden (waarschijnlijk) voor de huidige geplaatste wanden incl isolatie.
We willen bovendien het kantoor redelijk slim maken door gebruik te maken van Homey. Als het l/l warmtepomp hier op kan worden aangesloten is dat wel een pluspunt.
Isolatie waarden:
De begane grondvloer wordt uitgevoerd als een in het werk gestorte gewapende betonvloer met een
variabele belasting van 1000 kg/m². De begane grondvloer wordt monoliet afgewerkt. Rc-waarde van
de vloer is minimaal 3,7m² K/W.
De dakvloer bestaat uit betonnen kanaalplaatvloeren. Dikte volgens opgave constructeur. Het dak is
voorzien van een damp remmende laag en PIR isolatieplaten, gemiddelde Rc-waarde van 6,3 m² k/w.
Isolatie wordt afgewerkt met kunststof/EPDM/Bitumen dakbedekking
Het HR++ isolatieglas U=1,65 w/m² in de aluminium profielen is waar nodig
doorvalveilig conform NEN 6702.
De buitenwanden van het bedrijfsverzamelgebouw wordt uitgevoerd in geïsoleerde
sandwichpanelen in de kleur conform kleurstaat architect met Rc-waarde van 4,7 m² K/W
Wanden die geplaatst worden (Dus naast de buitenmuren) worden geisoleerd met Knauf Acoustifit
/f/image/2ldjy2K7OROpznmN76TupMxT.png?f=fotoalbum_large)
1. Waar de airco units te plaatsen
2. Welk vermogen van beide units
3. Welke vorm van ventilatie is dan het handigst? WTW / mechanisch
4. Qua overige functionaliteiten, wat is handig mee te nemen?
5. Wat zou dit dan ongeveer moeten kosten
De verschillende adviezen zijn geweest:
1. Mitsubishi Heavy Industries 5 KW wandairco. Centraal
geplaatst in het systeemplafond op de 1ste verdieping + mechanische ventilatie
2. Plaatsen van 3 units, 1 in de vergaderzaal,2 in de open ruimte, waarvan 1 cassette. Capaciteit is nog niet bepaald door deze installateur. Daarnaast nog een ventilator om de warmte naar beneden te duwen bij verwarmen + wtw
3. 1 cassette in het midden van de 1ste verdieping + mechanische ventilatie
4. 2 wandaircos, 1 bij keuken en 1 bij werkplekken + mechanische ventilatie
Afgiftesysteem:
- Lucht luchtSWW:
Warm water gaat via Quooker Combi, verder geen warm water nodig.Warmtepompvoorkeur:
L/LWie gaat het installeren?
Het wordt uitbesteedBijgevoegd de plattegronden, beneden en bovenverdieping. Beneden is magazijn en zal in eerste instantie niet gekoeld / verwarmd worden, omdat we daar zien dat in het huidige pand niet of nauwelijks nodig is. Hoogte is 3,7 meter. BIj de stippellijn komt een verlaagd plafond (hangend), bij de toiletruimte een verlaagd plafond (2,3m) en bij de vergaderzaal een verlaagd plafond (2,7m).
Pand is goed geisoleerd, zie bijgevoegd. Boven komen er nog voorzetwanden (waarschijnlijk) voor de huidige geplaatste wanden incl isolatie.
We willen bovendien het kantoor redelijk slim maken door gebruik te maken van Homey. Als het l/l warmtepomp hier op kan worden aangesloten is dat wel een pluspunt.
Isolatie waarden:
De begane grondvloer wordt uitgevoerd als een in het werk gestorte gewapende betonvloer met een
variabele belasting van 1000 kg/m². De begane grondvloer wordt monoliet afgewerkt. Rc-waarde van
de vloer is minimaal 3,7m² K/W.
De dakvloer bestaat uit betonnen kanaalplaatvloeren. Dikte volgens opgave constructeur. Het dak is
voorzien van een damp remmende laag en PIR isolatieplaten, gemiddelde Rc-waarde van 6,3 m² k/w.
Isolatie wordt afgewerkt met kunststof/EPDM/Bitumen dakbedekking
Het HR++ isolatieglas U=1,65 w/m² in de aluminium profielen is waar nodig
doorvalveilig conform NEN 6702.
De buitenwanden van het bedrijfsverzamelgebouw wordt uitgevoerd in geïsoleerde
sandwichpanelen in de kleur conform kleurstaat architect met Rc-waarde van 4,7 m² K/W
Wanden die geplaatst worden (Dus naast de buitenmuren) worden geisoleerd met Knauf Acoustifit
/f/image/2ldjy2K7OROpznmN76TupMxT.png?f=fotoalbum_large)
[ Voor 8% gewijzigd door Stara op 25-08-2024 16:23 ]