Mijn casus is als volgt:
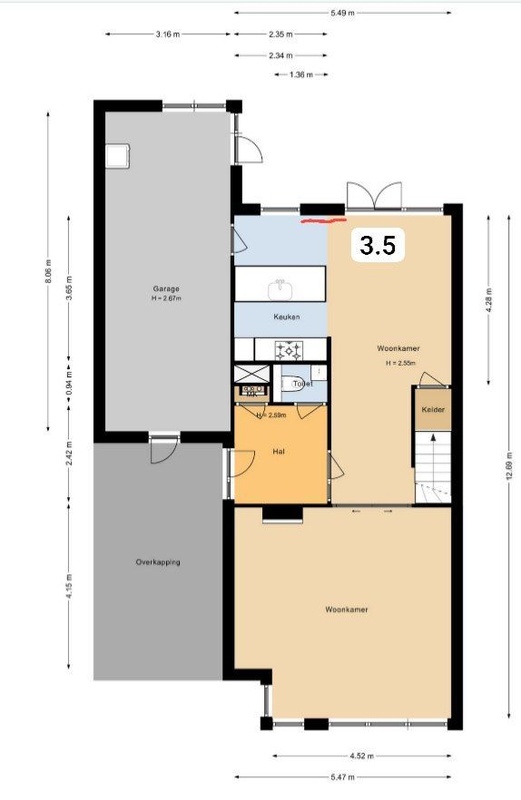
Beneden krijgen we een 3.5kw vloerunit van Mitsubishi Electric.
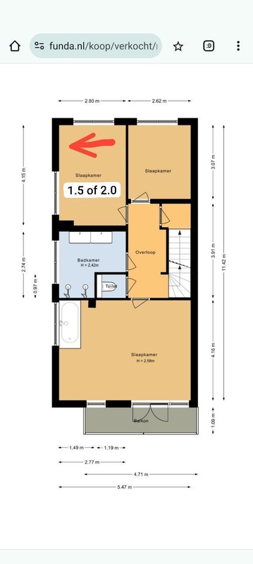
Boven in de slaapkamer van onze dochter een 1.5 of 2.0. (qua ruimte zou een 1.5 volstaan maar het voordeel van een 2.0 is dat je de deur open kunt doen en de andere kamer/gang meeprofiteren).
In de toekomst komt er in een deel van de garage beneden een kantoortje en wie weet wil ik daar nog airco (1.5 zou groot genoeg zijn daar). Of het kan ook zijn dat we ooit een 2e kind krijgen en dan toch een airco willen in de kleinste slaapkamer (rechtsboven, dat zou dan een 1.5 worden).
:strip_exif()/f/image/LYLHRwYh4adzK6SY2qGxtQ0p.jpg?f=fotoalbum_large)
:strip_exif()/f/image/V6eyDVpCbBf5qIYXyW46GEAl.jpg?f=fotoalbum_large)
Samengevat, ik twijfel een beetje! Tussen een 4.2 multisplit met 2 poorten, of een 5.4 met 3 poorten (en daarmee meer toekomstbestendig):
https://alklima.nl/leveri...-buiten-units/mxz-2f42-vf
https://alklima.nl/leveri...-buiten-units/mxz-3f54-vf
Merk ME stond eigenlijk al vast omdat de partij waarmee ik in zee ga deze tegen een relatief gunstige prijs kan leveren. Alternatief zou een van de nieuwe Daikin units zijn.
Beneden krijgen we een 3.5kw vloerunit van Mitsubishi Electric.
Boven in de slaapkamer van onze dochter een 1.5 of 2.0. (qua ruimte zou een 1.5 volstaan maar het voordeel van een 2.0 is dat je de deur open kunt doen en de andere kamer/gang meeprofiteren).
In de toekomst komt er in een deel van de garage beneden een kantoortje en wie weet wil ik daar nog airco (1.5 zou groot genoeg zijn daar). Of het kan ook zijn dat we ooit een 2e kind krijgen en dan toch een airco willen in de kleinste slaapkamer (rechtsboven, dat zou dan een 1.5 worden).
:strip_exif()/f/image/LYLHRwYh4adzK6SY2qGxtQ0p.jpg?f=fotoalbum_large)
:strip_exif()/f/image/V6eyDVpCbBf5qIYXyW46GEAl.jpg?f=fotoalbum_large)
Samengevat, ik twijfel een beetje! Tussen een 4.2 multisplit met 2 poorten, of een 5.4 met 3 poorten (en daarmee meer toekomstbestendig):
https://alklima.nl/leveri...-buiten-units/mxz-2f42-vf
https://alklima.nl/leveri...-buiten-units/mxz-3f54-vf
Merk ME stond eigenlijk al vast omdat de partij waarmee ik in zee ga deze tegen een relatief gunstige prijs kan leveren. Alternatief zou een van de nieuwe Daikin units zijn.
:strip_exif()/f/image/HKnAChK1e7oOzP0WulFR3C0e.jpg?f=fotoalbum_large)
:strip_exif()/f/image/TFplBB9kVW7rqwUROBF7vz6Q.jpg?f=fotoalbum_large)
:strip_exif()/f/image/Rope0Q4egJtddos7hGE5odnf.jpg?f=fotoalbum_large)
:strip_exif()/f/image/UUjSwLFLWzHXAiNblS7nlbNq.jpg?f=fotoalbum_large)
:strip_exif()/f/image/NxvX138bLgxSDOdLlh6w4iXA.jpg?f=fotoalbum_large)
:no_upscale():strip_icc():fill(white):strip_exif()/f/image/AXygVeKUFDBPoEH7ArETLgmx.jpg?f=user_large)
:strip_exif()/f/image/MJjwEhovCVA88anMwa2KtX0z.jpg?f=fotoalbum_large)
:strip_exif()/f/image/wLfUPCPpqe8t34WDUxKfxOJt.jpg?f=fotoalbum_large)