Goedendag iedereen,
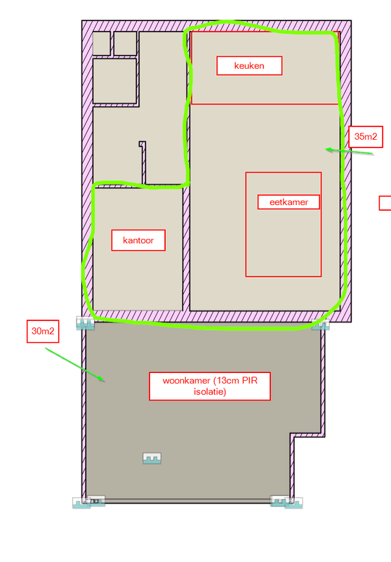
Ik ben momenteel halverwege met het bouwen van een uitbouw (de woonkamer in het overzicht hieronder). In dit stadium ben ik nog aan het uitzoeken hoe de vloeropbouw van het bestaande gedeelte eruit moet komen te zien. Er zit maar ongeveer 2 cm EPS-isolatie onder, en er is geen kruipruimte aanwezig wat e.e.a. ingewikkelder maakt.
Ik speel al een tijdje met het idee om vloerverwarming in het hele woning te leggen. niet omdat ik er zelf ervaring mee heb, maar ik hoor van anderen dat het het comfort aanzienlijk verhoogt.
Daarnaast komt er ook airconditioning in de hele ruimte, waardoor ik me afvraag of vloerverwarming dan nog wel zoveel nut heeft.
Aangezien de uitbouw goed geïsoleerd is, denk ik eraan om daar vloerverwarming in de afwerkvloer te realiseren. Omdat de vloer daar goed geïsoleerd is, kan dit tegen relatief lagere kosten worden uitgevoerd.
De opties, die ik mij zo bedenk zijn:
Optie A:
Droogbouwsysteem EPS30 (€50/m²) + Compactboard 12 (€45/m²) = totale kosten rond de €4.500, wat ik vrij prijzig vind. Hierbovenop zou ik dan een klik PVC-systeem plaatsen.
Optie B:
Geen vloerverwarming, maar de vloer na-isoleren met 20-30 mm PIR en daarboven de afwerking + klik PVC.
/f/image/cbiQBNBIpyRuEilqrOtemCGS.png?f=fotoalbum_large)
met andere woorden, ik ben er nog niet helemaal uit. Van de ene kant is niets doen het makkelijkste, maar daar kan ik dan in de toekomst spijt van hebben. Ik lees altijd graad mee op tweakers, dus mogelijk dat andere nog inzichten hebben omtrent deze of een vergelijkbare casus
Ik ben momenteel halverwege met het bouwen van een uitbouw (de woonkamer in het overzicht hieronder). In dit stadium ben ik nog aan het uitzoeken hoe de vloeropbouw van het bestaande gedeelte eruit moet komen te zien. Er zit maar ongeveer 2 cm EPS-isolatie onder, en er is geen kruipruimte aanwezig wat e.e.a. ingewikkelder maakt.
Ik speel al een tijdje met het idee om vloerverwarming in het hele woning te leggen. niet omdat ik er zelf ervaring mee heb, maar ik hoor van anderen dat het het comfort aanzienlijk verhoogt.
Daarnaast komt er ook airconditioning in de hele ruimte, waardoor ik me afvraag of vloerverwarming dan nog wel zoveel nut heeft.
Aangezien de uitbouw goed geïsoleerd is, denk ik eraan om daar vloerverwarming in de afwerkvloer te realiseren. Omdat de vloer daar goed geïsoleerd is, kan dit tegen relatief lagere kosten worden uitgevoerd.
De opties, die ik mij zo bedenk zijn:
Optie A:
Droogbouwsysteem EPS30 (€50/m²) + Compactboard 12 (€45/m²) = totale kosten rond de €4.500, wat ik vrij prijzig vind. Hierbovenop zou ik dan een klik PVC-systeem plaatsen.
Optie B:
Geen vloerverwarming, maar de vloer na-isoleren met 20-30 mm PIR en daarboven de afwerking + klik PVC.
/f/image/cbiQBNBIpyRuEilqrOtemCGS.png?f=fotoalbum_large)
met andere woorden, ik ben er nog niet helemaal uit. Van de ene kant is niets doen het makkelijkste, maar daar kan ik dan in de toekomst spijt van hebben. Ik lees altijd graad mee op tweakers, dus mogelijk dat andere nog inzichten hebben omtrent deze of een vergelijkbare casus