Hi GoT,
Voor mijn moeder in België zijn we een nieuwbouw appartement aan het kopen. Er is een aankoopbelofte getekend, maar nog geen notarieel compromis. Toen we het bezichtigd hebben, lag de vloerverwarming er al en liepen we op de chap.
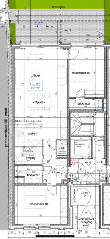
De makelaar informeerde ons dat de keuken niet zoals het plan (zie ook geüpload) in het hart van de woning komt, maar wel aan de tuin.
Nu willen we toch erg graag de keuken in het hart, zodat de zithoek van de woonkamer aan de tuin grenst.
Aan de andere kant van de muur waar wij de keuken willen is een berging waar aan- en afvoer voor de wasmachine komt, alsook de vloerverwarming (buizen) uitkomt.
Het enige contact is momenteel via de makelaar verlopen. Die zegt dat de bouwpromotor niet meer via die muur durft te gaan uit angst om de vloerverwarming te raken.
Welk advies hebben jullie voor ons?
Alvast bedankt!
Hieronder het plan van de gewenste situatie. In de huidige situatie staat het leidingwerk voor de keuken klaar aan het terras “zithoek”.
Voor mijn moeder in België zijn we een nieuwbouw appartement aan het kopen. Er is een aankoopbelofte getekend, maar nog geen notarieel compromis. Toen we het bezichtigd hebben, lag de vloerverwarming er al en liepen we op de chap.
De makelaar informeerde ons dat de keuken niet zoals het plan (zie ook geüpload) in het hart van de woning komt, maar wel aan de tuin.
Nu willen we toch erg graag de keuken in het hart, zodat de zithoek van de woonkamer aan de tuin grenst.
Aan de andere kant van de muur waar wij de keuken willen is een berging waar aan- en afvoer voor de wasmachine komt, alsook de vloerverwarming (buizen) uitkomt.
Het enige contact is momenteel via de makelaar verlopen. Die zegt dat de bouwpromotor niet meer via die muur durft te gaan uit angst om de vloerverwarming te raken.
Welk advies hebben jullie voor ons?
Alvast bedankt!
Hieronder het plan van de gewenste situatie. In de huidige situatie staat het leidingwerk voor de keuken klaar aan het terras “zithoek”.
/f/image/7RLouUomggIWda2uGa5uJxEC.png?f=fotoalbum_large)
[ Voor 5% gewijzigd door ccaroline op 27-06-2024 17:33 ]