We zijn bezig met het ontwerp van onze nieuwe badkamer.
Het is een relatief kleine ruimte, dus we zijn beperkt in mogelijkheden.
We hebben al keuzes gemaakt wat we willen:
- douche
- toilet
- wastafel (100 cm)
- radiator (verticaal)
- geen bad
Ik twijfel echter waar wij het beste de douche kunnen maken.
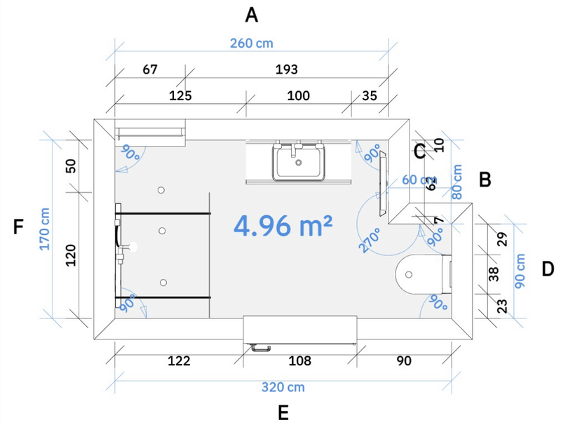
Ik heb 2 opstellingen gemaakt: A en B
Graag hoor ik jullie mening en als er andere opstellingen mogelijk zijn dan hoor ik die graag.
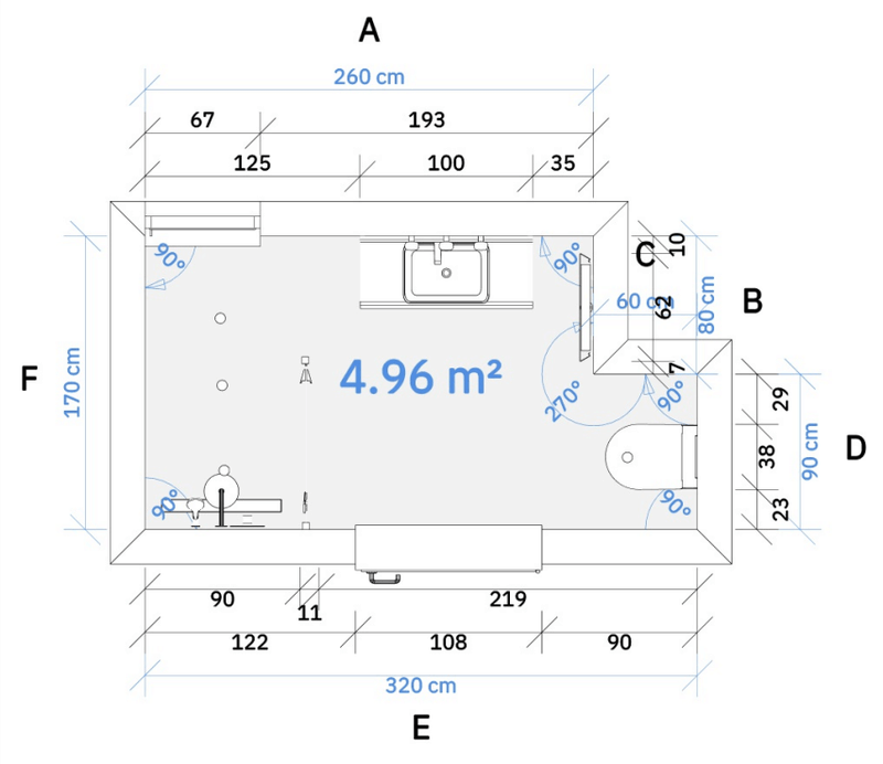
A = douche aan de kant van raam
voordeel: genoeg inloopruimte
nadeel: raam wordt nat tijdens douchen
/f/image/e4hTGIAFKYA66BhGFXND8iAv.png?f=fotoalbum_large)
/f/image/9PYu2dn30fHE8iBm0LZEk32J.png?f=fotoalbum_large)
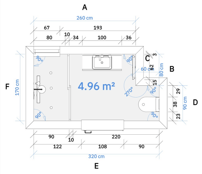
B = douche aan de kant van de deur
voordeel: raam wordt niet nat tijdens douchen
nadeel: inloopruimte douche is erg krap
/f/image/1jZgCTSyO6czHL22JdmcugXD.png?f=fotoalbum_large)
Het is een relatief kleine ruimte, dus we zijn beperkt in mogelijkheden.
We hebben al keuzes gemaakt wat we willen:
- douche
- toilet
- wastafel (100 cm)
- radiator (verticaal)
- geen bad
Ik twijfel echter waar wij het beste de douche kunnen maken.
Ik heb 2 opstellingen gemaakt: A en B
Graag hoor ik jullie mening en als er andere opstellingen mogelijk zijn dan hoor ik die graag.
A = douche aan de kant van raam
voordeel: genoeg inloopruimte
nadeel: raam wordt nat tijdens douchen
/f/image/e4hTGIAFKYA66BhGFXND8iAv.png?f=fotoalbum_large)
/f/image/9PYu2dn30fHE8iBm0LZEk32J.png?f=fotoalbum_large)
B = douche aan de kant van de deur
voordeel: raam wordt niet nat tijdens douchen
nadeel: inloopruimte douche is erg krap
/f/image/1jZgCTSyO6czHL22JdmcugXD.png?f=fotoalbum_large)
[ Voor 33% gewijzigd door mark_gl op 04-06-2024 16:02 ]
:strip_exif()/f/image/Fz4ZUZjqF2Qk9n1NeikdBriN.jpg?f=fotoalbum_large)
/f/image/tWcMnbFQg99I4tt54CWybl7x.png?f=fotoalbum_large)
/f/image/emn3M0moQztkOA5nJ3s4ZlZn.png?f=fotoalbum_large)
/f/image/MNTAInRgwkPyvLGHPpOzE3md.png?f=fotoalbum_large)
/f/image/mvD4i7ucBlyPuw3dobce4pns.png?f=fotoalbum_large)
/f/image/0JDdHZnReloZ1NapHRSdG5jQ.png?f=fotoalbum_large)