Een vraag voor mensen met ervaring in de houtskeletbouw.
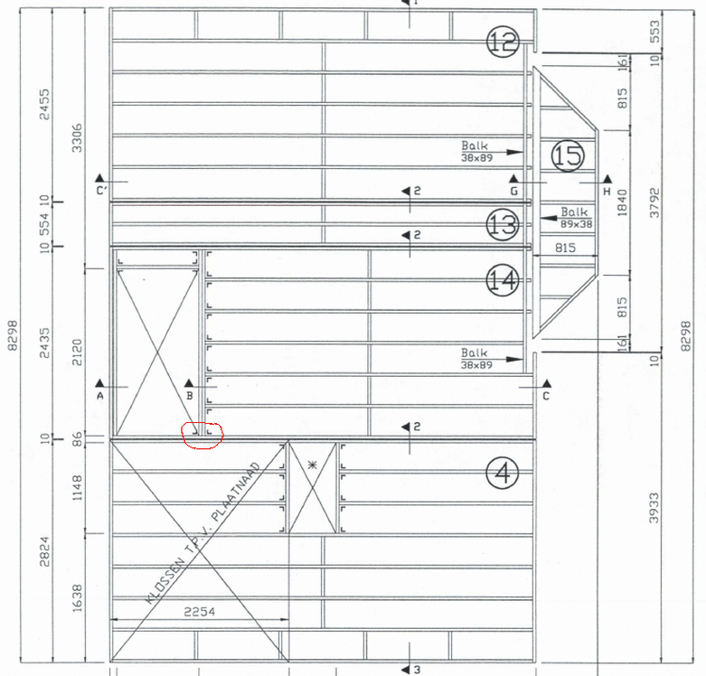
Ik ben mijn HSB woning aan het verbouwen en daarbij viel me plots iets op rond de verbindingen van de dwarsbalken van mijn zoldervloer aan de draagbalken. Om een en ander te verduidelijken een foto van een van de verbinders en een overzicht van mijn zoldervloer.
:fill(white):strip_exif()/f/image/7rvMxAanE06QqJVJnTNah9ao.png?f=user_large)
:strip_exif()/f/image/1AVUO8AtOBMQf61553QqaciM.jpg?f=fotoalbum_large)
Mijn vraag is: die verbinder (gezien vanaf de trapzijde) ziet er nogal iel uit en zit helemaal aan de rand van de balk om het gehele middendeel van de zoldervloer te verbinden met het dragende gedeelte op vier plaatsen (voor en achter van de dubbele balk). Eigenlijk had ik hier ophangbeugels met flenzen verwacht zoals SBE76/152. In totaal zijn het 4 van deze verbinders die de middenvloer op zijn plek houden en dragen via een dubbele balk. Is dit een normale praktijk volgens gangbare regels en is dit veilig te noemen (bij normaal gebruik van de zolder)? Ik weet dat bij de bouw is beknibbeld op alles waar mogelijk en daarom ben ik toch nieuwsgierig hiernaar.
Ik ben mijn HSB woning aan het verbouwen en daarbij viel me plots iets op rond de verbindingen van de dwarsbalken van mijn zoldervloer aan de draagbalken. Om een en ander te verduidelijken een foto van een van de verbinders en een overzicht van mijn zoldervloer.
:fill(white):strip_exif()/f/image/7rvMxAanE06QqJVJnTNah9ao.png?f=user_large)
:strip_exif()/f/image/1AVUO8AtOBMQf61553QqaciM.jpg?f=fotoalbum_large)
Mijn vraag is: die verbinder (gezien vanaf de trapzijde) ziet er nogal iel uit en zit helemaal aan de rand van de balk om het gehele middendeel van de zoldervloer te verbinden met het dragende gedeelte op vier plaatsen (voor en achter van de dubbele balk). Eigenlijk had ik hier ophangbeugels met flenzen verwacht zoals SBE76/152. In totaal zijn het 4 van deze verbinders die de middenvloer op zijn plek houden en dragen via een dubbele balk. Is dit een normale praktijk volgens gangbare regels en is dit veilig te noemen (bij normaal gebruik van de zolder)? Ik weet dat bij de bouw is beknibbeld op alles waar mogelijk en daarom ben ik toch nieuwsgierig hiernaar.
:strip_exif()/f/image/hzKx8FNM2pk41ov52qhTCOvS.jpg?f=fotoalbum_large)