Beste leden,
Mijn oude L keuken is verkocht en ik ben inmiddels naar een keukenboer geweest voor het realiseren van mijn nieuwe keuken. Aangezien wij heel graag een kookeiland willen bevat de nieuwe opstelling een kookeiland. Echter, ik loop wel tegen iets lastigs aan.
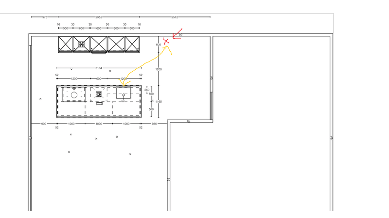
Het zit namelijk zo, de afvoer zit nu tegen de wand aan (zie rode kruisje tekening). Aangezien er een kookeiland komt zoals op de tekening, dient deze afvoer te worden verlegd. De afstand tussen oude afvoer en nieuwe afvoer punt is +- 2.5 meter (zie gele lijn tekening) in één rechte lijn. Het probleem is dat mijn dekvloer +- 5 cm dik is en er leidingen doorheen lopen. Nu zijn de leidingen voor de radiatoren niet heel belemmerend, want ik ga nog vloerverwarmingen installeren, maar de overige leidingen kunnen id weg liggen. Daarnaast dient er natuurlijk ook voldoende afschot te zijn.
En let op, het gaat om een appartement op de 15e verdieping. Dus er is geen kruipruimte aanwezig.
Wat zijn de mogelijkheden in jullie optiek en is deze keukenopstelling überhaupt wel haalbaar?
Mijn oude L keuken is verkocht en ik ben inmiddels naar een keukenboer geweest voor het realiseren van mijn nieuwe keuken. Aangezien wij heel graag een kookeiland willen bevat de nieuwe opstelling een kookeiland. Echter, ik loop wel tegen iets lastigs aan.
Het zit namelijk zo, de afvoer zit nu tegen de wand aan (zie rode kruisje tekening). Aangezien er een kookeiland komt zoals op de tekening, dient deze afvoer te worden verlegd. De afstand tussen oude afvoer en nieuwe afvoer punt is +- 2.5 meter (zie gele lijn tekening) in één rechte lijn. Het probleem is dat mijn dekvloer +- 5 cm dik is en er leidingen doorheen lopen. Nu zijn de leidingen voor de radiatoren niet heel belemmerend, want ik ga nog vloerverwarmingen installeren, maar de overige leidingen kunnen id weg liggen. Daarnaast dient er natuurlijk ook voldoende afschot te zijn.
En let op, het gaat om een appartement op de 15e verdieping. Dus er is geen kruipruimte aanwezig.
Wat zijn de mogelijkheden in jullie optiek en is deze keukenopstelling überhaupt wel haalbaar?
[ Voor 3% gewijzigd door Daniëlvveen op 06-05-2024 11:49 ]
/f/image/m5m3OGA0NpDtheJm7iGAgDar.png?f=fotoalbum_large)
:strip_exif()/f/image/CRPrubcqIgHSZ13VI6lGZys8.jpg?f=fotoalbum_large)
:strip_exif()/f/image/SilYBLqwPqVJeQR9LeVdpuTM.jpg?f=fotoalbum_large)
:strip_exif()/f/image/QFAeWypszRPrdZkDOLTa3ELh.jpg?f=fotoalbum_large)
:strip_exif()/f/image/lpz3U76QWYDzh8iiljkdDVYO.jpg?f=fotoalbum_large)
:strip_exif()/f/image/6UY71iOBX3d2qwODYIVa8ajq.jpg?f=fotoalbum_large)
:strip_exif()/f/image/WxGcRwb3xshTsJPAmOf40wrv.jpg?f=fotoalbum_large)
:strip_exif()/f/image/Xfv9KypgA2JzT6Nu78tEC0if.jpg?f=fotoalbum_large)
:strip_exif()/f/image/5r7ym8Q5SeX2d48bny8JTRpv.jpg?f=fotoalbum_large)