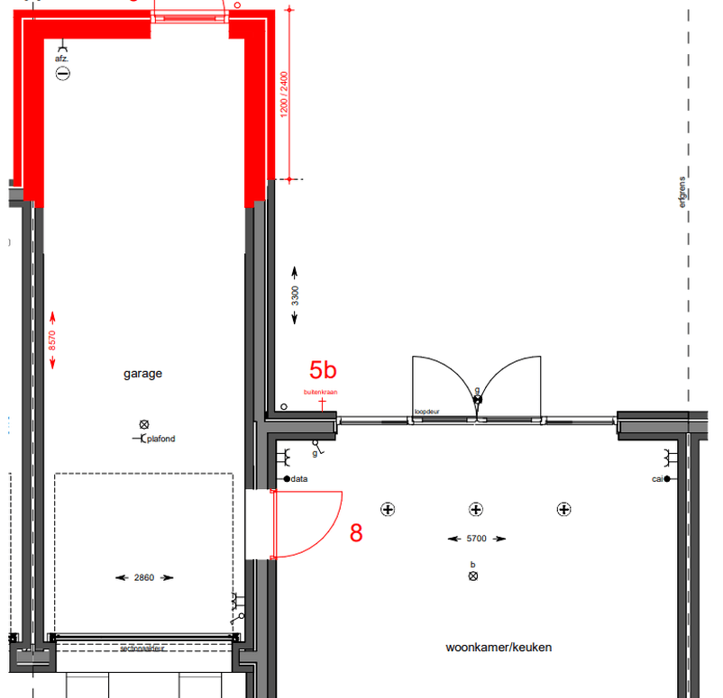
Wij willen in onze nieuwbouw woning graag een deur van de woonkamer naar de garage laten plaatsen. Daarbij hebben wij de keuze tussen het plaatsen van een binnen of een buitendeur.
De garage heeft:
* vloerverwarming en isolatie
* openslaande deuren van type: Hörmann NT60-2
Tegenargument bij buitendeur is hoe dit er vanuit de woonkamer uit gaat zien. De bouwpartij kan niet meer informatie geven dan in de meerwerklijst (screenshot). Google geeft niet meteen een duidelijke impressie. Iemand ervaring waar we aan moeten denken?
Tegenargument binnendeur: we horen vaak dat er hoger risico op inbraak is via garagedeur. Geldt dat vooral voor oudere garage deuren of is dat ook reeel risico met de Hörmann NT60-2.
Alvast dank.
:fill(white):strip_exif()/f/image/l7VPreYMbSlUpMYCaJtpsK8l.png?f=user_large)
De garage heeft:
* vloerverwarming en isolatie
* openslaande deuren van type: Hörmann NT60-2
Tegenargument bij buitendeur is hoe dit er vanuit de woonkamer uit gaat zien. De bouwpartij kan niet meer informatie geven dan in de meerwerklijst (screenshot). Google geeft niet meteen een duidelijke impressie. Iemand ervaring waar we aan moeten denken?
Tegenargument binnendeur: we horen vaak dat er hoger risico op inbraak is via garagedeur. Geldt dat vooral voor oudere garage deuren of is dat ook reeel risico met de Hörmann NT60-2.
Alvast dank.
:fill(white):strip_exif()/f/image/l7VPreYMbSlUpMYCaJtpsK8l.png?f=user_large)
/f/image/kB5J1v6r53sKOG9jO8To6trf.png?f=fotoalbum_large)
:strip_exif()/f/image/YTYN0EqD2aRDa8Gdwhd8C2Ul.jpg?f=fotoalbum_large)