Wat gaan we doen:
De keukenaanbouw van onze woning uit 1928 is origineel, diverse malen verbouwd en/of aangepast maar niet echt verduurzaamd.
De muren bestaan uit enkel steens muren die aan de binnenzijde geïsoleerd zijn mer een voorzetwand van gips.
Het plafond bestaand uit een gipsplaten plafond zonder isolatie, de balkenlaag en het houten dak met daarop bitumen zijn in goede staat.
De ramen van de benedenverdieping zijn 25 jaar oud, en zijn aan vervanging toe.
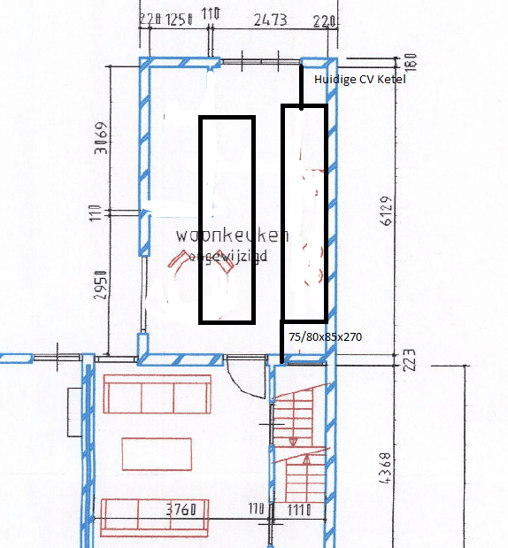
De ketel is 17 jaar oud en aan vervanging toe, de 3-wegklep lekt en op de ketel is geen warmtepomp combinatie mogelijk.
De keuken is ook 17 jaar 'oud' en is niet echt aan vervanging toe, enkele apparaten functioneren niet heel goed meer en het werkblad is op diverse plaatsen beschadigd maar de keuken sluit en 'werkt' verder nog wel.
De opstelling nu is rechts 7 hoge (231cm) kasten van 60 met enkele deuren, lades en apparaten (stoomoven, koffiezetapp. en combi mag.) en een eiland van 6 kasten lang (kast 60 cm, lades 120 cm, vaatwasser, lades 120 cm) bij 120 cm breed. Aan de andere zijde van het eiland zit een bar met 2 krukken.
:fill(white):strip_exif()/f/image/qggWjhNtUQNhhSHw6OUt2TtA.png?f=user_large)
Wat gaan we doen:
Wanden opnieuw isoleren, afgelopen 'winter' hebben wij op de beneden verdieping de verwarming nauwelijks aangehad i.v.m. een pellet kachel.
Deze kreeg de keuken niet goed warm aangezien deze niet goed geïsoleerd is.
Door de stopcontacten/schakelaars in de wand kwam koude lucht, vandaar dat we deze wanden opnieuw willen isoleren.
Het plafond wordt geïsoleerd en opnieuw voorzien van gipsplaten.
De keuken wordt vernieuwd, zelfde idee als de oude enkel wordt het kookeiland iets smaller (100cm) en worden de hoge kasten aan de zijkant vervangen door 2 hoge, 3 lage met werkblad en 2 hoge kasten.
De ketel wordt vervangen door een Nefit Trendline II H.R.C.30, later zal deze worden voorzien van een warmtepomp met enkel een buitenunit i.v.m. de ruimte.
De kozijnen worden vervangen voor kunststof kozijnen met triple glas(op de eerste verdieping al uitgevoerd).
Aangezien we langs een redelijk drukke weg zitten worden de ruiten aan de voorzijde voorzien van geluidswerend glas.
Tevens worden 2 'vaste' ramen nu voorzien van draai/kiepramen.
Materialen:
Plafond:
Tips en aanvullingen zijn welkom, onderstaand mijn 'vragen':
De keukenaanbouw van onze woning uit 1928 is origineel, diverse malen verbouwd en/of aangepast maar niet echt verduurzaamd.
De muren bestaan uit enkel steens muren die aan de binnenzijde geïsoleerd zijn mer een voorzetwand van gips.
Het plafond bestaand uit een gipsplaten plafond zonder isolatie, de balkenlaag en het houten dak met daarop bitumen zijn in goede staat.
De ramen van de benedenverdieping zijn 25 jaar oud, en zijn aan vervanging toe.
De ketel is 17 jaar oud en aan vervanging toe, de 3-wegklep lekt en op de ketel is geen warmtepomp combinatie mogelijk.
De keuken is ook 17 jaar 'oud' en is niet echt aan vervanging toe, enkele apparaten functioneren niet heel goed meer en het werkblad is op diverse plaatsen beschadigd maar de keuken sluit en 'werkt' verder nog wel.
De opstelling nu is rechts 7 hoge (231cm) kasten van 60 met enkele deuren, lades en apparaten (stoomoven, koffiezetapp. en combi mag.) en een eiland van 6 kasten lang (kast 60 cm, lades 120 cm, vaatwasser, lades 120 cm) bij 120 cm breed. Aan de andere zijde van het eiland zit een bar met 2 krukken.
:fill(white):strip_exif()/f/image/qggWjhNtUQNhhSHw6OUt2TtA.png?f=user_large)
Wat gaan we doen:
Wanden opnieuw isoleren, afgelopen 'winter' hebben wij op de beneden verdieping de verwarming nauwelijks aangehad i.v.m. een pellet kachel.
Deze kreeg de keuken niet goed warm aangezien deze niet goed geïsoleerd is.
Door de stopcontacten/schakelaars in de wand kwam koude lucht, vandaar dat we deze wanden opnieuw willen isoleren.
Het plafond wordt geïsoleerd en opnieuw voorzien van gipsplaten.
De keuken wordt vernieuwd, zelfde idee als de oude enkel wordt het kookeiland iets smaller (100cm) en worden de hoge kasten aan de zijkant vervangen door 2 hoge, 3 lage met werkblad en 2 hoge kasten.
De ketel wordt vervangen door een Nefit Trendline II H.R.C.30, later zal deze worden voorzien van een warmtepomp met enkel een buitenunit i.v.m. de ruimte.
De kozijnen worden vervangen voor kunststof kozijnen met triple glas(op de eerste verdieping al uitgevoerd).
Aangezien we langs een redelijk drukke weg zitten worden de ruiten aan de voorzijde voorzien van geluidswerend glas.
Tevens worden 2 'vaste' ramen nu voorzien van draai/kiepramen.
Materialen:
Plafond:
- Isolatie 14cm steenwol
- Dampwerende folie
- 9.5mm gipsplaten
- Gipsplaatschroeven
- plakband en gaasband
- fix and finish
- Isolatie 14cm steenwol
- Dampwerende folie
- 12.5mm gipsplaten
- Gipsplaatschroeven
- plakband en gaasband
- fix and finish
- metalstud profielen 7cm
- Nefit Trendline II H.R.C.30
- Nieuwe gasleiding vanaf de meter (is nu 28mm buis door het plafond)
- Nieuw drukvat
- voorbereiding leidingen richting kelder voor buffervat
- 2 nieuwe kunststof kozijnen straatzijde incl. geluidswerend tripple glas
- nieuwe kunststof kozijn draaikiep eetkamerraam incl. triple glas
- nieuwe kunststof kozijn draai/kiep keuken incl. triple glas
- nieuw HR++ glas voor dubbel openslaande tuindeuren
- Egalisatiemortel
- pvc klic-laminaat
Tips en aanvullingen zijn welkom, onderstaand mijn 'vragen':
- Is het verstandig om onder de metal stud profiel een schuimband te plaatsen
- De waterleidingen van het eiland lopen nu via de metal stud van de ketel door de wand , via de vloer naar het eiland. Het water gaat dus eerst omhoog, over de dubbele tuindeuren, naar beneden, door de vloer en naar de kraan.
Kan ik dit niet beter vanuit de ketel naar beneden, door de vloer en dan bij de keukenkast omhoog. (er ligt geen vloerverwarming, stroomleidingen liggen verderop door de vloer richting het eiland). - Er komt geen vloerverwarming ( CV is bijverwarming bij ons) met isoleren hopen we het met de kachel warm te houden. Er hangt nu een verwarming type 22 (redelijk nieuwe verwarming).
Ook wil ik een WTW hangen in de keuken om te ventileren in de winter. - Afzuigkap kan naar buiten, afgelopen 'winter' de kap recirculatie gemaakt vanwege de kou die er vanaf kwam. Metalen roosters waren 5 á 6 graden. Met recirculatie gemerkt dat er veel vocht binnen blijft.
Dit wil ik weg hebben door hem naar buiten af te voeren of recirculatie maken en dan een WTW