Geschakelde garage, gedeelde muur met buren ook isoleren?

Pagina: 1
Acties:

Vraag


  • arj1o1
  • Registratie: April 2011
  • Laatst online: 09:02
Ik wil mijn geschakelde garage isoleren.

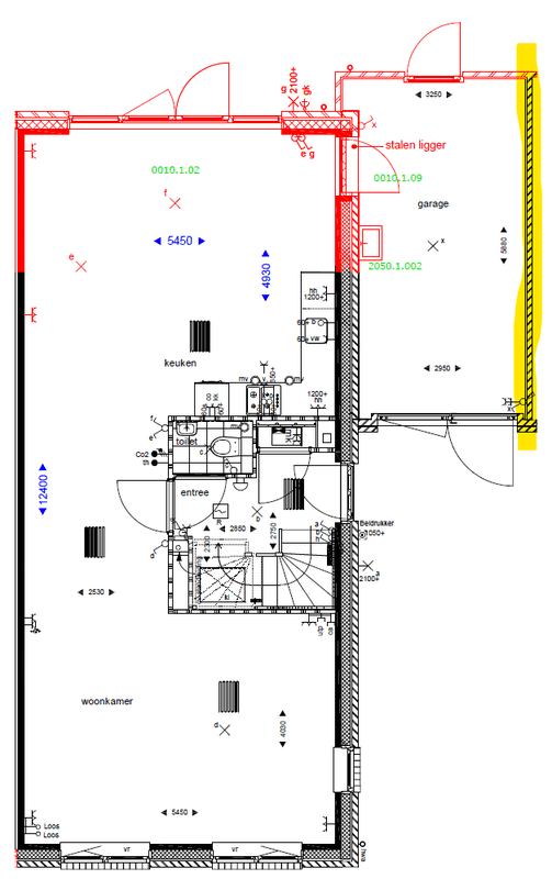
Aan de kant van de woning lijkt me extra isolatie overbodig, maar hoe zit met de kant die grenst aan de buren? De garage van de buren is ook ongeisoleerd en het zijn (voor zover ik weet) twee enkelsteens muren tegen elkaar. Het gaat om de geel gearceerde muur hieronder. Online kan ik geen eenduidig antwoord vinden en het zou zonde zijn om enerzijds iets te isoleren en ruimte te verliezen wanneer het niet nodig is en anderzijds iets over te slaan wat wel noodzakelijk is.

Afbeeldingslocatie: https://tweakers.net/i/Q9MD1fOUWgT3__qPLr6jysMCzfg=/x800/filters:strip_exif()/f/image/g0ZYXaAQpAuyjOSHbkGSo9Ti.png?f=fotoalbum_large

Alle reacties


  • Barbapapa852
  • Registratie: November 2007
  • Laatst online: 12:59
Als je het als garage opslag gebruik zal ik het niet doen. Wanneer je er een kantoor ofzo van gemaakt heb had ik het persoonlijk wel gedaan.

  • fenrir
  • Registratie: Januari 2002
  • Niet online

fenrir

——-

Wat wil je met de geïsoleerde garage gaan doen?
Of anders gezegd, waarom ga je deze ruimte isoleren?

Van klussen krijg je grijze haren


  • onno oliver
  • Registratie: Februari 2021
  • Laatst online: 09:20
Ik geloof dat de meeste garages gebruikt worden als opslag of hobby werkruimte?
Niemand parkeert zijn auto er in.
Dan kan een gipswandje met glaswol erachter op een ragel werk wel wat graden schelen in de herft, winter, lente.

Als TS de tijd heeft om het zelf te doen zou ik het doen in overleg met de buren dan kunnen ze samen de transportkosten delen. Afwerken kan altijd nog later.

  • arj1o1
  • Registratie: April 2011
  • Laatst online: 09:02
fenrir schreef op woensdag 10 januari 2024 @ 20:25:
Wat wil je met de geïsoleerde garage gaan doen?
Of anders gezegd, waarom ga je deze ruimte isoleren?
Het is in eerste instantie voor opslag/hobbyruimte maar op termijn zouden we de garage ook in tweeen willen delen en van 1 kant een bijkeuken maken. Gegeven dat laatste doen we het liever in 1 keer goed.

  • Inevitable
  • Registratie: Februari 2023
  • Laatst online: 07-06-2024
Voor die paar honderd euro extra zou ik het sowieso isoleren.

  • Holk
  • Registratie: Februari 2013
  • Laatst online: 25-03 15:26
Zou de voor en achtergevel ook meenemen, net zoals het dak wat waarschijnlijk een hoten balken constructie is met spaanplaten en bitumen. Heb zelf een soortgelijke woning waarbij de garage los staat (dus de geel gemarkeerde muur is bij mij een losse enkelsteens muurtje) en het is vaak net zo warm/koud binnen als het buiten is. Als je de ruimte als hobbyruimte wilt gebruiken zul je het rondom goed moeten isoleren (of een dikkere jas kopen in de winterperiode)

  • arj1o1
  • Registratie: April 2011
  • Laatst online: 09:02
Holk schreef op donderdag 11 januari 2024 @ 09:21:
Zou de voor en achtergevel ook meenemen, net zoals het dak wat waarschijnlijk een hoten balken constructie is met spaanplaten en bitumen. Heb zelf een soortgelijke woning waarbij de garage los staat (dus de geel gemarkeerde muur is bij mij een losse enkelsteens muurtje) en het is vaak net zo warm/koud binnen als het buiten is. Als je de ruimte als hobbyruimte wilt gebruiken zul je het rondom goed moeten isoleren (of een dikkere jas kopen in de winterperiode)
Dank.

De voor en achtergevel wordt sowieso meegenomen net zoals het dak (inderdaad een houten balken constructie). De vraag is of de gedeelde muur ook gedaan moet worden, maar ik denk dat het geen kwaad kan het te doen als ik het zo begrijp.

  • Holk
  • Registratie: Februari 2013
  • Laatst online: 25-03 15:26
arj1o1 schreef op donderdag 11 januari 2024 @ 09:24:
[...]


Dank.

De voor en achtergevel wordt sowieso meegenomen net zoals het dak (inderdaad een houten balken constructie). De vraag is of de gedeelde muur ook gedaan moet worden, maar ik denk dat het geen kwaad kan het te doen als ik het zo begrijp.
Je zult altijd een dilatatievoeg hebben tussen de garages waardoor wind vrij spel heeft en niet de isolerende functie heeft als in een spouwmuur. Zou die muur altijd meenemen als ik de keuze had

  • fenrir
  • Registratie: Januari 2002
  • Niet online

fenrir

——-

arj1o1 schreef op woensdag 10 januari 2024 @ 23:17:
[...]


Het is in eerste instantie voor opslag/hobbyruimte maar op termijn zouden we de garage ook in tweeen willen delen en van 1 kant een bijkeuken maken. Gegeven dat laatste doen we het liever in 1 keer goed.
Als je verwacht dat je de ruimte op een later moment wilt gaan verwarmen dan zou ik alle wanden isoleren waarvan de ruimte aan de andere kant niet verwarmd wordt.
Oftewel, alles isoleren behalve het stukje naar je eigen woning toe.

Wat ga je met de vloer doen? Komt daar ook nog iets aan isolatie?

[ Voor 5% gewijzigd door fenrir op 11-01-2024 09:59 ]

Van klussen krijg je grijze haren


  • arj1o1
  • Registratie: April 2011
  • Laatst online: 09:02
fenrir schreef op donderdag 11 januari 2024 @ 09:57:
[...]

Als je verwacht dat je de ruimte op een later moment wilt gaan verwarmen dan zou ik alle wanden isoleren waarvan de ruimte aan de andere kant niet verwarmd wordt.
Oftewel, alles isoleren behalve het stukje naar je eigen woning toe.

Wat ga je met de vloer doen? Komt daar ook nog iets aan isolatie?
Dank. De vloer is dezelfde vloer als in de woning zelf en is geisoleerd.

  • Juup
  • Registratie: Februari 2000
  • Niet online
arj1o1 schreef op woensdag 10 januari 2024 @ 19:20:
... twee enkelsteens muren tegen elkaar.
Kan je die "spouw" niet isoleren?

Een wappie is iemand die gevallen is voor de (jarenlange) Russische desinformatiecampagnes.
Wantrouwen en confirmation bias doen de rest.


  • dreameater
  • Registratie: Januari 2005
  • Laatst online: 10:07

dreameater

TOET'NKEAL ONIE DA!

Ik zit momenteel met hetzelfde vraagstuk. Heb je vanuit jouw project hier al ervaringen mee die je zou willen delen?

вɑʗ₭ ıƝ Ϯһㅌ ₲яıÐ


  • dragonhaertt
  • Registratie: Februari 2011
  • Laatst online: 09:23

dragonhaertt

@_'.'

Ik heb een (hout)werkplaats gemaakt van mijn garage, en deze muur ook geïsoleerd. Om meerdere redenen.

De garage van de buren is niet verwarmd, dus voor de warmte.
Voor de geluidsisolatie. (Steenwol)
Voor het makkelijk ophangen van planken en kastjes. (Houtskelet, osb, multiplex)
En natuurlijk voor hoe het er uit ziet, strakke multiplex muur vs bakstenen was een makkelijke keuze.

Truth is like a language with no native speakers left.
Its poetry is speechless and it can’t be caught in human being’s breath.


  • achterhoeker
  • Registratie: Oktober 2022
  • Laatst online: 22-05 16:59
ik heb hetzelfde gedaan als wat jij wil.
Bestaande ongeisoleerde betonvloer er uit en geisoleerde betonvloer er in met cementdekvloer voorzien van vloerverwarming. Pir isolatie tegen buitenwanden geplaatst met ytong voorzetwand er voor. Koudebruggen in de binnenhoeken onderbroken door de buitenmuur door te slijpen en isolatie tegen isolatie woning aan te zetten. Dak aan bovenzijde geïsoleerd met nieuwe pir isolatie en dakbedekking. Horizontale koudebrug onderbroken door een laag metselwerk te vervangen door foamglass ter hoogte van dakisolatie.

Voorzijde is mijn thuiskantoor geworden en achterzijde bijkeuken. Ik kan buitenlangs achterom vandaar deze keuze. Nu is het een volwaardige woonruimte geworden.

Specs: Dingen & Spullen. Alsof iemand dat boeit ;-) | Prutst wel eens wat aan in de bouw.

Pagina: 1