:strip_exif()/f/image/ls9GzgtZ5uCLOeWuqXCB7zi0.jpg?f=fotoalbum_large)
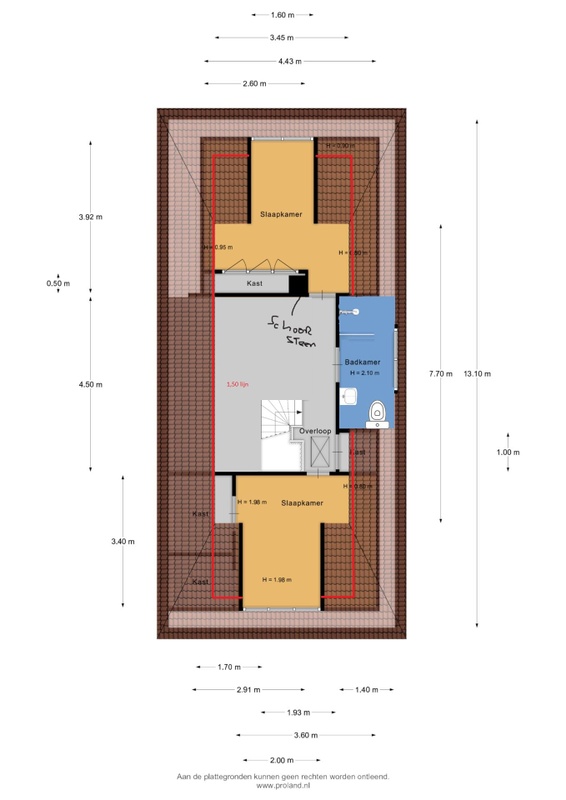
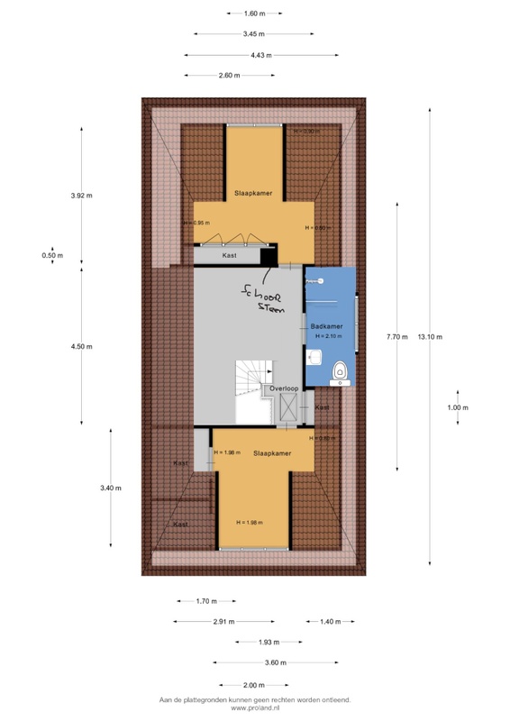
We hebben afgelopen jaar een huis uit 1860 gekocht, niet echt een standaard indeling dus.
Dit jaar hebben we de buitenmuren en benedenverdieping grondig aangepakt. Maar komend jaar is boven aan de beurt. Ik kan er helaas maar niet uitkomen hoe ik deze het beste kan gaan indelen. De badkamer en trap zitten op een vaste plek, en we willen 4 slaapkamers. Hebben jullie tips en ideeën om ons op weg te helpen?
Groetjes,
Kelvin & Anna
:strip_exif()/f/image/ZTDtI4m9JIwFIuqmzTCVb2s9.jpg?f=fotoalbum_large)

:strip_exif()/f/image/oUKxowdBNieLNBwX0vd5RoXa.jpg?f=fotoalbum_large)
:strip_exif()/f/image/vhHZAYbAUhN6WmU7KaftPEo0.jpg?f=fotoalbum_large)