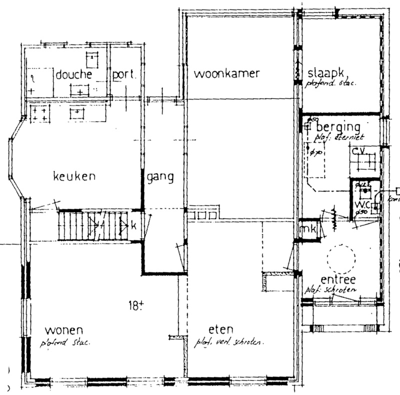
Ik ben van deze woning (1928) benieuwd:
- wat de draagmuren zijn
- of er een spouwmuur is
- hoe de balken in de vloer lopen
:strip_exif()/f/image/7J0vJMUxr02lORIgRzHdkaya.jpg?f=fotoalbum_large)
Er is helaas geen legenda bij. Ik kom bij bv Joost de Vree wel 'symbolen in bouwtekeningen' tegen maar die lijken toch niet overeen te komen. Heeft iemand welicht ervaring met het lezen van dit soort oude tekeningen?
Wat ik me onder andere af vraag: zou de muur onderin en linksonder nou 'dubbel' getekend zijn omdat daar een spouw zit? en waarom zijn sommige delen van de muur egaal zwart en sommige 'open'?
Vanuit de kelder valt net door een klein gat te zien dat er in de keuken balken onder de vloer lopen van de erker naar de gang. Zonder destructief onderzoek valt er helaas nog weinig met zekerheid vast te stellen en dat laatste kan pas als er een notaris aan te pas gekomen is :-)
De reden om te proberen te ontdekken hoe de vloer in elkaar zit is om te kijken of het realistisch is om de gehele vloer er uit te trekken en een renovatievloer of schuimbeton vloer te realiseren en dan helpt het om te snappen hoe de vloer nu loopt Ideeen, meningen en suggesties zijn van harte welkom.
.
- wat de draagmuren zijn
- of er een spouwmuur is
- hoe de balken in de vloer lopen
:strip_exif()/f/image/7J0vJMUxr02lORIgRzHdkaya.jpg?f=fotoalbum_large)
Er is helaas geen legenda bij. Ik kom bij bv Joost de Vree wel 'symbolen in bouwtekeningen' tegen maar die lijken toch niet overeen te komen. Heeft iemand welicht ervaring met het lezen van dit soort oude tekeningen?
Wat ik me onder andere af vraag: zou de muur onderin en linksonder nou 'dubbel' getekend zijn omdat daar een spouw zit? en waarom zijn sommige delen van de muur egaal zwart en sommige 'open'?
Vanuit de kelder valt net door een klein gat te zien dat er in de keuken balken onder de vloer lopen van de erker naar de gang. Zonder destructief onderzoek valt er helaas nog weinig met zekerheid vast te stellen en dat laatste kan pas als er een notaris aan te pas gekomen is :-)
De reden om te proberen te ontdekken hoe de vloer in elkaar zit is om te kijken of het realistisch is om de gehele vloer er uit te trekken en een renovatievloer of schuimbeton vloer te realiseren en dan helpt het om te snappen hoe de vloer nu loopt Ideeen, meningen en suggesties zijn van harte welkom.
.
:strip_exif()/f/image/RiwlEL7Vkp7Uw5fmIgr29Eui.jpg?f=fotoalbum_large)
:no_upscale():strip_icc():fill(white):strip_exif()/f/image/b2wsq4gF26R2iEiwoENgWykh.jpg?f=user_large)
:no_upscale():strip_icc():fill(white):strip_exif()/f/image/5ZTNQraWSaYC44K2Y5z3tlvT.jpg?f=user_large)