Hoi klussende Tweakers!
Welkom in mijn topic waar ik om allerhande advies zal vragen en (t.z.t.) ook de voortgang van de verbouwing zal posten. Ik ben de gelukkige koper van een pand waar voorheen een winkel in heeft gezeten. Een oud (1890) vrijstaand (smalle doorgang aan beide zijdes) pand met erg mooie karakteristieke gevel, het oogt monumentaal maar dat is het gelukkig niet. I.v.m. privacy geen foto van nu, omdat het pand nogal herkenbaar is door de winkelpui met naam die er nu in zit. Ik wil de gevel gaan herstellen naar oude glorie.
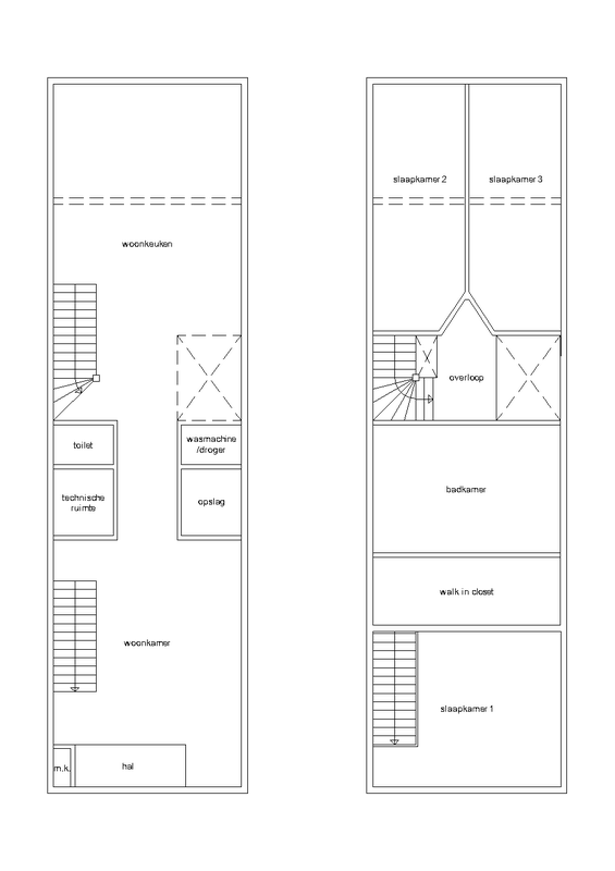
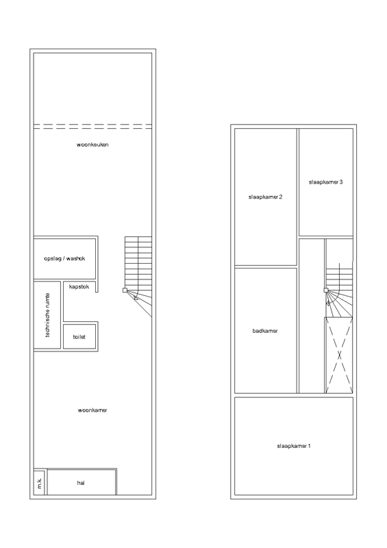
Het pand is iets versimpeld een (smalle) rechthoek te noemen. Begane grond van circa 16,5mx4,5m met plafonds van ruim 3m hoog. Bovenverdieping is aan de voorzijde 3,7x4,5m met daarboven nog een vliering en achterzijde 10,0mx3,8m (3,8m geteld vanaf de 1.5m lijn i.v.m. zadeldak).
Lichtinval is zowel boven als beneden momenteel enkel aan de voor en achterkant.
De tuin circa 10,5x5m, te bereiken langs een pad aan de (rechter)zijkant van de woning.
Het pand circa 1930;

Een aantal van mijn wensen, ideeën, eisen so far;
Excuus het lijkt hierbij of boven en beneden even groot zijn, maar beneden is dus circa 3m langer, achterste stukje zit een plat dak op. Er kan eventueel aan de achterzijde uitgebouwd worden, zowel beneden als boven.
Het grote probleem waar ik momenteel tegenaan loop met het maken van indelingen is; wat voor design trap neem ik en waar/hoe laat ik deze boven komen. Om 3 slaapkamers en een badkamer te realiseren wordt dat volgens mij erg lastig i.c.m. de overloop. Daarnaast zou ik ook graag het trapgat willen gebruiken voor wat extra lichtinval van boven naar beneden.
Mocht iemand het gouden idee hebben dan beloon ik die met liefde en plezier met een lekker bier of wijnpakket!
Welkom in mijn topic waar ik om allerhande advies zal vragen en (t.z.t.) ook de voortgang van de verbouwing zal posten. Ik ben de gelukkige koper van een pand waar voorheen een winkel in heeft gezeten. Een oud (1890) vrijstaand (smalle doorgang aan beide zijdes) pand met erg mooie karakteristieke gevel, het oogt monumentaal maar dat is het gelukkig niet. I.v.m. privacy geen foto van nu, omdat het pand nogal herkenbaar is door de winkelpui met naam die er nu in zit. Ik wil de gevel gaan herstellen naar oude glorie.
Het pand is iets versimpeld een (smalle) rechthoek te noemen. Begane grond van circa 16,5mx4,5m met plafonds van ruim 3m hoog. Bovenverdieping is aan de voorzijde 3,7x4,5m met daarboven nog een vliering en achterzijde 10,0mx3,8m (3,8m geteld vanaf de 1.5m lijn i.v.m. zadeldak).
Lichtinval is zowel boven als beneden momenteel enkel aan de voor en achterkant.
De tuin circa 10,5x5m, te bereiken langs een pad aan de (rechter)zijkant van de woning.
Het pand circa 1930;

Een aantal van mijn wensen, ideeën, eisen so far;
- Een mooie grote (leef)keuken met kookeiland, bij voorkeur met verbinding met de tuin
- Een “open leefplan” beneden, niet teveel muren en deuren.
- Een kamer-en-suite kast met (glas in lood) schuifdeuren vind ik eventueel wel mooi als “room divider”
- Een mix van oud en natuurlijke materialen (ook vanwege uitstraling pand) en nieuw en modern.
- Minimaal vloerverwarming, liefst van het gas af.
- Voorkeur voor 3 slaapkamers
- Voorkeur voor een bad op de badkamer.
Excuus het lijkt hierbij of boven en beneden even groot zijn, maar beneden is dus circa 3m langer, achterste stukje zit een plat dak op. Er kan eventueel aan de achterzijde uitgebouwd worden, zowel beneden als boven.
Het grote probleem waar ik momenteel tegenaan loop met het maken van indelingen is; wat voor design trap neem ik en waar/hoe laat ik deze boven komen. Om 3 slaapkamers en een badkamer te realiseren wordt dat volgens mij erg lastig i.c.m. de overloop. Daarnaast zou ik ook graag het trapgat willen gebruiken voor wat extra lichtinval van boven naar beneden.
Mocht iemand het gouden idee hebben dan beloon ik die met liefde en plezier met een lekker bier of wijnpakket!
Beeromaniac
:fill(white):strip_exif()/f/image/N0TsPfCJudFkkhYOAwd4PHol.png?f=user_large)
:fill(white):strip_exif()/f/image/4Iw3c9edREKixa3STpZIhcqv.png?f=user_large)
:fill(white):strip_exif()/f/image/BCwCEX4WmRWMJda72Op9WhOw.png?f=user_large)
:fill(white):strip_exif()/f/image/dEzoog0VbYZ8uOuPF8ir108p.png?f=user_large)
:strip_exif()/f/image/XJ7HOoXCbWtVEmVCXlAtcoTI.jpg?f=fotoalbum_tile)
:strip_exif()/f/image/TDnOUpHZSr4SE1TE58DFdz5D.jpg?f=fotoalbum_tile)

:strip_exif()/f/image/poRXkeUX9Obn6LY76sKawNjh.jpg?f=fotoalbum_large)
:strip_exif()/f/image/bpLtDoYaju4N3g0X1hWIt3WB.jpg?f=fotoalbum_large)
:strip_exif()/f/image/LwQeLd5g47x1fwoCRdQFTvjr.jpg?f=fotoalbum_large)
:strip_exif()/f/image/dItQxmEpMSigzK9IEgEOInyA.jpg?f=fotoalbum_large)
/f/image/dRoux1cqwXEqULEUVLcjo0y0.png?f=fotoalbum_tile)
/f/image/YIGc6h5C2Fvmgw5tlXekq7LW.png?f=fotoalbum_tile)
/f/image/iDizDSfRXro5cyrqo2ggkpBa.png?f=fotoalbum_tile)








:strip_exif()/f/image/g3UsdzCw7O69ufubrzZl3ldK.jpg?f=fotoalbum_tile)
:strip_exif()/f/image/PcIbroKMhN5JEJdrC8ob7IBn.jpg?f=fotoalbum_tile)
:strip_exif()/f/image/LvDQ079e3tuhWcIjlvNVNHBy.jpg?f=fotoalbum_tile)
:strip_exif()/f/image/Rm2kIwtMPZz8AaD0jEwYDzZW.jpg?f=fotoalbum_tile)
:strip_exif()/f/image/oIDY70SAhUKTkBPUwsCZqbEN.jpg?f=fotoalbum_tile)
/f/image/sklgTOnyLAmeXt9rigz7Rsn9.png?f=fotoalbum_large)
/f/image/Z7kvzmd2K4a7qEePutyfAS9J.png?f=fotoalbum_large)
/f/image/OhYZsBLe5fRzYIfHHCJFciHZ.png?f=fotoalbum_large)
:strip_exif()/f/image/H8xAhgs0BEz0S6gSCQEERz30.jpg?f=fotoalbum_tile)
:strip_exif()/f/image/kNXL8HhreKTJHpXj8x0lTvtm.jpg?f=fotoalbum_tile)
/f/image/ibLWBnb8HGieXqxjhsZ47bX8.png?f=fotoalbum_large)

