SITUATIE:
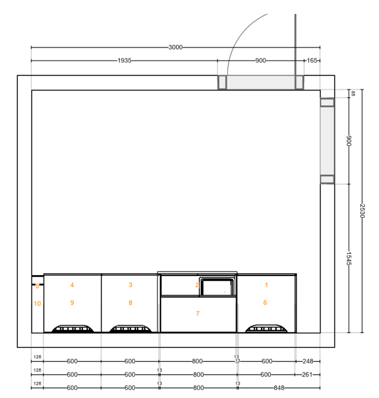
We hebben een ruimte die we willen opsplitsen in 2 ruimtes waarbij 1 ruimte een bijkeuken wordt en de andere ruimte een speelkamer.
De scheiding willen we maken door het plaatsen van een Ikea Metod keuken (zie hieronder voor afbeelding).
VRAAG:
Hoe kan ik dit het beste doen?
Mijn eerste idee is/was om de kasten te plaatsen en aan de achterkant een aantal platen te bevestigen zodat de achterkant er redelijk uitziet en tevens voor de stevigheid. Ik heb nog een aantal multiplex platen van 25mm liggen die ik hiervoor wilde gebruiken.
Zoals je kunt zien op de afbeelding zijn er naast de hoge kasten ook een bovenkast. Deze moet natuurlijk ook op een bepaalde manier bevestigd worden. Mijn idee was om die aan de multiplex platen te bevestigen en tevens vanaf de hoge kasten aan de zijkant wat extra schroeven te zetten.
Lijkt dit een goed idee of kan ik beter eerst een tussenwand met metalstuds/hout en rachewerk een tussenmuur te maken? Nadeel vindt ik hierbij dat het meer ruimte kost wat de ruimte nog wat kleiner maakt (en tevens meer werk is). Als het niet hoeft heeft dat dus niet de voorkeur.
Hoor graag julie input!
Afbeeldingen
/f/image/HiStF3KgQCxreVdNzzxQ7c5j.png?f=fotoalbum_large)
/f/image/ahbsp6YwhvlXH7SK4ibbYTwb.png?f=fotoalbum_large)
/f/image/KvPPZ2eLXL5XJoJ5C8WZ27ms.png?f=fotoalbum_large)
We hebben een ruimte die we willen opsplitsen in 2 ruimtes waarbij 1 ruimte een bijkeuken wordt en de andere ruimte een speelkamer.
De scheiding willen we maken door het plaatsen van een Ikea Metod keuken (zie hieronder voor afbeelding).
VRAAG:
Hoe kan ik dit het beste doen?
Mijn eerste idee is/was om de kasten te plaatsen en aan de achterkant een aantal platen te bevestigen zodat de achterkant er redelijk uitziet en tevens voor de stevigheid. Ik heb nog een aantal multiplex platen van 25mm liggen die ik hiervoor wilde gebruiken.
Zoals je kunt zien op de afbeelding zijn er naast de hoge kasten ook een bovenkast. Deze moet natuurlijk ook op een bepaalde manier bevestigd worden. Mijn idee was om die aan de multiplex platen te bevestigen en tevens vanaf de hoge kasten aan de zijkant wat extra schroeven te zetten.
Lijkt dit een goed idee of kan ik beter eerst een tussenwand met metalstuds/hout en rachewerk een tussenmuur te maken? Nadeel vindt ik hierbij dat het meer ruimte kost wat de ruimte nog wat kleiner maakt (en tevens meer werk is). Als het niet hoeft heeft dat dus niet de voorkeur.
Hoor graag julie input!
Afbeeldingen
/f/image/HiStF3KgQCxreVdNzzxQ7c5j.png?f=fotoalbum_large)
/f/image/ahbsp6YwhvlXH7SK4ibbYTwb.png?f=fotoalbum_large)
/f/image/KvPPZ2eLXL5XJoJ5C8WZ27ms.png?f=fotoalbum_large)
d'n oliesjeik
/f/image/hOiYIrnrjUV6XVGIr0uia6wd.png?f=fotoalbum_large)
:strip_exif()/f/image/cXbAwpQPumjQcB4QJQrDA3K6.jpg?f=fotoalbum_large)
:strip_exif()/f/image/EoENm2zGmD60XpsUakGk0x1m.jpg?f=fotoalbum_large)
:strip_exif()/f/image/xAL8rnSQ0eoF6QdxQn7tezm9.jpg?f=fotoalbum_large)
:strip_exif()/f/image/3nLmSlpREQlkeBLGD8F0g2ht.jpg?f=fotoalbum_large)
:strip_exif()/f/image/p95z8eHSN65fmRmwHfkOeczG.jpg?f=fotoalbum_large)
:strip_exif()/f/image/BdQvav06kmo9GzHtW8MMTcet.jpg?f=fotoalbum_large)
:strip_exif()/f/image/pEnjpR27oRZFpaDj51FftcIj.jpg?f=fotoalbum_large)