Ben niet de eerste met deze vraag. En zal waarschijnlijk er niet aan ontkomen om een constructeur in te schakelen, maar in de tussentijd wil ik toch even wat hoor en wederhoor plegen met de deskundigen hier 
Stukje historie; ik woon in een vrijstaande woning uit 2007. Tijdens de bouw is er een hoop mis gegaan met vergunningen, EPC waardes en uiteindelijk een faillissement van de bouwer. Zijn we zelf gelukkig niet bij geweest, maar op de jaarlijkse straatbarbecue is het altijd een terugkerend thema.
Tijdens de originele bouw waren er drie opties grofweg:
- Een berging van 3 meter met 6 meter carport
- Een berging van 6 meter met 3 meter carport
- Een berging van 3 meter met 6 meter kamer/garage
Wij hebben variant 1, en ik wil naar variant 2. Appeltje eitje dachten we, vergunning aanvragen, vloertje storten, wandje omzetten, oude dekvloer eruit, nieuwe dekvloer erin en garagedeur monteren.
Dat ging al mis op het punt dat er nooit een vergunning is afgegeven voor variant 2 en 3. Hoop gesteggel, maar uiteindelijk op basis van het feit dat de rest van de rij ze wel heeft, toch de vergunning gekregen. Dit na aanlevering van alle constructieberekeningen van de varianten.
Maar dan...
Fundering lag al, aangezien die hetzelfde is voor alle varianten, dus vloertje storten was snel geregeld. Houtskelet weggehaald, kozijn verplaatst, en toen viel mijn oog op het feit dat de kalkzandmuur toch een beetje dikker is dan de 10cm op de tekening. Deze is namelijk ruim 12 cm.
Geen moment überhaupt gedacht dat deze muur dragend zou kunnen zijn, maar de twijfel slaat nu toch toe. Zeker omdat de bouwtekening niet klopt qua dikte.
Redenen waarom het geen draagmuur zou zijn:
- Staat parallel aan de vloerdelen
- Parallel aan de plafonddelen
- Dezelfde breedte aan de achterkant van het huis heeft alleen een kozijn
- Zichtbare plafonddeel is ruim 18cm dik, en zou de overspanning ruim moeten kunnen halen
- Andere draagmuren zijn 150
Redenen waarom het wel een draagmuur zou zijn:
- Er ligt fundering onder
- muur is >10cm dik, maar kan komen omdat ze overal dezelfde stenen hebben gebruikt
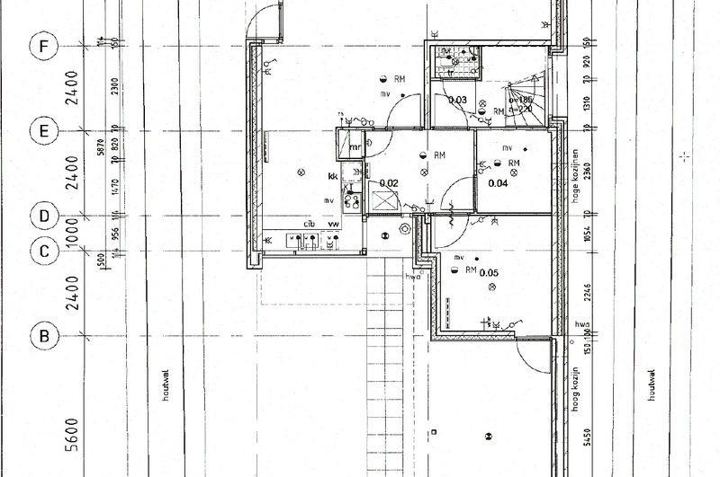
Het gaat om dit deel van de bouwtekening:
/f/image/FwwmiFwGzXOHYnsuLa2aLOqo.png?f=fotoalbum_large)
hierbij is het de onderste 'horizontale' muur. Op de tekening dus 100mm. In de praktijk rond de 120.
Een wat uitgezoomd plaatje:
/f/image/2A3Oe0GHdt48oo6XeWf8W2Gf.png?f=fotoalbum_large) 
                                                
            Stukje historie; ik woon in een vrijstaande woning uit 2007. Tijdens de bouw is er een hoop mis gegaan met vergunningen, EPC waardes en uiteindelijk een faillissement van de bouwer. Zijn we zelf gelukkig niet bij geweest, maar op de jaarlijkse straatbarbecue is het altijd een terugkerend thema.
Tijdens de originele bouw waren er drie opties grofweg:
- Een berging van 3 meter met 6 meter carport
- Een berging van 6 meter met 3 meter carport
- Een berging van 3 meter met 6 meter kamer/garage
Wij hebben variant 1, en ik wil naar variant 2. Appeltje eitje dachten we, vergunning aanvragen, vloertje storten, wandje omzetten, oude dekvloer eruit, nieuwe dekvloer erin en garagedeur monteren.
Dat ging al mis op het punt dat er nooit een vergunning is afgegeven voor variant 2 en 3. Hoop gesteggel, maar uiteindelijk op basis van het feit dat de rest van de rij ze wel heeft, toch de vergunning gekregen. Dit na aanlevering van alle constructieberekeningen van de varianten.
Maar dan...
Fundering lag al, aangezien die hetzelfde is voor alle varianten, dus vloertje storten was snel geregeld. Houtskelet weggehaald, kozijn verplaatst, en toen viel mijn oog op het feit dat de kalkzandmuur toch een beetje dikker is dan de 10cm op de tekening. Deze is namelijk ruim 12 cm.
Geen moment überhaupt gedacht dat deze muur dragend zou kunnen zijn, maar de twijfel slaat nu toch toe. Zeker omdat de bouwtekening niet klopt qua dikte.
Redenen waarom het geen draagmuur zou zijn:
- Staat parallel aan de vloerdelen
- Parallel aan de plafonddelen
- Dezelfde breedte aan de achterkant van het huis heeft alleen een kozijn
- Zichtbare plafonddeel is ruim 18cm dik, en zou de overspanning ruim moeten kunnen halen
- Andere draagmuren zijn 150
Redenen waarom het wel een draagmuur zou zijn:
- Er ligt fundering onder
- muur is >10cm dik, maar kan komen omdat ze overal dezelfde stenen hebben gebruikt
Het gaat om dit deel van de bouwtekening:
/f/image/FwwmiFwGzXOHYnsuLa2aLOqo.png?f=fotoalbum_large)
hierbij is het de onderste 'horizontale' muur. Op de tekening dus 100mm. In de praktijk rond de 120.
Een wat uitgezoomd plaatje:
/f/image/2A3Oe0GHdt48oo6XeWf8W2Gf.png?f=fotoalbum_large) 
                                                [ Voor 8% gewijzigd door MikeyMan op 15-05-2023 21:46 ]
:strip_icc():strip_exif()/u/78991/Image2.jpg?f=community) 
            /f/image/5FjFXJeRBClcNRkTN7oeFBX2.png?f=fotoalbum_large)
/f/image/qLMCK3p0MuGId03jUPF1MHy7.png?f=fotoalbum_large)
/f/image/hdF1sTymbQFObPJdKWZNxLz3.png?f=fotoalbum_large)
/f/image/GWlo5YYu7dl3suc9ySfELuUD.png?f=fotoalbum_large)
/f/image/8UwQwqOkD7Yly2ogz0BLiTid.png?f=fotoalbum_large)
/f/image/yz4EYKKe7PhjGs1yUTAeEPaJ.png?f=fotoalbum_large)
/f/image/hiFW1aaJo1SLxxxtSxUfcQsM.png?f=fotoalbum_large)
:strip_exif()/f/image/aktPZP8FzeZnuLA7RID7zcuA.jpg?f=fotoalbum_large)
/f/image/Ghocx4ZNGJl1MEMkBWj0hQYP.png?f=fotoalbum_large)