Beste mensen,
Ik heb jullie hulp nodig.
We hebben twee ontwerpen hoe wij denken dat eventueel de warm water leiding zou kunnen komen te liggen.
We maken ons echter wel zorgen over de lange lengte.
/f/image/UuKZK5079jqzkW6BqT3gRr60.png?f=fotoalbum_large)
/f/image/8DmGSTK7Z7o6BEJggESoz5qz.png?f=fotoalbum_large)
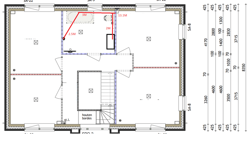
Situatie A:
Hierbij zouden we van de warmtepomp, eerst naar beneden gaan naar de kruipruimte, deze vervolgens via de kruipruimte naar een sparing brengen en via de sparing naar boven naar de badkamer kunnen brengen.
In deze situatie zouden we dan 13.1M al nodig hebben voor we bij de badkamer aankomen, vervolgens komen hier nog de nodige meters van de badkamer zelf bij:
ca. 5.5M wat zou betekenen dat we op een totale leiding lengte komen vanaf de warmtepomp tot de docuhe van 18.5m
/f/image/y5xjfd17CaOdGUaNnzEEExaK.png?f=fotoalbum_large)
/f/image/ZGNhgihcyygR7UkvQrg78RYF.png?f=fotoalbum_large)
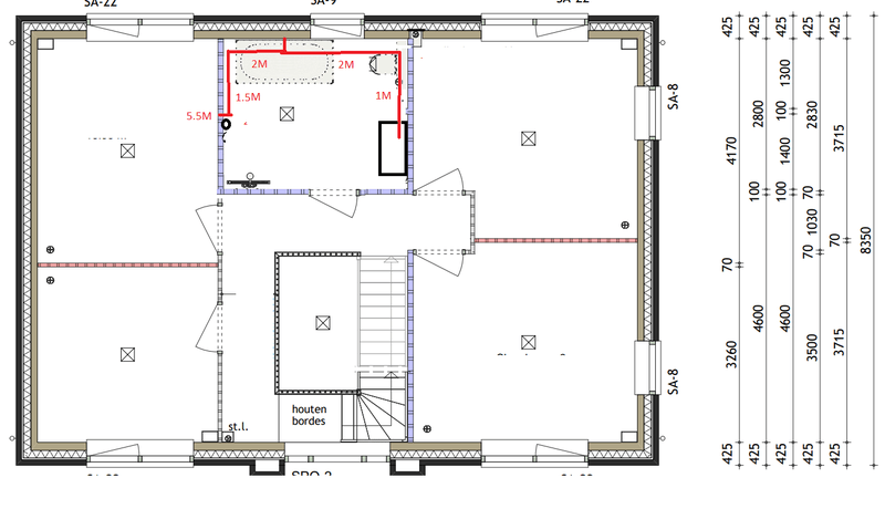
Situatie B:
We laten hierbij de leiding naar boven gaan en willen deze dan eventueel via het kanaal van de kanaalplaatvloer laten lopen. Dit zou betekenen dat we ca. 5.5m kwijt zijn voor we bij de badkamer aankomen.
Hierbij komen dan nog de meters van de badkamer zelf bij: ca. zo 6.5m waardoor we op een totaal van 12m uitkomen.
Nu vragen we ons wel af of dit mag en dit bijv. geen problemen geeft met condens. Eventueel wilde we de leiding vast purren of met een laag cement vastzetten.
Aanvullende vraag:
In de badkamer komen de volgende aansluitingen:
Regendouche (20cm)(aansluting G3/4)(minimaal 12L per minuut), 2x kranen (wasmeubel) en 1 bad.
Welke diameter kunnen we het beste gebruiken voor de hoofdaansluiting en wat kunnen we het beste gebruiken voor de aftakingen?
wij zelf dachten aan 20mm leidingen.
Ik hoor graag meer van jullie.
Ik heb jullie hulp nodig.
We hebben twee ontwerpen hoe wij denken dat eventueel de warm water leiding zou kunnen komen te liggen.
We maken ons echter wel zorgen over de lange lengte.
/f/image/UuKZK5079jqzkW6BqT3gRr60.png?f=fotoalbum_large)
/f/image/8DmGSTK7Z7o6BEJggESoz5qz.png?f=fotoalbum_large)
Situatie A:
Hierbij zouden we van de warmtepomp, eerst naar beneden gaan naar de kruipruimte, deze vervolgens via de kruipruimte naar een sparing brengen en via de sparing naar boven naar de badkamer kunnen brengen.
In deze situatie zouden we dan 13.1M al nodig hebben voor we bij de badkamer aankomen, vervolgens komen hier nog de nodige meters van de badkamer zelf bij:
ca. 5.5M wat zou betekenen dat we op een totale leiding lengte komen vanaf de warmtepomp tot de docuhe van 18.5m
/f/image/y5xjfd17CaOdGUaNnzEEExaK.png?f=fotoalbum_large)
/f/image/ZGNhgihcyygR7UkvQrg78RYF.png?f=fotoalbum_large)
Situatie B:
We laten hierbij de leiding naar boven gaan en willen deze dan eventueel via het kanaal van de kanaalplaatvloer laten lopen. Dit zou betekenen dat we ca. 5.5m kwijt zijn voor we bij de badkamer aankomen.
Hierbij komen dan nog de meters van de badkamer zelf bij: ca. zo 6.5m waardoor we op een totaal van 12m uitkomen.
Nu vragen we ons wel af of dit mag en dit bijv. geen problemen geeft met condens. Eventueel wilde we de leiding vast purren of met een laag cement vastzetten.
Aanvullende vraag:
In de badkamer komen de volgende aansluitingen:
Regendouche (20cm)(aansluting G3/4)(minimaal 12L per minuut), 2x kranen (wasmeubel) en 1 bad.
Welke diameter kunnen we het beste gebruiken voor de hoofdaansluiting en wat kunnen we het beste gebruiken voor de aftakingen?
wij zelf dachten aan 20mm leidingen.
Ik hoor graag meer van jullie.
