From all the things I have lost, I miss my mind the most - Ozzy
Uitvindingen zijn niets anders dan betere middelen naar een slechter doel - Berry van Aerle
Het uitzetten van je pc is als het dooddrukken van een muis, dat doe je niet zo makkelijk.
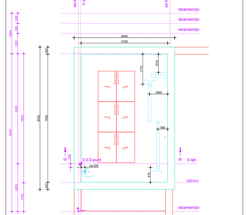
Volgens de tekening wordt rekening gehouden met panelen van 110x180cm. Dan zit je in de 400-420Wp klasse. Als ik de afmetingen van het dak zie en rekening houdend met de obstakels op het dak dan zou ik zelfs aan 12 panelen kunnen komen. Van onder naar boven met dezelfde ligging als op de tekening: 2, 4, 4, 2
De panelen zijn ingetekend met dakjes dus het zal een plat dak zijn. Is er een opstaande rand op het dak? Wat is de azimut van het huis?
De panelen zijn ingetekend met dakjes dus het zal een plat dak zijn. Is er een opstaande rand op het dak? Wat is de azimut van het huis?
In Utrecht wordt de regel "net zover van de dakrand, als het systeem hoog is" gehanteerd. Dat heb ik dus ook gedaan. Op die manier kan je inderdaad VEEL meer panalen kwijt. je blijft dan 50cm van de dakrand vandaan.
Als je het in vrij plat liggende "dakjes" legt (zoals ik zegmaar), maakt het ook niet echt uit in welke richting het ligt voor de opbrengst.
Je hebt dus een oppervlak van 7400 x 4000 wat je helemaal vol zou kunnen leggen. Een kwartslag gedraaid passen in 4M makkelijk 2 panelen naast elkaar. En in 7,4 meter passen ook makkelijk 6 rijen. 12 panelen moet zeker kunnen op jouw dak.
Het kan nog veel beter, als die WTW en airo op een slimmere plek zouden staan...
Als je het in vrij plat liggende "dakjes" legt (zoals ik zegmaar), maakt het ook niet echt uit in welke richting het ligt voor de opbrengst.
Je hebt dus een oppervlak van 7400 x 4000 wat je helemaal vol zou kunnen leggen. Een kwartslag gedraaid passen in 4M makkelijk 2 panelen naast elkaar. En in 7,4 meter passen ook makkelijk 6 rijen. 12 panelen moet zeker kunnen op jouw dak.
Het kan nog veel beter, als die WTW en airo op een slimmere plek zouden staan...
[ Voor 8% gewijzigd door JvS op 05-12-2022 08:59 ]
4x APsystems DS3; 4x495Wp OZO/WNW 10° ; 4x460Wp OZO/WNW 10°; Totaal 3820Wp
/f/image/hgSmYBKPQqL64J8Fc1GdQMnJ.png?f=fotoalbum_large)