Hoi allemaal,
Wij zijn op zoek naar mensen die ervaringen hebben opgedaan met het multi-air supply systeem van Brink. Maar ook andere inzichten zijn meer dan welkom.
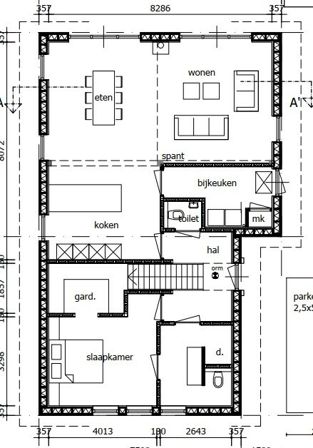
In februari wordt ons zeer goed geïsoleerde houtskeletbouw woning casco opgeleverd en dan gaan we het in eigen beheer verder afbouwen.
Omdat we zoveel mogelijk de houtstructuur in tact willen laten, willen zo min mogelijk aan- en toevoerbuizen gebruiken. Daarnaast hebben we, vanwege een vide met balustrade, één hele grote ruimte die bestaat uit woonkamer, keuken, hal/trappenhuis en de grote overloop van de 1e etage.
Het idee is om die grote ruimte als buffer te gebruiken voor alle overige ruimtes. De hoofdslaapkamer op de bgg staat in verbinding met de hal waar we de lucht onder de deur kunnen aanzuigen. Dat kan dan gebeuren via een afzuigunit in de muur die in verbinding staat met de woonkamer/keuken. De overige twee slaapkamers bevinden zich op de 1e etage en worden normaal niet gebruikt. Maar ook deze zouden we kunnen uitrusten met een afzuigunit. De wc wordt dan alleen afgezogen via een directe buis.
De badkamer willen we via een afzonderlijk systeem laten afzuigen op basis van luchtvochtigheid. Deze hoeft niet op de wtw worden aan gesloten.
Zie de afbeeldingen van de beide etages.
Alvast voor de reacties!
:no_upscale():strip_icc():fill(white):strip_exif()/f/image/BgctgyAh8U7QJNVXc5DmxAP2.jpg?f=user_large)
Wij zijn op zoek naar mensen die ervaringen hebben opgedaan met het multi-air supply systeem van Brink. Maar ook andere inzichten zijn meer dan welkom.
In februari wordt ons zeer goed geïsoleerde houtskeletbouw woning casco opgeleverd en dan gaan we het in eigen beheer verder afbouwen.
Omdat we zoveel mogelijk de houtstructuur in tact willen laten, willen zo min mogelijk aan- en toevoerbuizen gebruiken. Daarnaast hebben we, vanwege een vide met balustrade, één hele grote ruimte die bestaat uit woonkamer, keuken, hal/trappenhuis en de grote overloop van de 1e etage.
Het idee is om die grote ruimte als buffer te gebruiken voor alle overige ruimtes. De hoofdslaapkamer op de bgg staat in verbinding met de hal waar we de lucht onder de deur kunnen aanzuigen. Dat kan dan gebeuren via een afzuigunit in de muur die in verbinding staat met de woonkamer/keuken. De overige twee slaapkamers bevinden zich op de 1e etage en worden normaal niet gebruikt. Maar ook deze zouden we kunnen uitrusten met een afzuigunit. De wc wordt dan alleen afgezogen via een directe buis.
De badkamer willen we via een afzonderlijk systeem laten afzuigen op basis van luchtvochtigheid. Deze hoeft niet op de wtw worden aan gesloten.
Zie de afbeeldingen van de beide etages.
Alvast voor de reacties!
:no_upscale():strip_icc():fill(white):strip_exif()/f/image/BgctgyAh8U7QJNVXc5DmxAP2.jpg?f=user_large)