Beste tweakers,
Wij, gezin van 4, zullen binnenkort gaan verhuizen en willen nog voordat we de woning betrekken enkele verbouwingen hebben uitgevoerd. Eén van de zaken die bij ons op de lijst staat is het verduurzamen van de woning, met als doel lagere woonlasten. Ik hoop met behulp van dit topic adviezen, meningen en ideeën in te winnen die ons hopelijk helpen ons concrete plan op te stellen.
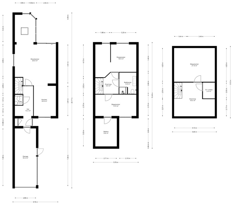
Bouwjaar: 1984
Totale vloeroppervlakte: 194m2
Gebruiksoppervlak wonen: 140m2
Bruto inhoud: 560m3
Energielabel: C
:strip_exif()/f/image/OK6qxBcKxxFlyYPYvWZm3LzF.jpg?f=fotoalbum_large)
Gevels
Noordoost: 7m2 Rc 1,3
Zuidoost: 19m2 Rc1,3
Zuidwest: 71m2 Rc 1,3
Daken
Zuidoost: 22m2 Rc 1,3
Noordwest: 28m2 Rc 1,3
Horizontaal: 16m2 Rc 1,3
Vloeren
Vloeren: 60m2 Rc 1,3
Ramen
Noordoost: 8m2 Uw 2,9
Noordwest: 15m2 Uw 2,9
Zuidoost: 8m2 Uw 2,9
Zuidwest: 3m2 Uw 2,9
Horizontaal: 1m2 Uw 2,9
Buitendeuren
Noordoost: 2m2 Ud 3,4
Zuidoost: 2m2 Ud 3,4
Noordwest: 2m2 Ud 3,4
Verwarming
HR-107 ketel (Remeha Tzerra M28C. Bouwjaar 2015)
Natuurlijke ventilatie via ramen en/of rooster
4 radiatoren begane grond
4 conventionele radiatoren 1e verdieping
1 radiator 2e verdieping
1) Vloer beter isoleren
2) Spouwmuurisolatie
3) Dak beter isoleren
4) De enkel- en dubbelglas ruiten vervangen door HR++
5) Buitendeuren vervangen
6) Alle radiatoren en bijbehorende leidingen verwijderen
7) Vloerverwarming leidingen infrezen in de begane grond, +-50m2 (nieuwe aanvoer vanaf zolder op gunstige positie)
8 ) LV-radiator in het toilet en de badkamer plaatsen
9) Airco (koeling/verwarming) plaatsen op de 1e verdieping en 2e verdieping
10) CV ketel vervangen door een warmtepomp, hier wil ik nu al zoveel als mogelijk rekening mee houden
11) Zonnepanelen
12) Op zolder een apparte technische ruimte maken
Al met al een behoorlijk wensenlijstje, welke ik hoop met jullie input wat concreter te maken. Gezien de beschikbare tijd, budget en huidige problematiek met (vak)mannen en materialen is het niet realistisch om alles te hebben beetgepakt.
Nu hetgeen waar jullie in mee kunnen denken
Verwarming (CV)
Zijn we op de goede weg om vloerverwarming buizen aan te leggen op de begane grond? Dit lijkt mij het duurzaamst en moet in de toekomst goed samen kunnen gaan met een hybride ketel of warmtepomp. Ook overweeg ik om het toilet en badkamer met LT radiatoren te verwarmen.
De voordelen van deze opstelling lijken mij het comfort van de vloerverwarming, het kunnen uitstellen van de investering van een warmtepomp en het hebben van een toekomstbestendige verwarming.
Zijn er zaken waar ik nu nadrukkelijk op moet letten bij het aanleggen van de vloerverwarming of radiatoren?
Koeling/verwarming
Voor de overige ruimte overweeg ik om een airco te gebruiken voor de koeling en verwarming. De behoefte voor airco komt voort uit het comfort van het koelen van de ruimte. Indien deze investering toch wordt gedaan kan dit natuurlijk ook voor de verwarming worden gebruikt. Hiermee wil ik de overige radiatoren laten vervallen.
Ik heb mijzelf al ingelezen op single-split en multi-split buitenunits. Ik ben me bewust van de nadelen van het hebben van een multi-split, maar zie ook voordelen. Kan ik de airco zo uitkiezen dat ik één binnen unit kan gebruiken voor koelen van de woonkamer, of twee a drie andere units in de slaapkamer voor koeling/verwarming? Of is het echt verstandiger om single-split units te kiezen.
Aan welk vermogen airco moet ik denken en zijn er ervaringsgetallen voor het gebruik van de airco voor primaire verwarming van de 1e en 2e verdieping?
Zonnepanelen
We zouden graag zonnepanelen op ons dak hebben, maar vrezen dat de ligging van het huis zich hier niet heel goed voor leent. In de straat hebben diverse huizen negen panelen op het dak, maar wij grenzen nog eens aan een bomenrij die geregeld voor schaduw zal zorgen. (weet nog niet hoeveel)
Zou het toch rendabel zijn om panelen te plaatsen? Eventueel op het platdak van de garage? Het lijkt mij dat dit met de micro-omvormers toch best is op te vangen?
:strip_exif()/f/image/n9UnhVXNYwJOZ3ZyVPkC8RRw.jpg?f=fotoalbum_large)
Zijn we op de goede weg met onze plannen? Of moeten we zaken compleet anders aanpakken? We staan open voor out-of-the-box ideeën.
Alvast bedankt.
Groet Dennis
Wij, gezin van 4, zullen binnenkort gaan verhuizen en willen nog voordat we de woning betrekken enkele verbouwingen hebben uitgevoerd. Eén van de zaken die bij ons op de lijst staat is het verduurzamen van de woning, met als doel lagere woonlasten. Ik hoop met behulp van dit topic adviezen, meningen en ideeën in te winnen die ons hopelijk helpen ons concrete plan op te stellen.
Woning
Soort woning: HoekhuisBouwjaar: 1984
Totale vloeroppervlakte: 194m2
Gebruiksoppervlak wonen: 140m2
Bruto inhoud: 560m3
Energielabel: C
:strip_exif()/f/image/OK6qxBcKxxFlyYPYvWZm3LzF.jpg?f=fotoalbum_large)
Gevels
Noordoost: 7m2 Rc 1,3
Zuidoost: 19m2 Rc1,3
Zuidwest: 71m2 Rc 1,3
Daken
Zuidoost: 22m2 Rc 1,3
Noordwest: 28m2 Rc 1,3
Horizontaal: 16m2 Rc 1,3
Vloeren
Vloeren: 60m2 Rc 1,3
Ramen
Noordoost: 8m2 Uw 2,9
Noordwest: 15m2 Uw 2,9
Zuidoost: 8m2 Uw 2,9
Zuidwest: 3m2 Uw 2,9
Horizontaal: 1m2 Uw 2,9
Buitendeuren
Noordoost: 2m2 Ud 3,4
Zuidoost: 2m2 Ud 3,4
Noordwest: 2m2 Ud 3,4
Verwarming
HR-107 ketel (Remeha Tzerra M28C. Bouwjaar 2015)
Natuurlijke ventilatie via ramen en/of rooster
4 radiatoren begane grond
4 conventionele radiatoren 1e verdieping
1 radiator 2e verdieping
De plannen
Waar we nu aan zitten te denken is het volgende:1) Vloer beter isoleren
2) Spouwmuurisolatie
3) Dak beter isoleren
4) De enkel- en dubbelglas ruiten vervangen door HR++
5) Buitendeuren vervangen
6) Alle radiatoren en bijbehorende leidingen verwijderen
7) Vloerverwarming leidingen infrezen in de begane grond, +-50m2 (nieuwe aanvoer vanaf zolder op gunstige positie)
8 ) LV-radiator in het toilet en de badkamer plaatsen
9) Airco (koeling/verwarming) plaatsen op de 1e verdieping en 2e verdieping
10) CV ketel vervangen door een warmtepomp, hier wil ik nu al zoveel als mogelijk rekening mee houden
11) Zonnepanelen
12) Op zolder een apparte technische ruimte maken
Al met al een behoorlijk wensenlijstje, welke ik hoop met jullie input wat concreter te maken. Gezien de beschikbare tijd, budget en huidige problematiek met (vak)mannen en materialen is het niet realistisch om alles te hebben beetgepakt.
Nu hetgeen waar jullie in mee kunnen denken
Verwarming (CV)
Zijn we op de goede weg om vloerverwarming buizen aan te leggen op de begane grond? Dit lijkt mij het duurzaamst en moet in de toekomst goed samen kunnen gaan met een hybride ketel of warmtepomp. Ook overweeg ik om het toilet en badkamer met LT radiatoren te verwarmen.
De voordelen van deze opstelling lijken mij het comfort van de vloerverwarming, het kunnen uitstellen van de investering van een warmtepomp en het hebben van een toekomstbestendige verwarming.
Zijn er zaken waar ik nu nadrukkelijk op moet letten bij het aanleggen van de vloerverwarming of radiatoren?
Koeling/verwarming
Voor de overige ruimte overweeg ik om een airco te gebruiken voor de koeling en verwarming. De behoefte voor airco komt voort uit het comfort van het koelen van de ruimte. Indien deze investering toch wordt gedaan kan dit natuurlijk ook voor de verwarming worden gebruikt. Hiermee wil ik de overige radiatoren laten vervallen.
Ik heb mijzelf al ingelezen op single-split en multi-split buitenunits. Ik ben me bewust van de nadelen van het hebben van een multi-split, maar zie ook voordelen. Kan ik de airco zo uitkiezen dat ik één binnen unit kan gebruiken voor koelen van de woonkamer, of twee a drie andere units in de slaapkamer voor koeling/verwarming? Of is het echt verstandiger om single-split units te kiezen.
Aan welk vermogen airco moet ik denken en zijn er ervaringsgetallen voor het gebruik van de airco voor primaire verwarming van de 1e en 2e verdieping?
Zonnepanelen
We zouden graag zonnepanelen op ons dak hebben, maar vrezen dat de ligging van het huis zich hier niet heel goed voor leent. In de straat hebben diverse huizen negen panelen op het dak, maar wij grenzen nog eens aan een bomenrij die geregeld voor schaduw zal zorgen. (weet nog niet hoeveel)
Zou het toch rendabel zijn om panelen te plaatsen? Eventueel op het platdak van de garage? Het lijkt mij dat dit met de micro-omvormers toch best is op te vangen?
:strip_exif()/f/image/n9UnhVXNYwJOZ3ZyVPkC8RRw.jpg?f=fotoalbum_large)
Zijn we op de goede weg met onze plannen? Of moeten we zaken compleet anders aanpakken? We staan open voor out-of-the-box ideeën.
Alvast bedankt.
Groet Dennis
True science is not measured by its successes, but by its ability to learn gracefully from its failures.