Misschien kunnen jullie meedenken..
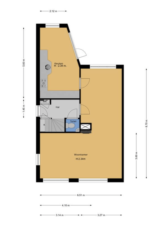
Ik heb een jaren 70 woning gekocht met 'matige isolatie'. Dit gaan we aanpakken: dak en vloer worden nageïsoleerd en indien mogelijk doen we nog wat met de (kleine) spouw.
Ik wil dit huis geschikt maken voor verwarming met een warmtepomp.
Het plan is nu om vloerverwarming beneden te leggen en LTV verwarming in de overige ruimten. De badkamer twijfel ik nog een beetje over: krijgen we die warm genoeg met vloerverwarming (voor de vrouw en kinderen)? Moet daar nog een (LTV) handdoekradiator bij? Eventueel electrische vloerverwarming, maar COP 1 is niet leuk..
Op de slaapkamers/thuiskantoor denk ik dan aan Jaga's.
In het begin wil ik met de Intergas HRE 28 draaien op, hopelijk, 35C aanvoer. Minimale vermogen 7kW.
Later over op een L/W warmtepomp. Niet echt voor koeling, gewoon voor ruimte verwarming. SWW dan met een losse WP boiler (lijkt me).
Overwegingen / vragen:
* Behoud ik beneden radiatoren / mogelijkheid voor radiatoren?
* Hoe verwarm ik de badkamer, ook buiten het stookseizoen sochtends en savonds? Laatste gedachte is watergedragen vloerverwarming, liefst vanuit dezelfde verdeler in de gang.
* Jaga's op de slaapkamers? Of kijk ik eerst hoe ver ik kom met de originele bakbeesten? (Nadeel: muurafwerking...)
* Vloerverwarmings verdeler: composiet zonder pomp, met flowmeters en M30x1.5 afsluiters. 6 groepen?
* Vloerverwarming: 16mm buis met 10cm spacing, lijkt me. Groepslengte proberen te beperken.
Hieronder wat plaatjes:
/f/image/f9sx97GzjQ4R0JsyWPkIBret.png?f=fotoalbum_large)
/f/image/ccZ43TsJ3ZhXe17uvHkMjha3.png?f=fotoalbum_large)
:fill(white):strip_exif()/f/image/IwZvOhUEj77x4YCR4kInQB4R.png?f=user_large)
/f/image/viKLndDE1PYavx7ZgYICBQHs.png?f=fotoalbum_large)
/f/image/JcKQw6BVlFFUeAp8ZuyZrdvm.png?f=fotoalbum_large)
/f/image/tTpZIxoJK3R3NijqeMikFYC6.png?f=fotoalbum_large)
Ik heb een jaren 70 woning gekocht met 'matige isolatie'. Dit gaan we aanpakken: dak en vloer worden nageïsoleerd en indien mogelijk doen we nog wat met de (kleine) spouw.
Ik wil dit huis geschikt maken voor verwarming met een warmtepomp.
Het plan is nu om vloerverwarming beneden te leggen en LTV verwarming in de overige ruimten. De badkamer twijfel ik nog een beetje over: krijgen we die warm genoeg met vloerverwarming (voor de vrouw en kinderen)? Moet daar nog een (LTV) handdoekradiator bij? Eventueel electrische vloerverwarming, maar COP 1 is niet leuk..
Op de slaapkamers/thuiskantoor denk ik dan aan Jaga's.
In het begin wil ik met de Intergas HRE 28 draaien op, hopelijk, 35C aanvoer. Minimale vermogen 7kW.
Later over op een L/W warmtepomp. Niet echt voor koeling, gewoon voor ruimte verwarming. SWW dan met een losse WP boiler (lijkt me).
Overwegingen / vragen:
* Behoud ik beneden radiatoren / mogelijkheid voor radiatoren?
* Hoe verwarm ik de badkamer, ook buiten het stookseizoen sochtends en savonds? Laatste gedachte is watergedragen vloerverwarming, liefst vanuit dezelfde verdeler in de gang.
* Jaga's op de slaapkamers? Of kijk ik eerst hoe ver ik kom met de originele bakbeesten? (Nadeel: muurafwerking...)
* Vloerverwarmings verdeler: composiet zonder pomp, met flowmeters en M30x1.5 afsluiters. 6 groepen?
* Vloerverwarming: 16mm buis met 10cm spacing, lijkt me. Groepslengte proberen te beperken.
Hieronder wat plaatjes:
/f/image/f9sx97GzjQ4R0JsyWPkIBret.png?f=fotoalbum_large)
/f/image/ccZ43TsJ3ZhXe17uvHkMjha3.png?f=fotoalbum_large)
:fill(white):strip_exif()/f/image/IwZvOhUEj77x4YCR4kInQB4R.png?f=user_large)
/f/image/viKLndDE1PYavx7ZgYICBQHs.png?f=fotoalbum_large)
/f/image/JcKQw6BVlFFUeAp8ZuyZrdvm.png?f=fotoalbum_large)
/f/image/tTpZIxoJK3R3NijqeMikFYC6.png?f=fotoalbum_large)