Foto's
:no_upscale():strip_icc():fill(white):strip_exif()/f/image/PbNfKOt6oW5s6FnuwNA6MuN4.jpg?f=user_large)
:no_upscale():strip_icc():fill(white):strip_exif()/f/image/o1wWSEfEG65SqzUnMCovBDwA.jpg?f=user_large)
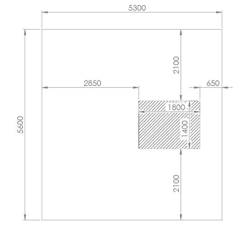
Beschikbare (dak)ruimte
uitbouw is een schuin dak, hellingshoek rond de 17%. 2,2 meter lang en 5,3 meter breedtschuine dak vanaf dakkapel = 5 dakpannen (afmeting geen idee)
schuine stuk dak onder dakkape = 4 dakpannen (afmeting geen idee)
Schaduw
Dak is zuid-west georienteerd.De uitbouw zit ongeveer een uurtje eerder in de schaduw, foto bovenaan is gemaakt op 11 feb om 16:45
Daarnaast zorgt het dakkapel voor een schaduw bij het draaien van de zon (zie ook foto's)
er staat een airco op het dakkapel, deze kan wellicht iets schaduw geven voor de panelen bovenin
Jaarverbruik
3100-3200 KwhHuidige elektriciteitsaansluiting
1 fase, geen plannen voor elektrische auto (kan niet want wij hebben geen eigen oprit)Budget en doel
In principe is het budget oneindig.Doel is om in iedergeval om een systeem te kiezen dat net zoveel oplevert als dat wij gebruiken.
Momenteel zit ons verbruik rond de 3100-3200, wellicht komt daar in de toekomst nog een airco bij waardoor het verbruik richting 3300 gaat.
Wie gaat het project uitvoeren
1 van onderstaande bedrijven, ik zelf nietReeds verkregen offertes
afbeelding 1:no_upscale():strip_icc():fill(white):strip_exif()/f/image/3Q5S6ptIFqy3DcCXUlr60wwn.jpg?f=user_large)
afbeelding 2
:no_upscale():strip_icc():fill(white):strip_exif()/f/image/uQEWijUUATUwQo42PiNPNSTF.jpg?f=user_large)
afbeelding 3
:no_upscale():strip_icc():fill(white):strip_exif()/f/image/Y0V9edgq9xYaXfAQEZ3ukYlP.jpg?f=user_large)
afbeelding 4
:no_upscale():strip_icc():fill(white):strip_exif()/f/image/aHYLZG6qf8NvwLhGo02w6HOv.jpg?f=user_large)
afbeelding 5
:no_upscale():strip_icc():fill(white):strip_exif()/f/image/m0vPRNyjAnyU80QbYvHVAjqK.jpg?f=user_large)
| offerte 1 | offerte 2 | offerte 3 | offerte 4 (zelfde als offerte 3 maar dan 10 panelen) | Offerte 5 | Offerte 6 (zelfde als 5, maar dan serieel) | |
| paneel 1 | 7 x REC Alpha Pure Black 405 REC405AAPureBlack | 11x Hyundai Heavy Industries Co. Ltd., HiE-S400VG mono | 9x Hyundai 400 Full Black Shingled | 10x Hyundai 400 Full Black Shingled | 10x REC 365Wp TwinPeak 4 Black - 1755x1040x30 | 10x REC 365Wp TwinPeak 4 Black - 1755x1040x30 |
| paneel 2 | 3x Panelen REC Alpha Black 370 REC370AABlack | |||||
| WP totaal | 3945 | 4400 | 3600 | 4000 | 3650 | 3650 |
| omvormer 1 | Solder Edge SE 4000h | SolarEdge SE HD-Wave 3680H | 1x APS DS3 Micro omvormer 2 panelen (Max 500Watt) (3,8A)(1fase) | 1x APS DS3 Micro omvormer 2 panelen (Max 500Watt) (3,8A)(1fase) | 10x Micro-omvormer Enphase IQ7+ (1-FASE) | Goodwe GW3000-XS (1-fase) 1xString |
| omvormer 2 | 2x APS QS1 Micro omvormer 4 panelen (Max 410Watt)(5,2A)(1fase) | 2x APS QS1 Micro omvormer 4 panelen (Max 410Watt)(5,2A)(1fase) | ||||
| optimizers | 10 x onbekend | 11 x Power Optimizer S440 | x | x | x | x |
| paneelgarantie | 25 jaar | 25 jaar | 25 jaar | 25 jaar | 25 jaar | 25 jaar |
| omvormer garantie | 12 jaar | 12 jaar | 20 jaar | 20 jaar | 25 jaar | 25 jaar |
| optimizer garantie | 12 jaar | 25 jaar | x | x | x | x |
| installatie garantie | 10 jaar | 10 jaar | 10 jaar | 10 jaar | 10 jaar | 10 jaar |
| garantie montage materiaal | 20 jaar | ? | 20 jaar | 20 jaar | 20 jaar | 20 jaar |
| garantiefonds? | SGZE | nee | GFDE | GFDE | nee | nee |
| legplan | zie afbeelding 1 | zie afbeelding 2 | afbeelding 3 | afbeelding 4 | afbeelding 5 | afbeelding 5 |
| kosten incl btw | € 6.913,55 | € 6.050,00 | € 5.623,17 | € 5.998,27 | € 6.274,71 | € 5.289,82 |
| kost excl btw + forfait | € 5.793,68 | € 5.080,00 | € 4.727,25 | € 5.037,25 | € 5.265,71 | € 4.451,75 |
| kosten per WP | € 1,4686 | € 1,1545 | € 1,3131 | € 1,2593 | € 1,4427 | € 1,2197 |
Regio
Amersfoortopmerkingen
ik zie de bomen door het bos niet in deze offertes.. ze verschillen nogal van elkaar qua legplan, prijs en aanbod.ik hoop dat jullie mij kunnen helpen!
Daarnaast twijfel ik of legplan 2 wel realistisch is qua maat
:strip_exif()/f/image/zEIjX9TSS3qKr0nySCXoVUOa.jpg?f=fotoalbum_large)
:strip_exif()/f/image/6oowv5ZKTZzjEC4VoalbFXWW.jpg?f=fotoalbum_large)
:strip_exif()/f/image/Jrn0vAywjcFdU9ZK0euaJsP0.jpg?f=fotoalbum_large)
:strip_exif()/f/image/iwvIwJheVv6AxXQRHSWAwFsV.jpg?f=fotoalbum_large)