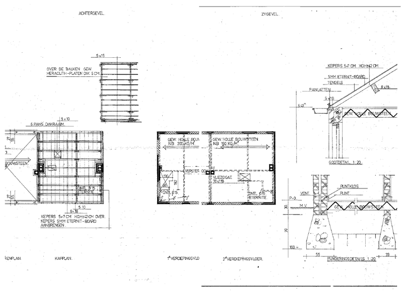
In juni krijg ik de sleutel van een 2-onder-1-kap woning. Hier gaan we met zijn 4-en woning, mijn 3 zoons en ik. Op dit moment is de badkamer op de 1e verdieping, met alleen een wastafel en een toilet en een vlizotrap naar de zolder.
/f/image/Q540m0etLh8CUDvbCnlJdgNl.png?f=fotoalbum_large)
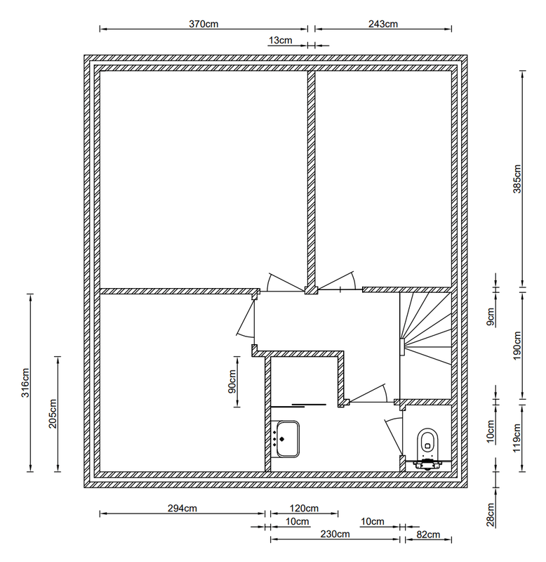
Wat ik wil gaan doen is een vaste trap naar de zolder boven de bestaande trap plaatsen. Dat betekent dat de ingang van de badkamer vervalt en deze nog kleiner wordt. Tevens wil ik 3 slaapkamers op de verdieping behouden...mooi wensenlijstje. Zelf kwam ik op het idee voor een badkamer ensuite (en sorry voor mijn paint skills).
/f/image/rQ01IKWJ0ERgrHQ4uiJDw1G9.png?f=fotoalbum_large)
Nadelen: 3 jongens die door mijn slaapkamer hollen voor het een of ander (douchen, WC)
Voordelen, ieder heeft zijn eigen slaapkamer (en das me ook veel waard)
Van de zolder wil ik 1 slaapkamer maken, 2 wordt te krap (maar 1,5 meter stahoogte dan aan beide zijdes van de muur). De achterkant wil ik sowieso geen dakkapel op zetten ivm het leggen van zonnepanelen.
/f/image/NsBkczNfJE5UqRFMUJVm5aC1.png?f=fotoalbum_large)
Wat zie ik over het hoofd....zijn er nog betere ideeën ?
/f/image/Q540m0etLh8CUDvbCnlJdgNl.png?f=fotoalbum_large)
Wat ik wil gaan doen is een vaste trap naar de zolder boven de bestaande trap plaatsen. Dat betekent dat de ingang van de badkamer vervalt en deze nog kleiner wordt. Tevens wil ik 3 slaapkamers op de verdieping behouden...mooi wensenlijstje. Zelf kwam ik op het idee voor een badkamer ensuite (en sorry voor mijn paint skills).
/f/image/rQ01IKWJ0ERgrHQ4uiJDw1G9.png?f=fotoalbum_large)
Nadelen: 3 jongens die door mijn slaapkamer hollen voor het een of ander (douchen, WC)
Voordelen, ieder heeft zijn eigen slaapkamer (en das me ook veel waard)
Van de zolder wil ik 1 slaapkamer maken, 2 wordt te krap (maar 1,5 meter stahoogte dan aan beide zijdes van de muur). De achterkant wil ik sowieso geen dakkapel op zetten ivm het leggen van zonnepanelen.
/f/image/NsBkczNfJE5UqRFMUJVm5aC1.png?f=fotoalbum_large)
Wat zie ik over het hoofd....zijn er nog betere ideeën ?
/f/image/zPjUEbKU0Zg86srMYZkVraYS.png?f=fotoalbum_large)
:fill(white):strip_exif()/f/image/nPtmhhUNl8ixWYqhnPMUl2PV.png?f=user_large)
:strip_exif()/f/image/DcsXK6t4la67NVVI95KHkcXe.jpg?f=fotoalbum_large)
/f/image/lUjMDp3UtHL38xxNizCRRoF5.png?f=fotoalbum_large)
/f/image/LxGTHttVYNIdMs4c69NlSGaw.png?f=fotoalbum_large)
:fill(white):strip_exif()/f/image/fdgNEStGJVFLpqmsbjK4AqzA.png?f=user_large)
/f/image/SnZr67uTxQVIjinZjKIczLTC.png?f=fotoalbum_large)
/f/image/J7WV0et0hsGNIXokXXzh4hHF.png?f=fotoalbum_large)
:strip_exif()/f/image/ttj0uRFhAtd17QfqqtFT4T7Z.jpg?f=fotoalbum_large)