Beste medetweakers,
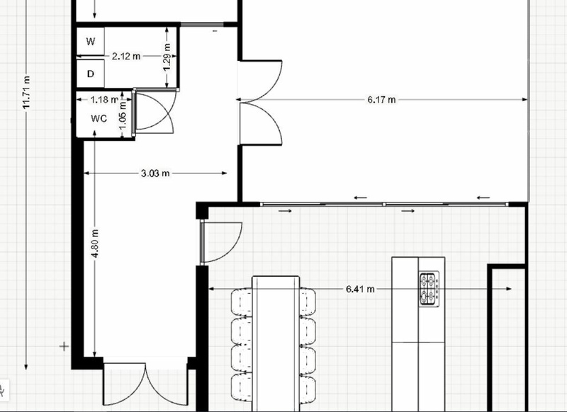
Wij staan op het punt om ons huis flink te renoveren, onderdeel hiervan is dat er een uitbouw komt welke tegen de garage gebouwd gaat worden. Ondanks dat er ook nog een voordeur is, verwacht ik dat wij 90% van de tijd de garagedeur zullen gebruiken om naar binnen te gaan. De huidige situatie is dat er achter de garage een washok zit en een kantoorruimte, het washok willen wij graag behouden op deze plek en wij willen graag een toiletruimte toevoegen. Wij komen niet helemaal uit de indeling van deze ruimte(s), daarom de vraag wat jullie van onderstaand idee vinden, suggesties en tips zijn altijd welkom. De huidige muren (aangeduid in het geel) van het washok kunnen in principe weg en de plek van de wc is vrij, hoewel het wel natuurlijk wel handig is als deze in de buurt van de bestaande afvoerput komt.
Huidige situatie, waarbij er met de A aanduiding een afvoerput wordt bedoeld:
:strip_exif()/f/image/V8ELysUC7797rC3cNATb3gkN.jpg?f=fotoalbum_large)
Ons idee:
:strip_exif()/f/image/jeDNhodQkSzA62ePVwAkVVcB.jpg?f=fotoalbum_large)
Ik ben benieuwd naar jullie suggesties.
Wij staan op het punt om ons huis flink te renoveren, onderdeel hiervan is dat er een uitbouw komt welke tegen de garage gebouwd gaat worden. Ondanks dat er ook nog een voordeur is, verwacht ik dat wij 90% van de tijd de garagedeur zullen gebruiken om naar binnen te gaan. De huidige situatie is dat er achter de garage een washok zit en een kantoorruimte, het washok willen wij graag behouden op deze plek en wij willen graag een toiletruimte toevoegen. Wij komen niet helemaal uit de indeling van deze ruimte(s), daarom de vraag wat jullie van onderstaand idee vinden, suggesties en tips zijn altijd welkom. De huidige muren (aangeduid in het geel) van het washok kunnen in principe weg en de plek van de wc is vrij, hoewel het wel natuurlijk wel handig is als deze in de buurt van de bestaande afvoerput komt.
Huidige situatie, waarbij er met de A aanduiding een afvoerput wordt bedoeld:
:strip_exif()/f/image/V8ELysUC7797rC3cNATb3gkN.jpg?f=fotoalbum_large)
Ons idee:
:strip_exif()/f/image/jeDNhodQkSzA62ePVwAkVVcB.jpg?f=fotoalbum_large)
Ik ben benieuwd naar jullie suggesties.
:strip_exif()/f/image/dW21YS5zKHLkICr80eWS6UAk.jpg?f=fotoalbum_large)