Wij zijn aan het kijken naast extra zonnepanelen (die liggen er nu maar werken nog niet, ander topic) voor wat isolatiemaatregelen.
Een paar dingen vooraf om de situatie te verduidelijken hoe het nu is:
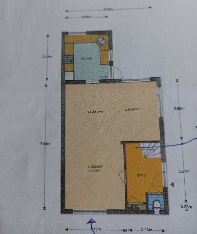
- Vloerverwarming in de keuken en woonkamer, NIET in de gang.
- Kruipruimte onder gang en woonkamer, NIET in de keuken.
- Keukenvloer is wel geïsoleerd met EPS platen.
- Woning is gebouwd in 1980,
- Vorig jaar tijdens de verbouwing van de keuken gezien dat er in spouwmuur glas of steenwol zat (hoeveel ruimte er nog is in de de spouw geen idee, niet op gelet.....).
- We hebben op de bovenverdieping + zolder eiegenlijk altijd meerdere ramen openstaan, ook 's winters. Tenzij extreem warm of extreem koud, dan houden we ze vooral dicht. Bij 5 graden buiten staan ze gewoon open. Gevolg is een redelijke frisse gang en bovenverdieping + zolder. Nu is daar wellicht nog wel iets te winnen qua warmte vermoed ik, de hele dag luchten is niet per se nodig denk ik.
- Alles behalve de schuifpui is HR++ glas, de schuifpui wordt nog aangepakt. Danwel HR++ of een volledig nieuwe met HR+++.
Nu ben ik dus aan het kijken naar spouwmuurisolatie en vloerisolatie. Dakisolatie (dak is deels geisoleerd, zag dat er piepschuim tussen zat) zie ik niet zo zitten ivm het feit dat we toch veel ramen open hebben boven. Lijkt me dan niet heel zinvol.
Vloerisolatie lijkt me een duidelijke keuze. Die moet gewoon gedaan worden. We hebben nu een tegelvloer met vloerverwarming gelegd op de betonvloer. Die is aan de onderkant niet geïsoleerd. Daar valt dus wel winst te behalen. Is het nodig om ook iets aan de bodem van de kruipruimte te doen? Ik vind het wel prettig om overal fatsoenlijk bij te kunnen, dus zo'n bad met 30 cm aan parels zie ik niet direct zitten. Vochtig is het normaliter ook niet geweest, alleen nu rondom het kruipgat, maar ik denk dat dat vooral condensatie zal zijn?
De kruipruimte is overigens hoog genoeg om royaal te isoleren, 0.90 tot 1 meter hoog.
Dan kijken we nog naar spouwmuurisolatie. zoals vermeld denk ik dat er in onze spouw overal iets van glas/steenwol zit. Dit baseer ik op het feit dat het in de keuken (dat vroeger berghok was bij bouw van het huis) aanwezig is. Dat zou betekenen dat er eventueel nog na-isoleren kan plaatsvinden als er voldoende ruimte in de spouw is.
De vraag die bij me opkomt is hoe rendabel gaat dit zijn. Waarom die vraag, omdat we redelijk veel ramen hebben (zie ook foto's). Daarnaast is onze gang relatief koud ivm geen vloerverwarming en het royaal beleid om te luchten. De gang grenst aan de woonkamer (zie foto's).
De spouw op de bovenverdieping laten isoleren lijkt me ook niet heel erg handig dan? Wellicht beperken we het luchten wat, maar zal zeker nog steeds lekker fris blijven boven. Ik dacht zelf om alleen de benedenverdieping te isoleren, maar weet niet of dat gaat of dat je alles moet doen?
:strip_exif()/f/image/JMnhEw1ZtPcjOpaz3HbTxWt7.jpg?f=fotoalbum_large)
:strip_exif()/f/image/BxfqNrd072424UtZrlz0llpz.jpg?f=fotoalbum_large)
:strip_exif()/f/image/gN6L5taWZBUigp9o9SZ4PHc5.jpg?f=fotoalbum_large)
:strip_exif()/f/image/yaF3TReUv2S8RzVNtvCiS71L.jpg?f=fotoalbum_large)
:strip_exif()/f/image/BrrDfNiDQnWzbwwhSxl2Bxxb.jpg?f=fotoalbum_large)
:strip_exif()/f/image/utmJJ9CRnqTXBrA3M3X3XbAG.jpg?f=fotoalbum_large)
GARAGE
Dan rest de vraag nog of het rendabel zou zijn om de garage te isoleren. We zitten veelvuldig in de garage en verwarmen deze ook 's winters zeer regelmatig.
De garage is verdeeld in twee ruimtes, één heeft een spouw (geen idee of er wat aan isolatie in zit) en grens voor 1 deel volledig aan het huis van de buren. De andere ruimte is nadien gebouwd, daar zit steenwol als isolatie aan de buitenkant. De achterzijde grenst aan een klein schopje (enkelsteens) en de langere muur (rechts op de foto) is voor 70 cm enkelsteens (semi ingetekend). De rest grenst aan de woonkamer van de buren.
Is het denken jullie rendabel om de voorste ruimte van de garage te isoleren? We zijn er niet iedere dag (zeg dat het 's winters 4 of 5 maal per week wordt verwarmd). De achterste ruimte is altijd kouder ivm enkelsteensmuurtjes denk ik. Gescheiden met een deur en spouwmuur.
:strip_exif()/f/image/i1uSoTsESwkDtl7ssYqvMjIv.jpg?f=fotoalbum_large)
:strip_exif()/f/image/gWhpwACtF3IvW9BKjFYIs8nM.jpg?f=fotoalbum_large)
:strip_exif()/f/image/jXrUc91xBpj6ZT64Q1OpKYII.jpg?f=fotoalbum_large)
Een paar dingen vooraf om de situatie te verduidelijken hoe het nu is:
- Vloerverwarming in de keuken en woonkamer, NIET in de gang.
- Kruipruimte onder gang en woonkamer, NIET in de keuken.
- Keukenvloer is wel geïsoleerd met EPS platen.
- Woning is gebouwd in 1980,
- Vorig jaar tijdens de verbouwing van de keuken gezien dat er in spouwmuur glas of steenwol zat (hoeveel ruimte er nog is in de de spouw geen idee, niet op gelet.....).
- We hebben op de bovenverdieping + zolder eiegenlijk altijd meerdere ramen openstaan, ook 's winters. Tenzij extreem warm of extreem koud, dan houden we ze vooral dicht. Bij 5 graden buiten staan ze gewoon open. Gevolg is een redelijke frisse gang en bovenverdieping + zolder. Nu is daar wellicht nog wel iets te winnen qua warmte vermoed ik, de hele dag luchten is niet per se nodig denk ik.
- Alles behalve de schuifpui is HR++ glas, de schuifpui wordt nog aangepakt. Danwel HR++ of een volledig nieuwe met HR+++.
Nu ben ik dus aan het kijken naar spouwmuurisolatie en vloerisolatie. Dakisolatie (dak is deels geisoleerd, zag dat er piepschuim tussen zat) zie ik niet zo zitten ivm het feit dat we toch veel ramen open hebben boven. Lijkt me dan niet heel zinvol.
Vloerisolatie lijkt me een duidelijke keuze. Die moet gewoon gedaan worden. We hebben nu een tegelvloer met vloerverwarming gelegd op de betonvloer. Die is aan de onderkant niet geïsoleerd. Daar valt dus wel winst te behalen. Is het nodig om ook iets aan de bodem van de kruipruimte te doen? Ik vind het wel prettig om overal fatsoenlijk bij te kunnen, dus zo'n bad met 30 cm aan parels zie ik niet direct zitten. Vochtig is het normaliter ook niet geweest, alleen nu rondom het kruipgat, maar ik denk dat dat vooral condensatie zal zijn?
De kruipruimte is overigens hoog genoeg om royaal te isoleren, 0.90 tot 1 meter hoog.
Dan kijken we nog naar spouwmuurisolatie. zoals vermeld denk ik dat er in onze spouw overal iets van glas/steenwol zit. Dit baseer ik op het feit dat het in de keuken (dat vroeger berghok was bij bouw van het huis) aanwezig is. Dat zou betekenen dat er eventueel nog na-isoleren kan plaatsvinden als er voldoende ruimte in de spouw is.
De vraag die bij me opkomt is hoe rendabel gaat dit zijn. Waarom die vraag, omdat we redelijk veel ramen hebben (zie ook foto's). Daarnaast is onze gang relatief koud ivm geen vloerverwarming en het royaal beleid om te luchten. De gang grenst aan de woonkamer (zie foto's).
De spouw op de bovenverdieping laten isoleren lijkt me ook niet heel erg handig dan? Wellicht beperken we het luchten wat, maar zal zeker nog steeds lekker fris blijven boven. Ik dacht zelf om alleen de benedenverdieping te isoleren, maar weet niet of dat gaat of dat je alles moet doen?
:strip_exif()/f/image/JMnhEw1ZtPcjOpaz3HbTxWt7.jpg?f=fotoalbum_large)
:strip_exif()/f/image/BxfqNrd072424UtZrlz0llpz.jpg?f=fotoalbum_large)
:strip_exif()/f/image/gN6L5taWZBUigp9o9SZ4PHc5.jpg?f=fotoalbum_large)
:strip_exif()/f/image/yaF3TReUv2S8RzVNtvCiS71L.jpg?f=fotoalbum_large)
:strip_exif()/f/image/BrrDfNiDQnWzbwwhSxl2Bxxb.jpg?f=fotoalbum_large)
:strip_exif()/f/image/utmJJ9CRnqTXBrA3M3X3XbAG.jpg?f=fotoalbum_large)
GARAGE
Dan rest de vraag nog of het rendabel zou zijn om de garage te isoleren. We zitten veelvuldig in de garage en verwarmen deze ook 's winters zeer regelmatig.
De garage is verdeeld in twee ruimtes, één heeft een spouw (geen idee of er wat aan isolatie in zit) en grens voor 1 deel volledig aan het huis van de buren. De andere ruimte is nadien gebouwd, daar zit steenwol als isolatie aan de buitenkant. De achterzijde grenst aan een klein schopje (enkelsteens) en de langere muur (rechts op de foto) is voor 70 cm enkelsteens (semi ingetekend). De rest grenst aan de woonkamer van de buren.
Is het denken jullie rendabel om de voorste ruimte van de garage te isoleren? We zijn er niet iedere dag (zeg dat het 's winters 4 of 5 maal per week wordt verwarmd). De achterste ruimte is altijd kouder ivm enkelsteensmuurtjes denk ik. Gescheiden met een deur en spouwmuur.
:strip_exif()/f/image/i1uSoTsESwkDtl7ssYqvMjIv.jpg?f=fotoalbum_large)
:strip_exif()/f/image/gWhpwACtF3IvW9BKjFYIs8nM.jpg?f=fotoalbum_large)
:strip_exif()/f/image/jXrUc91xBpj6ZT64Q1OpKYII.jpg?f=fotoalbum_large)
:strip_exif()/f/image/lNztpxPgQpkAbJahiYaHNHtG.jpg?f=fotoalbum_large)