Hallo mensen,
We willen graag zonnepanelen aanbrengen, maar de omstandigheden zijn wat anders dan normaal dus ik zou graag jullie mening horen over wat zaken. Ik heb al heel wat threads doorgespit, maar toch is het wel prettig om wat zaken voor te leggen. De situatie is namelijk alsvolgt:
Met onze buren hebben we een schuurtje die gekoppeld zijn aan elkaar. Het dakje moet vervangen worden (ivm asbest) en daardoor ontstond het idee om de daken te verlengen zodat er een carport ontstaat. Deze zouden we dan kunnen gebruiken om vervolgens zonnepanelen op te plaatsen. Voor ons een goeie optie aangezien we beiden een huis hebben dat als rijksmonument is betiteld en daar mogen geen reguliere zonnepanelen op geplaatst worden. Althans, niet zichtbaar en nog veel meer regels...
We hebben hiervoor een vergunning aangevraagd (en verkregen) dus dat is rond. Voorwaarde was wel dat de panelen niet zichtbaar zouden zijn ivm beschermd dorpsgezicht, het schuurtje is namelijk zichtbaar vanaf de straatzijde aan de achterzijde van het huis. Ja het wordt niet eenvoudig
We wilden dus eerst het dak uitvoeren als een zonnecarport die ook regelmatig op dit forum is langsgekomen. Dat zou dan met frameless bifacial glas/glas panelen gemaakt worden in een aluminium lichtstraatprofiel.
Dat bleek echter te complex en maatbepalend voor de afmeting van de carport waardoor we daar vanaf zijn gestapt. Ook mogelijke lekkage in de toekomst en condensvorming waren items die meewogen trouwens.
We gaan nu dus voor een normale EPMD dakbedekking op dakbeschot en daar de zonnepalen op plaatsen met ballast. De zonnepanelen komen dus vlak te liggen (wel onder afschot van het dak) aangezien dat een eis uit de vergunning is. Dus oost/west etc. is niet mogelijk./f/image/NmXIXdhSCHN3mtjKbvthyZL6.png?f=fotoalbum_large)
:fill(white):strip_exif()/f/image/SFsDBIqsPa5iDW13q9HJB2Fz.png?f=user_large)
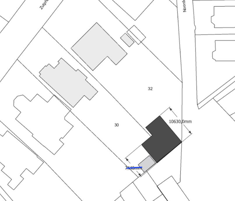
Buurman: ca. 4,20x8,5m (= effectieve ruimte voor de panelen)
Hoogte carport is 3,25m
Opstand tot de dakrand is op het hoogste punt beperkt ivm benodigde afschot. Hoogte is daar 60mm. Dat is erg weinig dus wellicht moeten we dat nog aanpassen/vergroten.
Maar in de toekomst meer ivm elektrische auto (wordt verplicht bij de werkgever) en een warmtepomp wellicht. De auto zal dit jaar al komen dus dat gaat relatief snel.
Het volgende principe is bedacht:
Opstelling I (langsrichting):
Bij ons: 30 panelen van 1,69x1m (5 rijen naast elkaar van 6 stuks).
Buurman: 20 panelen van 1,69x1m (4 rijen naast elkaar van 5 stuks)
/f/image/8DMRuaWBGBdF9YNCLwDN5on7.png?f=fotoalbum_large)
Opstelling II (dwarsrichting):
Bij ons: 27 panelen van 1,69x103m (9 rijen naast elkaar van 3 stuks).
https://www.winkelman-zon...er-n-type-full-black.html
Buurman: 16 panelen van 1,85x103m (8 rijen naast elkaar van 2 stuks).
/f/image/QPj4a7LqmYZO1kbB5KVuNJ5n.png?f=fotoalbum_large)
De volgende vragen heb ik nog en hopelijk kunnen jullie hierbij helpen:
1. Kan ik voor de vlakke panelen 'normale' panelen gebruiken of zou ik hiervoor frameless (=glas/glas) panelen moeten gebruiken?
Die laatste zijn lastig verkrijgbaar, duur in aanschaf, duur met bevestigen etc. Kortom, niet ideaal. Het water (en vuil) loopt er alleen wel makkelijk vanaf dus dat is een voordeel. Maar is de opbrengst van een normaal paneel met frame ook nagenoeg vlak te plaatsen en toch een normaal rendement te halen?
De opbrengst is volgens de calculator (ca. 83% met horizontale panelen. Nu weet ik dat er een aantal mensen hier ook vlakke panelen met frame hebben. Zou iemand zijn/haar ervaring hier kunnen delen wat betreft de opbrengst? Ik heb er een aantal gevonden op het forum maar niet altijd hoe het nu functioneert in de praktijk. Ben benieuwd of de vervuiling het rendement veel beïnvloedt.
/f/image/1HaFWhf8I44N1kHVpJPy72OL.png?f=fotoalbum_large)
2. Welke type zonnepaneel zal ik gebruiken?
Ik zie nu dat er panelen van Jinko (N-type) zijn die een hogere opbrengst hebben en houden vergelijkbaar met glas/glas panelen die normaal een betere opbrengst hebben over 25-30 jaar. Deze lijken eigenlijk wel ideaal.
De panelen van Jinko zijn echter 103cm en dat is voor opstelling I net te breed. Ik moet daar binnen 100cm blijven omdat we niet breder mogen/kunnen. Iemand nog een goeie tip?
3. Type omvormer?
Met Synnydesign kom ik uit op een SMA Sunny tripower 8.0. Plaatje heb ik hieronder geplaatst. Omdat ze vlak liggen (en dus allemaal hetzelfde belicht worden) zonder 'harde' schaduw lijken optimizers voor mij niet veel meerwaarde te hebben. Die SMA met shadefix zou dus best goed moeten werken lijkt me. Ik zou deze willen aansluiten met 2x15 (opstelling I) of 1x13 en 1x14 (opstelling II). Ziet iemand hier nog gekke dingen in?
/f/image/4gGESAFTDDk25m00YzwqnesG.png?f=fotoalbum_large)
Een heel verhaal en best wat beperkingen, maar hopelijk kunnen even meedenken om te kijken hoe dit op een efficiënte manier uitgevoerd kan worden.
We willen graag zonnepanelen aanbrengen, maar de omstandigheden zijn wat anders dan normaal dus ik zou graag jullie mening horen over wat zaken. Ik heb al heel wat threads doorgespit, maar toch is het wel prettig om wat zaken voor te leggen. De situatie is namelijk alsvolgt:
Met onze buren hebben we een schuurtje die gekoppeld zijn aan elkaar. Het dakje moet vervangen worden (ivm asbest) en daardoor ontstond het idee om de daken te verlengen zodat er een carport ontstaat. Deze zouden we dan kunnen gebruiken om vervolgens zonnepanelen op te plaatsen. Voor ons een goeie optie aangezien we beiden een huis hebben dat als rijksmonument is betiteld en daar mogen geen reguliere zonnepanelen op geplaatst worden. Althans, niet zichtbaar en nog veel meer regels...
We hebben hiervoor een vergunning aangevraagd (en verkregen) dus dat is rond. Voorwaarde was wel dat de panelen niet zichtbaar zouden zijn ivm beschermd dorpsgezicht, het schuurtje is namelijk zichtbaar vanaf de straatzijde aan de achterzijde van het huis. Ja het wordt niet eenvoudig
We wilden dus eerst het dak uitvoeren als een zonnecarport die ook regelmatig op dit forum is langsgekomen. Dat zou dan met frameless bifacial glas/glas panelen gemaakt worden in een aluminium lichtstraatprofiel.
Dat bleek echter te complex en maatbepalend voor de afmeting van de carport waardoor we daar vanaf zijn gestapt. Ook mogelijke lekkage in de toekomst en condensvorming waren items die meewogen trouwens.
We gaan nu dus voor een normale EPMD dakbedekking op dakbeschot en daar de zonnepalen op plaatsen met ballast. De zonnepanelen komen dus vlak te liggen (wel onder afschot van het dak) aangezien dat een eis uit de vergunning is. Dus oost/west etc. is niet mogelijk.
Foto's
/f/image/NmXIXdhSCHN3mtjKbvthyZL6.png?f=fotoalbum_large)
:fill(white):strip_exif()/f/image/SFsDBIqsPa5iDW13q9HJB2Fz.png?f=user_large)
Beschikbare (dak)ruimte
Onze carport: ca. 5,2x10,0m (= effectieve ruimte voor de panelen)Buurman: ca. 4,20x8,5m (= effectieve ruimte voor de panelen)
Hoogte carport is 3,25m
Opstand tot de dakrand is op het hoogste punt beperkt ivm benodigde afschot. Hoogte is daar 60mm. Dat is erg weinig dus wellicht moeten we dat nog aanpassen/vergroten.
Schaduw
Er staat aan de oostzijde een grote boom (zie rode cirkel), maar verder valt het reuze mee. Alleen in de ochtend zal de boom dus voor schaduw zorgen. In het najaar/winter langer dan de zomer uiteraard.Jaarverbruik
5.500-6.000kWh momenteel.Maar in de toekomst meer ivm elektrische auto (wordt verplicht bij de werkgever) en een warmtepomp wellicht. De auto zal dit jaar al komen dus dat gaat relatief snel.
Huidige elektriciteitsaansluiting
3 faseBudget en doel
Het doel is dus om zoveel mogelijk panelen direct te leggen en voorlopig dus maar terug te leveren. Maar uiteraard wel onder de 10.000kWh dus ik richt op ca. 9.500kWh.Het volgende principe is bedacht:
Opstelling I (langsrichting):
Bij ons: 30 panelen van 1,69x1m (5 rijen naast elkaar van 6 stuks).
Buurman: 20 panelen van 1,69x1m (4 rijen naast elkaar van 5 stuks)
/f/image/8DMRuaWBGBdF9YNCLwDN5on7.png?f=fotoalbum_large)
Opstelling II (dwarsrichting):
Bij ons: 27 panelen van 1,69x103m (9 rijen naast elkaar van 3 stuks).
https://www.winkelman-zon...er-n-type-full-black.html
Buurman: 16 panelen van 1,85x103m (8 rijen naast elkaar van 2 stuks).
/f/image/QPj4a7LqmYZO1kbB5KVuNJ5n.png?f=fotoalbum_large)
Wie gaat het project uitvoeren
Ik wil de montage zelf uitvoeren, maar het aansluiten door een installateur laten doen. Maar mochten de offertes meevallen ga ik dat heroverwegen. De montage zal best een beetje custom made worden en bij leverancier hoor je al snel "dat kan niet".Bijhouden van data
Reeds verkregen offertes
Nog niet opgevraagdRegio
Gelderland, in de buurt van ArnhemDe volgende vragen heb ik nog en hopelijk kunnen jullie hierbij helpen:
1. Kan ik voor de vlakke panelen 'normale' panelen gebruiken of zou ik hiervoor frameless (=glas/glas) panelen moeten gebruiken?
Die laatste zijn lastig verkrijgbaar, duur in aanschaf, duur met bevestigen etc. Kortom, niet ideaal. Het water (en vuil) loopt er alleen wel makkelijk vanaf dus dat is een voordeel. Maar is de opbrengst van een normaal paneel met frame ook nagenoeg vlak te plaatsen en toch een normaal rendement te halen?
De opbrengst is volgens de calculator (ca. 83% met horizontale panelen. Nu weet ik dat er een aantal mensen hier ook vlakke panelen met frame hebben. Zou iemand zijn/haar ervaring hier kunnen delen wat betreft de opbrengst? Ik heb er een aantal gevonden op het forum maar niet altijd hoe het nu functioneert in de praktijk. Ben benieuwd of de vervuiling het rendement veel beïnvloedt.
/f/image/1HaFWhf8I44N1kHVpJPy72OL.png?f=fotoalbum_large)
2. Welke type zonnepaneel zal ik gebruiken?
Ik zie nu dat er panelen van Jinko (N-type) zijn die een hogere opbrengst hebben en houden vergelijkbaar met glas/glas panelen die normaal een betere opbrengst hebben over 25-30 jaar. Deze lijken eigenlijk wel ideaal.
De panelen van Jinko zijn echter 103cm en dat is voor opstelling I net te breed. Ik moet daar binnen 100cm blijven omdat we niet breder mogen/kunnen. Iemand nog een goeie tip?
3. Type omvormer?
Met Synnydesign kom ik uit op een SMA Sunny tripower 8.0. Plaatje heb ik hieronder geplaatst. Omdat ze vlak liggen (en dus allemaal hetzelfde belicht worden) zonder 'harde' schaduw lijken optimizers voor mij niet veel meerwaarde te hebben. Die SMA met shadefix zou dus best goed moeten werken lijkt me. Ik zou deze willen aansluiten met 2x15 (opstelling I) of 1x13 en 1x14 (opstelling II). Ziet iemand hier nog gekke dingen in?
/f/image/4gGESAFTDDk25m00YzwqnesG.png?f=fotoalbum_large)
Een heel verhaal en best wat beperkingen, maar hopelijk kunnen even meedenken om te kijken hoe dit op een efficiënte manier uitgevoerd kan worden.
:fill(white):strip_exif()/f/image/jCexlL9Tam8U7AXGiW8tTb5q.png?f=user_large)
/f/image/fkTbYLpXz941MzGEmp7BArcR.png?f=fotoalbum_large)
/f/image/SLUIRbtP3TfxTG8HCUwsJplB.png?f=fotoalbum_large)
/f/image/Ojrz93yaIjvYqQtFxfGyY8JL.png?f=fotoalbum_large)
:strip_exif()/f/image/U4H9629dbIksb4qXizR9rbf3.jpg?f=fotoalbum_large)
:strip_exif()/f/image/ZDnu6VHU3NMK1n68F5LWXO1s.jpg?f=fotoalbum_large)
:strip_exif()/f/image/rqk2GtiiBZDBNeKeKq2F95He.jpg?f=fotoalbum_large)