In onze toekomstige vrijstaande nieuwbouwwoning krijgen we maar liefst 4 schaampanelen om de EPC eis te halen. De panelen die door de aannemer gemonteerd wordt, wil ik dus vermeubelen naar de uitbouw en een nieuw PV systeem op het dak monteren.
De bestaande 4 panelen wil ik verplaatsen naar de uitbouw wat richting WZW is. Zal niet mega veel opleveren, maar anders doe ik deze panelen weg. Deze panelen wil ik op de bestaande Goodwe omvormer plaatsen. Het PV systeem op het schuine dak wil ik aansluiten op een eigen omvormer.
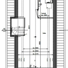
De woning staat er nog niet, en heb ik dus nagetekend in SunnyDesign op basis van de bouwtekeningen en het kadaster kaart. Het dak voor het nieuwe PV systeem staat richting ZZO. Zo'n 20 graden ten op zichte van het zuiden als ik het huis parallel zet aan de enige weg die bestaat in de kaart in SunnyDesign. Gemeten met een geodriehoek op de kaart van kadaster, klopt dit ook. De helling van het dak is 60 graden. Vrij steil dus.
De aansluiting in de woning is 3x25A. Er is een aparte groep gemaakt voor de PV installation. Gezien dat de huidige installatie maar uit 4 panelen bestaat, verwacht ik dat dit een 1x16A groep is. Zal ik uit moeten uitbreiden naar een 3x16A groep. Leiding vanuit de meterkast naar de zolder ligt er dus al.
Vebruik woning: geen idee.Nu vebruiken we ongeveer 3000kWh in onze nieuwbouw appartement. In de nieuwe woning krijgen we een lucht warmptepomp. Toekomstige kinderen en een EV is mogelijk.
Het volgende systeem heb ik in SunnyDesign gemaakt:
* 14x Canadian Solar HiKu CS3W-455MS (noot: Sunnydesign kent de 455Wp niet, dus heb de 450wp erin gezet. Totaal wp is dan 6370Wp ipv 6300Wp. Is dezelfde serie. Specs nagenoeg gelijk)
* SMA Sunny Tripower 5.0 3AV-40 omvormer
Het plan is om alle 14 panelen in één string te zetten. Dan zou je een nominaal PV spanning hebben van 529V. De omvormer zou het hoogste rendement hebben bij 580V. De omvormer heb ik zo'n 20% ondergedimensioneerd. Omdat de hoek en helling niet ideaal is, zou het misschien nog een maat kleiner kunnen, maar dat weet ik niet zeker.
Ik heb nog gespeeld met kleinere lagere rendement panelen, maar met de 455Wp panelen kom ik op het hoogste totaal vermogen. Wel heb ik rekening gehouden om naast de dakkapel géén panelen te plaatsen. Zou het nog zin hebben om twee extra panelen te plaatsen met een andere indeling (met eventuele schaduw)?
Heb ik zo een beetje een compleet systeem, of zijn er andere (betere) opties?
Specs zonnepanelen:
:fill(white):strip_exif()/f/image/rICsowblz6wbuhbF0THfvTvy.png?f=user_large)
Boodschappenlijst:
* Installatie zal zo'n 1250 euro kosten voor 14 panalen + opslag regio Limburg.
De bestaande 4 panelen wil ik verplaatsen naar de uitbouw wat richting WZW is. Zal niet mega veel opleveren, maar anders doe ik deze panelen weg. Deze panelen wil ik op de bestaande Goodwe omvormer plaatsen. Het PV systeem op het schuine dak wil ik aansluiten op een eigen omvormer.
De woning staat er nog niet, en heb ik dus nagetekend in SunnyDesign op basis van de bouwtekeningen en het kadaster kaart. Het dak voor het nieuwe PV systeem staat richting ZZO. Zo'n 20 graden ten op zichte van het zuiden als ik het huis parallel zet aan de enige weg die bestaat in de kaart in SunnyDesign. Gemeten met een geodriehoek op de kaart van kadaster, klopt dit ook. De helling van het dak is 60 graden. Vrij steil dus.
De aansluiting in de woning is 3x25A. Er is een aparte groep gemaakt voor de PV installation. Gezien dat de huidige installatie maar uit 4 panelen bestaat, verwacht ik dat dit een 1x16A groep is. Zal ik uit moeten uitbreiden naar een 3x16A groep. Leiding vanuit de meterkast naar de zolder ligt er dus al.
Vebruik woning: geen idee.Nu vebruiken we ongeveer 3000kWh in onze nieuwbouw appartement. In de nieuwe woning krijgen we een lucht warmptepomp. Toekomstige kinderen en een EV is mogelijk.
Het volgende systeem heb ik in SunnyDesign gemaakt:
* 14x Canadian Solar HiKu CS3W-455MS (noot: Sunnydesign kent de 455Wp niet, dus heb de 450wp erin gezet. Totaal wp is dan 6370Wp ipv 6300Wp. Is dezelfde serie. Specs nagenoeg gelijk)
* SMA Sunny Tripower 5.0 3AV-40 omvormer
Het plan is om alle 14 panelen in één string te zetten. Dan zou je een nominaal PV spanning hebben van 529V. De omvormer zou het hoogste rendement hebben bij 580V. De omvormer heb ik zo'n 20% ondergedimensioneerd. Omdat de hoek en helling niet ideaal is, zou het misschien nog een maat kleiner kunnen, maar dat weet ik niet zeker.
Ik heb nog gespeeld met kleinere lagere rendement panelen, maar met de 455Wp panelen kom ik op het hoogste totaal vermogen. Wel heb ik rekening gehouden om naast de dakkapel géén panelen te plaatsen. Zou het nog zin hebben om twee extra panelen te plaatsen met een andere indeling (met eventuele schaduw)?
Heb ik zo een beetje een compleet systeem, of zijn er andere (betere) opties?
![]() | ![]() | ![]() |
Specs zonnepanelen:
:fill(white):strip_exif()/f/image/rICsowblz6wbuhbF0THfvTvy.png?f=user_large)
Boodschappenlijst:
* Installatie zal zo'n 1250 euro kosten voor 14 panalen + opslag regio Limburg.
:strip_exif()/f/image/bhfn8brP2NyRnKuga16rcrvw.jpg?f=fotoalbum_tile)
:strip_exif()/f/image/zEOxu3mgNpHtNSNfiMWtMkla.jpg?f=fotoalbum_tile)
:strip_exif()/f/image/sEex4IdyHNcB3jvor595afoK.jpg?f=fotoalbum_tile)
/f/image/YaJaU9zwDoEkZLOUYOakv7kq.png?f=fotoalbum_large)
:strip_exif()/f/image/7El4ZmjD0gCBdyVyUe8N1xnr.jpg?f=fotoalbum_large)
:strip_exif()/f/image/J5ZFtelM0sIeOebAHjxbKSxy.jpg?f=fotoalbum_large)
:strip_exif()/f/image/rJuqBw2T1rbgrexFNWOIqgNE.jpg?f=fotoalbum_tile)
:strip_exif()/f/image/Azkmv4GVT1Rw6Uh7aGJBn6VO.jpg?f=fotoalbum_tile)
:strip_exif()/f/image/EPVpIo0jK1vkvIrAbntdYhrs.jpg?f=fotoalbum_tile)
/f/image/LQts8LqIjDUa7ldrakGyB0kY.png?f=fotoalbum_large)