Mijn vraag
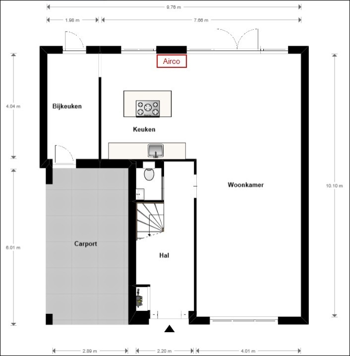
In mijn zoektocht naar het efficiënt verwarmen van onze woning, met in het achterhoofd de kosten, het milieu en de verouderde CV ketel, ben ik aan het denken om via L/L warmtepompen onze woning te gaan verwarmen. Nu komt binnenkort een installateur kijken waar er extra units zouden moeten komen om het behaaglijk warm te krijgen, maar ik ben ook benieuwd wat andere ervan denken die hier al ervaring mee hebben.De woning
Momenteel hangen er in de woning al 2 L/L warmtepompen (Toshiba 4,5kW Seiya RAS16), deze zijn begin dit jaar geplaatst met koelen als doel. Ik heb er toen niet (goed) bij nagedacht om er ook mee te verwarmen. Momenteel hangen de airco's op de volgende plekken:Begane grond
:no_upscale():strip_icc():fill(white):strip_exif()/f/image/Dqmz3bXrdyqm95iQJQdc9xv6.jpg?f=user_large)
Eerste etage
:strip_exif()/f/image/ucbbQSJJFwwq77tLw4h6q6O6.jpg?f=fotoalbum_large)
Tweede etage
:no_upscale():strip_icc():fill(white):strip_exif()/f/image/d0MUzLVeJgV5jWW8w6oHok9P.jpg?f=user_large)
Achtergrond
We hebben het in de woonkamer graag comfortabel warm en die temperatuur licht bij ons rond de 21 graden. Ik heb geprobeerd of de airco in de woonkamer te verwarmen zonder de radiatoren te gebruiken maar dit heeft niet het gewenste resultaat opgeleverd. Als het in de voorkamer lekker warm was dan was het in de keuken veel te warm. Qua verbruik kan ik nu nog niet veel zeggen omdat de huidige airco op hi-power draait en sowieso meer verbruikt dan zou moeten.Ook is het in de hal kouder en ontsnapt hier veel warmte naartoe, zelfs met de deur dicht.
Eigen idee
Zelf had ik het volgende idee:- Extra airco plaatsen in de woonkamer aan de voorkant
- Extra airco plaatsen in de hal om ervoor te zorgen dat het hier niet zo koud is
- Beide bovenstaande airco's zouden dan op een buitenunit moeten komen die onder de carport gemonteerd wordt. Wel moet ik dan nog een nette oplossing zoeken hoe de airco leidingen door de hal kan wegwerken
- De airco die op de tweede etage hangt wordt verplaatst naar de eerste etage
- Op de tweede etage komen er 2 airco's te hangen in beide slaapkamer (beide zijn werkkamers)
- Om gas loos te worden zou de sww moeten worden geregeld door een warmtepomp boiler
- Op de badkamer moet een elektrische (handdoek) verwarming o.i.d. komen (of zou een airco hier ook kunnen?)
- Mogelijk moet er iets komen op het toilet beneden
Tom