Ik ben bezig met onze nieuwbouwwoning, en moet binnenkort alle vaste punten (zoals lichtpunten) in het plafond doorgeven. Nu heb ik nog weinig verstand van netwerken., die kennis zal ik gaandeweg nog wel op doen, maar ik weet wel dat ik access points wil plaatsen voor een goede wifi dekking. Er zullen er ook een aantal aan het plafond komen, vandaar dat ik nu al wel moet weten op welke locatie ze moeten komen (voor de loze leidingen in het plafond, de netwerkkabels wil ik zelf gaan trekken).
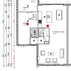
Op de begane grond heb ik een access point ingetekend bij de keuken en in de berging.
Op de 1e verdieping heb ik er nu één op het plafond van de overloop ingetekend, en op zolder ook een access point.
Verder wil ik een loze leiding naar de tuin trekken om in een toekomstig tuinhuis een access point te kunnen plaatsen.
Heb ik hiermee genoeg access points ingetekend? Of teveel? Of zijn daar meer gegevens voor nodig en moet ik alles eerst verder uitzoeken en uitwerken?
Is het nodig een access point op de begane grond te plaatsen? Zoals ik nu ingetekend heb in de keuken en de berging? Of is dat onnodig omdat de router ook beneden in de meterkast staat?
Heb je met één access point op de overloop op de 1e verdieping goede dekking? Ik zal ook netwerkkabels naar de slaapkamers trekken voor eventuele laptops etc.
![]() | ![]() | ![]() |
Op de begane grond heb ik een access point ingetekend bij de keuken en in de berging.
Op de 1e verdieping heb ik er nu één op het plafond van de overloop ingetekend, en op zolder ook een access point.
Verder wil ik een loze leiding naar de tuin trekken om in een toekomstig tuinhuis een access point te kunnen plaatsen.
Heb ik hiermee genoeg access points ingetekend? Of teveel? Of zijn daar meer gegevens voor nodig en moet ik alles eerst verder uitzoeken en uitwerken?
Is het nodig een access point op de begane grond te plaatsen? Zoals ik nu ingetekend heb in de keuken en de berging? Of is dat onnodig omdat de router ook beneden in de meterkast staat?
Heb je met één access point op de overloop op de 1e verdieping goede dekking? Ik zal ook netwerkkabels naar de slaapkamers trekken voor eventuele laptops etc.
[ Voor 29% gewijzigd door praliwi op 28-11-2021 10:13 ]
/f/image/ZQreEfEPVd9pMehfylpun1qb.png?f=fotoalbum_tile)
/f/image/9gpJmX2aJUq7Hb5wb03384AD.png?f=fotoalbum_tile)
/f/image/nZCqGx9lZ4cQ7w7GsK1PGw4z.png?f=fotoalbum_tile)